春羽
226
作品说明
- 项目类型:住宅公寓
- 项目地点:台湾
- 建筑面积:450㎡
- 项目造价:2350万元
- 参与设计师:蔡維哲
- 竣工时间:2025.12.01
- 设计机构:橡樹空間設計
-
项目定位:本真之境—在簡約框架中置入生命脈絡
《春羽》代表的是一種對「真實生活」的致敬。靈感發想於自然界中羽翼展開的動態,將其轉化為空間中舒展且流暢的配置。
我們刻意降低了色彩的彩度,將舞台留給材質本身的觸感。灰泥牆面的顆粒感、木地板的暖意、以及春羽葉片的色澤,構成了一個自洽的色彩系統。設計不再追求視覺上的飽滿,而是透過留白與俐落的線條,創造出一個能與居住者共同成長的載體。在這裡,設計是內斂的,而生活是具備張力且深刻的。 -
空间意境:本案用戶為一個追求「共融且獨立」生活秩序的四代傳承家族(含長輩、姊姊及弟弟夫妻倆與孫女)。作為擁有四層樓空間的都市透天住宅,業主的核心呈現出對家族凝聚力的重視,以及對個人私密界限的理性堅持。
居住者具備極高的審美眼光,傾向於「低負擔、高質感」的生活哲學,不追求浮誇的裝飾,而是將重心放在材質的觸感與空間的長效價值。特別是針對家中幼童的成長、長輩的行動安全,以及偶爾返家留宿成員的應對,他們需要的是一個具備高度包容性與彈性的本真場域。 -
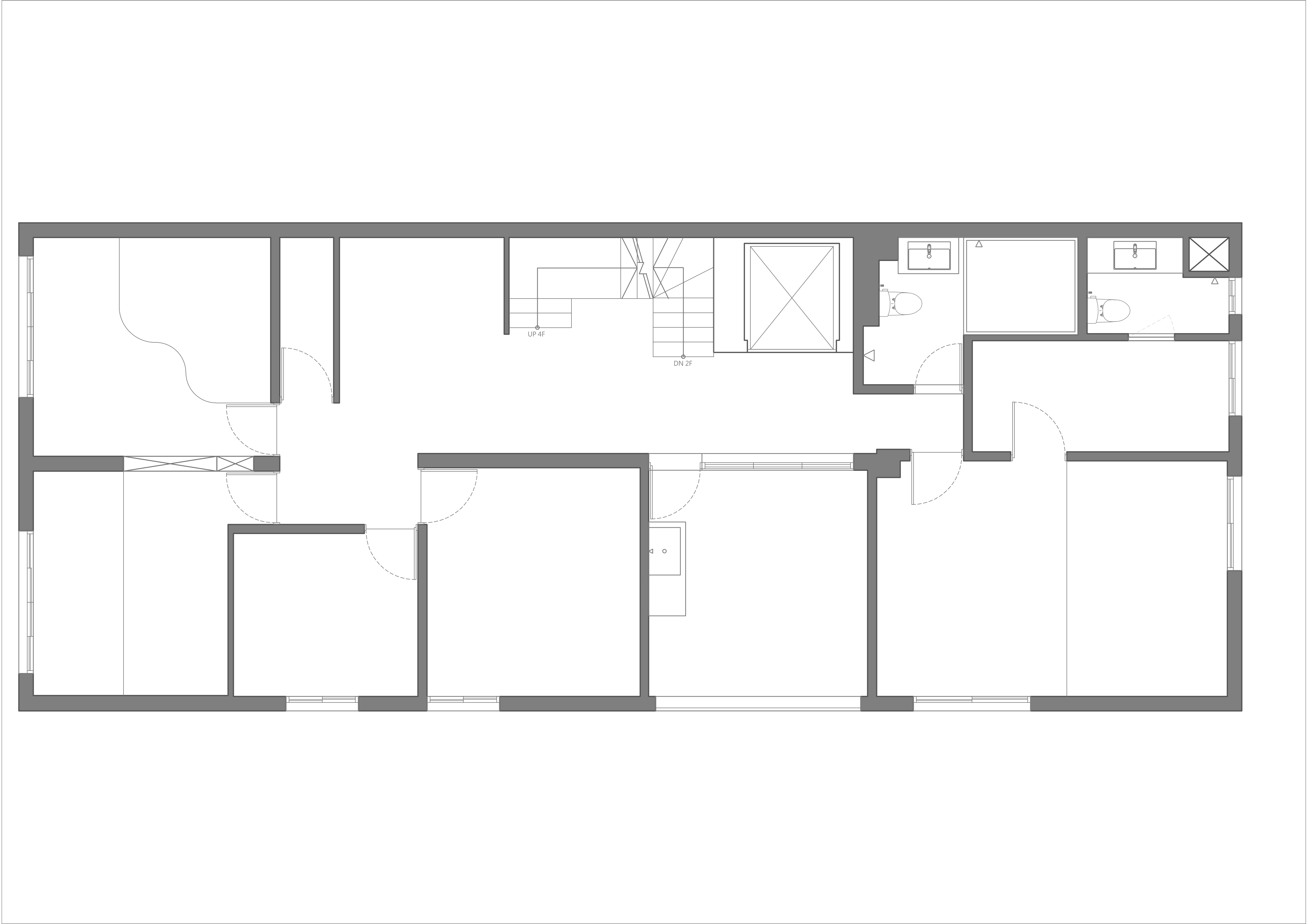
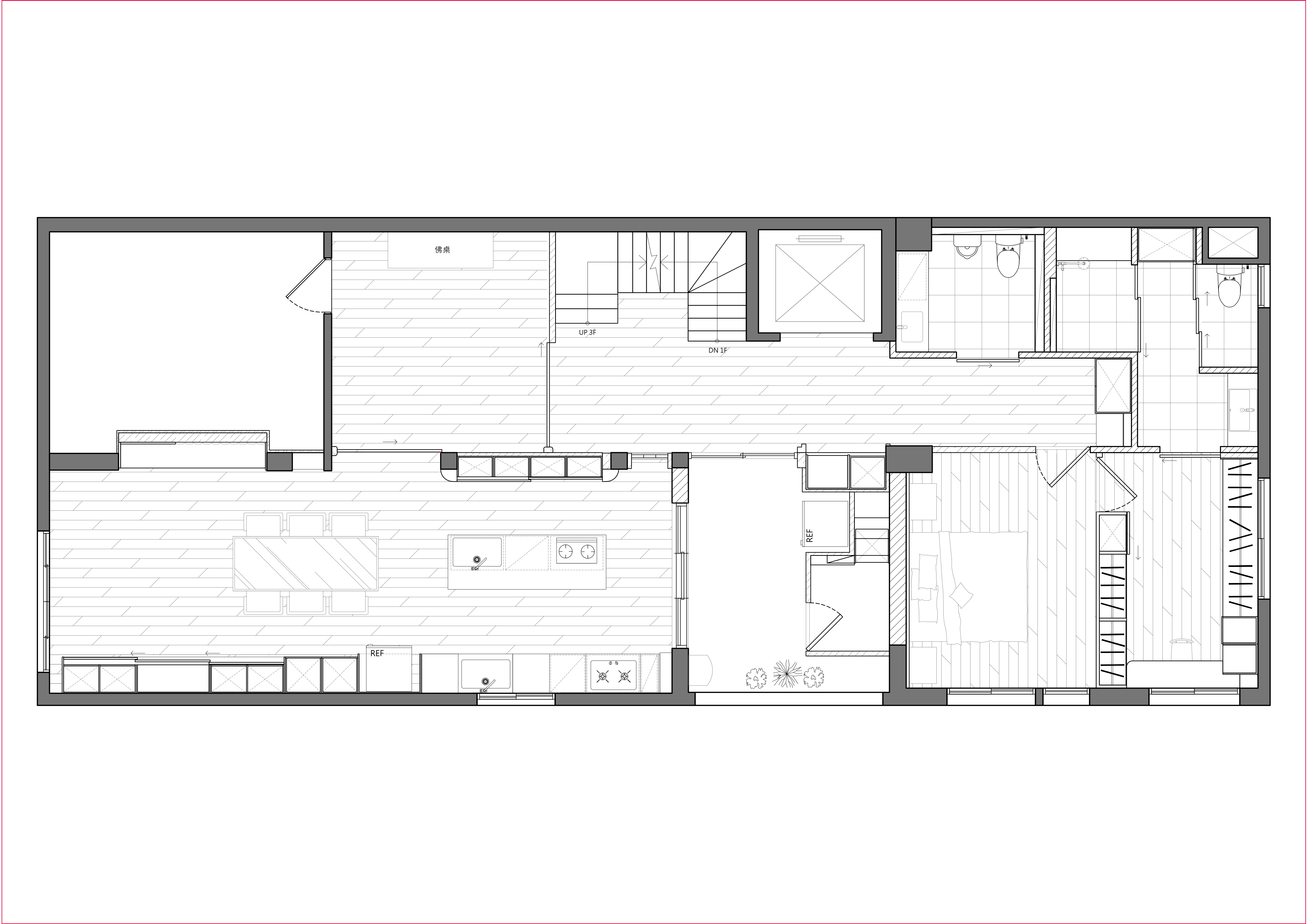
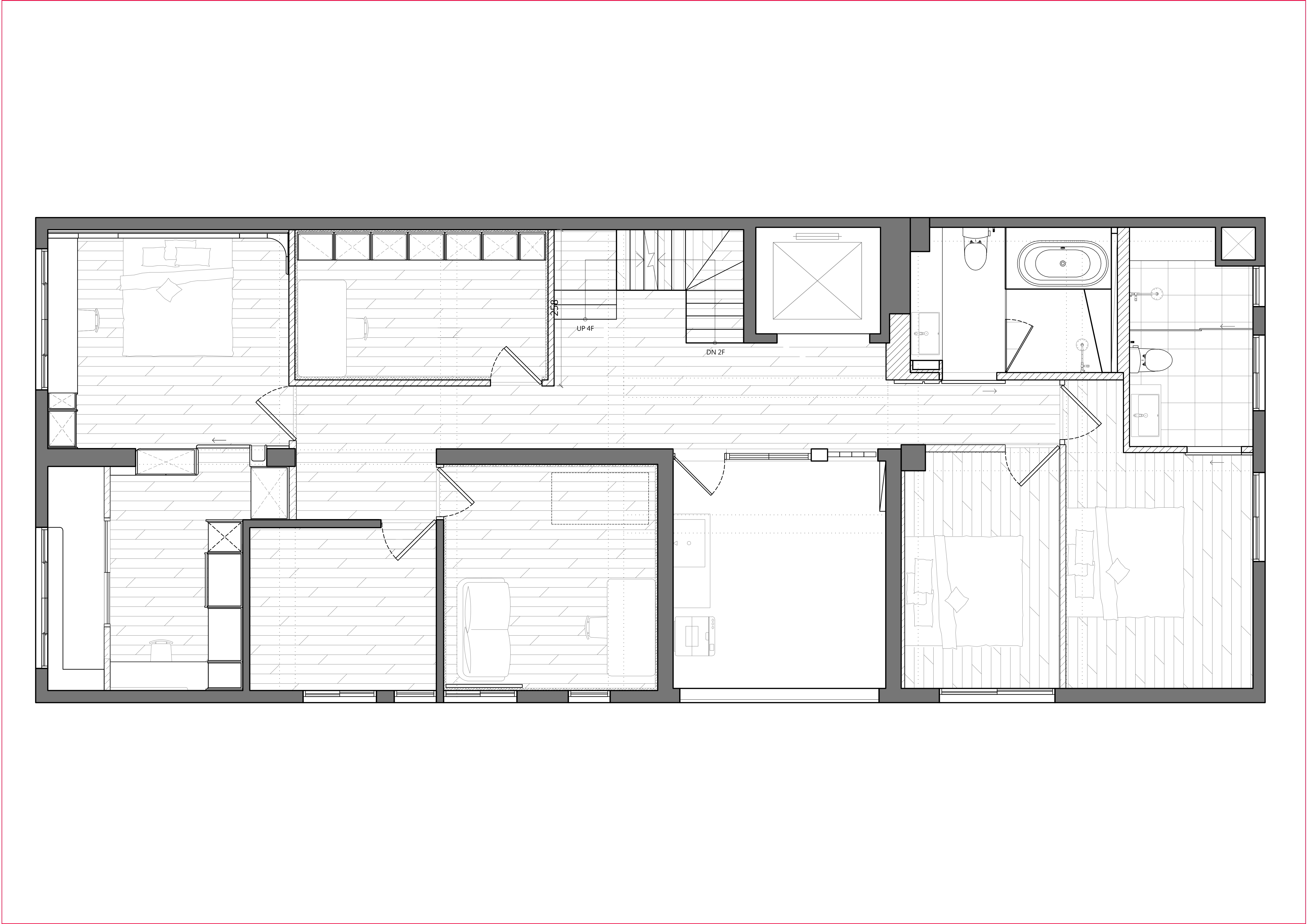
空间布局:針對單層48坪、共四層的老屋翻修,設計重點在於解決「垂直疏離感」與「水平尺度失衡」:
家族凝聚與隱私分流:在192坪的總體尺度中,我們重新定義了樓層機能。透過公領域的整合(客餐廚一體化),為三代成員創造了無障礙的交誼平台;同時在私領域層級,利用向量動線區分不同房室,確保成員間互不干擾的獨立節奏。
老屋結構的當代進化:翻修過程徹底檢視了舊建物光影不足與動線凌亂的缺陷。我們利用礦物塗料與天然木質,重新梳理了室內的色調系統,讓光線在灰階牆面上產生節奏感的律動,消弭了深長型建築的壓迫。
成長與彈性的機能配置:考量到孫女的成長需求,空間採取了減法配置以留出活動餘裕;針對其他空間的彈性,則透過「多功能場域設計」,使其在閒置時維持高度一致的極簡美感,使用時則具備完備的客宿機能。 -
设计选材:作品《春羽》命名象徵著家族羽翼的舒展與延續,在厚實的建築框架中,植入輕盈且具備生命張力的視覺元素。
材質美學的深度: 全室牆面運用手工疊加的礦物塗料,其特殊的顆粒感在不同強度的自然光下,展現出細膩的感官對峙。這種純粹的材質表現,中和了大型家電與櫥櫃的機械感,賦予空間一種安穩的定力。
開放式格局的尺度控管: 在單層48坪的寬敞格局下,我們不使用實體隔屏,而是藉由天花板的樑柱結構與地坪材質的轉換,界定出場域的界限,讓視覺與聽覺在家族聚會時能產生自然流動的連結。
永續家族住宅的體現: 這不僅是一次空間的翻新,更是一場關於時光傳承的設計實踐。從適於幼童奔跑的動線規劃,到適合長輩駐足的溫潤木質,我們以理性的設計筆觸,勾勒出一個能包容三代成員、共生共榮的理想家園。 -
用户体验:【投入使用後的實際效果】
本案完工後,成功地在四層樓的垂直尺度中建立了清晰的生活序列。單層48坪的公領域成為全家人最主要的互動軸心,開放式的佈局讓長輩在料理或用餐時,能隨時與在客廳遊玩的孫女保持視覺連結,達成了場域共融的設計目標。
在長期使用下,手工礦物塗料展現了極佳的視覺穩定度,其具備細微顆粒感的表面能有效吸收並柔化光線,即使在不同季節的強光照射下,室內依然維持著內斂且沉穩的質地。此外,整合式的收納系統成功隱蔽了多代共居產生的繁雜備品,使空間在日常生活壓力下,仍能保有最初規畫的凝練秩序。
--
【用戶評價彙整】
業主在實際居住後,給予了極具深度的反饋,主要集中於以下三個維度:
1.質感與觸感的共鳴: 業主夫妻表示,空間中的灰泥肌理與木質地坪營造出一種純粹的本真感,讓他們在結束高壓工作返家後,能迅速切換至放鬆狀態,與環境產生深刻的情感對話。
2.世代共處的包容性: 長輩對於無隔屏的動線規畫感到滿意,不僅行走動線更加順暢,更重要的是在家族聚會時,大坪數空間展現了極佳的生命張力,能容納多人活動而不顯得擁擠混亂。
3.材質的耐候與美感: 業主特別提到,隨著居住時間增加,天然材質隨光影演化的視覺層次讓空間更具「生命脈絡」,即使是偶爾回來居住的女兒,每次返家都能感受到空間那份自洽且克制的美學厚度。
0
0

认证 · 让您身份增值