弘毅健身运动中心设计
192 - 项目类型:休闲娱乐
- 项目地点:郑州市
- 建筑面积:3000㎡
- 项目造价:300万元
- 参与设计师:马星 韩朋 尚志远 刘雪晴 黄琳
- 竣工时间:2025年5月
- 设计机构:Aim爱木空间设计
-
项目定位:弘毅健身馆设计我们以 “科技感 + 极简美学” 为核心理念,通过合理分区、动线设计解决传统健身馆 “拥挤、混乱、功能单一” 的问题;又用氛围定制、细节美学解决 “运动空间缺乏质感、体验感弱” 的痛点,让健身从 “任务式” 变为 “沉浸式享受”。
-
空间意境:以 “未来感 + 舒适感” 为基调,用蓝、紫、浅金等低饱和色调 + 灯光元素,将科技感融入运动场景
-
空间布局:开放式布局配合闸机设计,既满足前台的接待属性,又能高效管理空间动线,兼顾美观与实用性。
-
设计选材:用哑光金属、防滑地胶、渐变亚克力等耐用材质,搭配 “场景化灯光”—— 蓝紫调适配高强度运动、暖金调适配静态放松、马卡龙色适配儿童趣味,既保证健身空间的实用性,又让美学风格贯穿全场,避免 “分区割裂感”。
-
用户体验:现代美学打造高端空间质感,通过功能分区与细节设计解决传统健身馆的体验痛点。既有科技感,又不失温度。
前台是健身馆的“脸面”,更是“效率枢纽”。但很多场馆的前台,要么拥挤到客人没地方站,要么动线混乱导致登记、打卡、咨询挤成一团。我们设计的核心秘诀,就是悬浮前台 + 闸机联动布局。
悬浮式台面 + 发光底座,搭配冷色调灯光,强化科技氛围,同时 “Hongyi” 品牌标识低调嵌入,不破坏整体极简感; 开放式布局配合闸机设计,既满足前台的接待属性,又能高效管理空间动线,兼顾美观与实用性。
用发光彩色标识牌(卫生间标识),既保证功能性,又延续科技美学,让细节成为风格的一部分;
休息区:设计核心是“为运动做减法”—— 用用发光柔光隔断(主色调为浅蓝渐变)作为空间划分元素,既延续了场馆的科技调性,又通过柔和光线替代冷硬隔断,弱化空间边界的同时营造 “轻包裹感”,让休息更放松,让休息区从“附属空间”变成“体验闭环的关键环节”,既满足实用需求,又让运动后的放松更具质感。
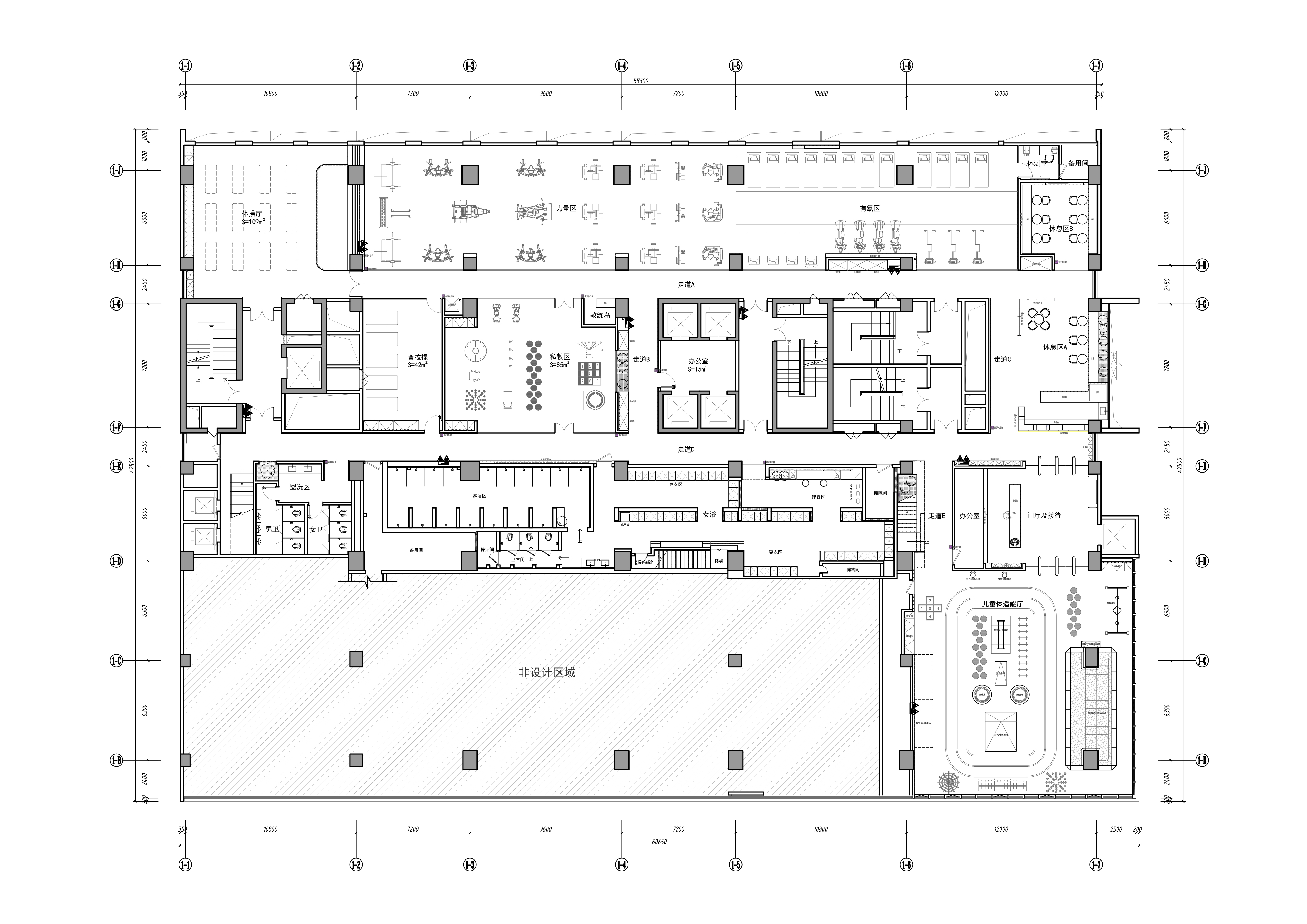
器械区:布局采用“对称式 + 主通道”设计,器械沿两侧整齐排布,中间预留2m宽的主动线,既解决传统健身馆“拥挤混乱”的痛点,又通过纵深布局强化空间的开阔感。 材质选择防滑耐磨地胶,休息区搭配软包家具,不同区域用材质区分功能属性,既保证实用耐用,又强化场景的体验感。
主题发光大屏、冷调科技感材质,将 “力量感” 与场馆整体的科技美学结合,既满足专业训练需求,又通过视觉氛围激发运动状态,让功能训练从“机械动作”变成充满沉浸感的活力体验。 材质与色彩以哑光金属、防滑地胶为主材质,搭配冷调蓝 + 局部暖光,既保证训练空间的 “力量感”,又通过光线平衡冷硬材质的距离感。
攀岩墙、彩色运动球、几何造型装置等元素,搭配马卡龙色调 + 大面采光,让儿童运动从 “任务式” 变成 “游戏式体验”,同时满足亲子陪伴的空间需求。
瑜伽 / 普拉提区:浅木色+暖光条+镜面扩容,抛弃传统健身馆的冷硬材质,用温润质感适配静态运动的“松弛需求”;器械收纳柜与空间一体化设计,保持视觉整洁的同时提升实用性。
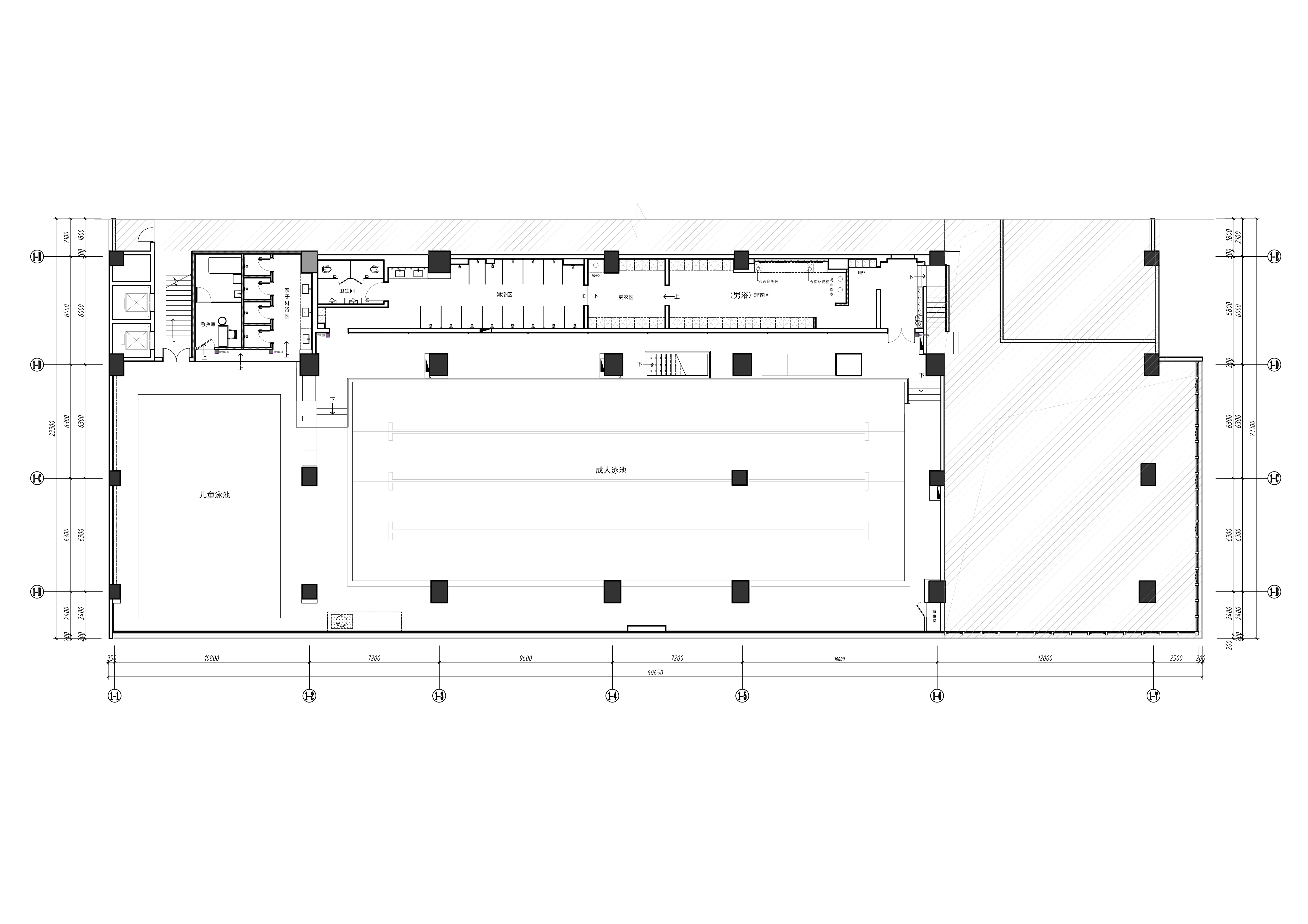
泳池区:用紫色渐变亚克力立柱 + 悬浮灯光,搭配大面玻璃窗,既解决传统泳池 “压抑感”,又通过灯光反射增强空间通透感。
好设计,是健身馆的“隐形销售”! 通过发光元素、蓝紫主色调、简约线条等元素的贯穿,让整个场馆形成“科技感 + 高级感” 的风格闭环,避免空间的割裂感,强化品牌的记忆点。 在健身行业竞争越来越激烈的今天,设计早已不是“锦上添花”,而是“核心竞争力”。一套能解决痛点、贴合需求的设计方案,不仅能提升场馆颜值,更能优化用户体验,让“一次体验”变成“长期留存”。
一层平面图
二层平面图
0
0

认证 · 让您身份增值