洛神幼儿园设计
296 - 项目类型:公共
- 项目地点:巩义市
- 建筑面积:4800.0000㎡
- 项目造价:300.0000万元
- 参与设计师:马星 韩朋 刘雪晴
- 竣工时间:2024年1月
- 设计机构:Aim爱木空间设计
-
项目定位:打破传统思维下对公立幼儿园的环境束缚,设计与园所理念、课程、实用功能相一致的空间环境,顺应个性发展,尊重幼儿差异化的心理诉求,让设计为园所核心竞争力赋能,打造一所温馨童趣,吸引孩子注意,激发孩子审美、探索兴趣和学习欲望的家园。
-
空间意境:踏入幼儿园门厅,便开启了童话森林之旅,长颈鹿在张望等待孩子们到来,宽敞、简约的空间,原木的纹路质感和柔和马卡龙撞色,抹去棱角分明的沉闷,营造视觉上的跃动冲突,诉说孩子们的故事。
-
空间布局:空间布局和功能设计,融合美学、自然与功能的同时,根据孩子的实际需求,调整空间格局,引景入室,无形中引导幼儿情绪和行为。
-
设计选材:考虑环保性、安全性、耐用性和美观性等多个方面,兼顾创新性和低碳性。避免尖锐边角和易碎部件。选择智能、互动、多感官体验、自然环保以及低碳节能的材料,为孩子们创造一个既富有启发性又安全健康的学习环境。
-
用户体验:好的幼儿园设计,其实就是在探讨孩子的行为与空间/景观之间的关系,它们是滋养孩子的环境,让孩子们可以在风景里奔跑,在童趣里穿行,与鸟对话,与树共舞,激发最原始的求知欲。
长久以来,我们习惯用“大人们认为”来思考并设计孩子的空间,忽略了多问问孩子们,需要什么?在高密度、标准化的城市空间中,寻觅一个如孩子想象中、童话般的空间显得弥足珍贵。
本项目为社区配套型公立幼儿园,园区建筑面积6500㎡,室内面积4800㎡,办学规模为18个班。 秉承园所“秀出彩、美出色”的办园理念,培养“有梦、有爱、有趣、有能”的现代儿童的办园目标,尊重儿童审美,融合成人对幼儿园设计的专业性判断。设计从园所定位进行深入,形成环境、教育与运营的三方连接,打破传统思维下对公立幼儿园的环境束缚,让孩子做幼儿园的“色彩主角”。
空间布局和功能设计,融合美学、自然与功能的同时,根据孩子的实际需求,调整空间格局,无形中引导情绪和行为。 提高儿童的自我认知能力、学习能力、社交技能与身体素质。
原木的纹路质感和温馨的自然色彩,营造幼儿园空间的“家”氛围,最大程度向自然敞开,感受满满的松弛感,无拘无束的自由。
结合实际教学需求进行因材施教的环境设计,最大化挖掘空间潜力,赋予可玩趣味,培养和释放想象力,获得经济性和功能性的双重提升。
流畅的曲线,以柔和线条抹去棱角分明的沉闷,与简约几何形状产生有趣对话,诉说孩子们的故事。
特色小景营造出自然氛围,设置可触摸、可听见、可看见的自然环境,让孩子们让孩子们在亲近自然的过程中感受生命的脉动,培养他们的观察力和想象力。
用童真的心去捕捉每一个有趣之处,适当留白,在装饰中给予孩子自我想象的空间,赋予创造美及感受美的能力。我们希望未来有更多幼儿园从规训化的空间范式回归到呵护、启迪的教育本源,给孩子们的童年时光增添温暖明亮的色彩。
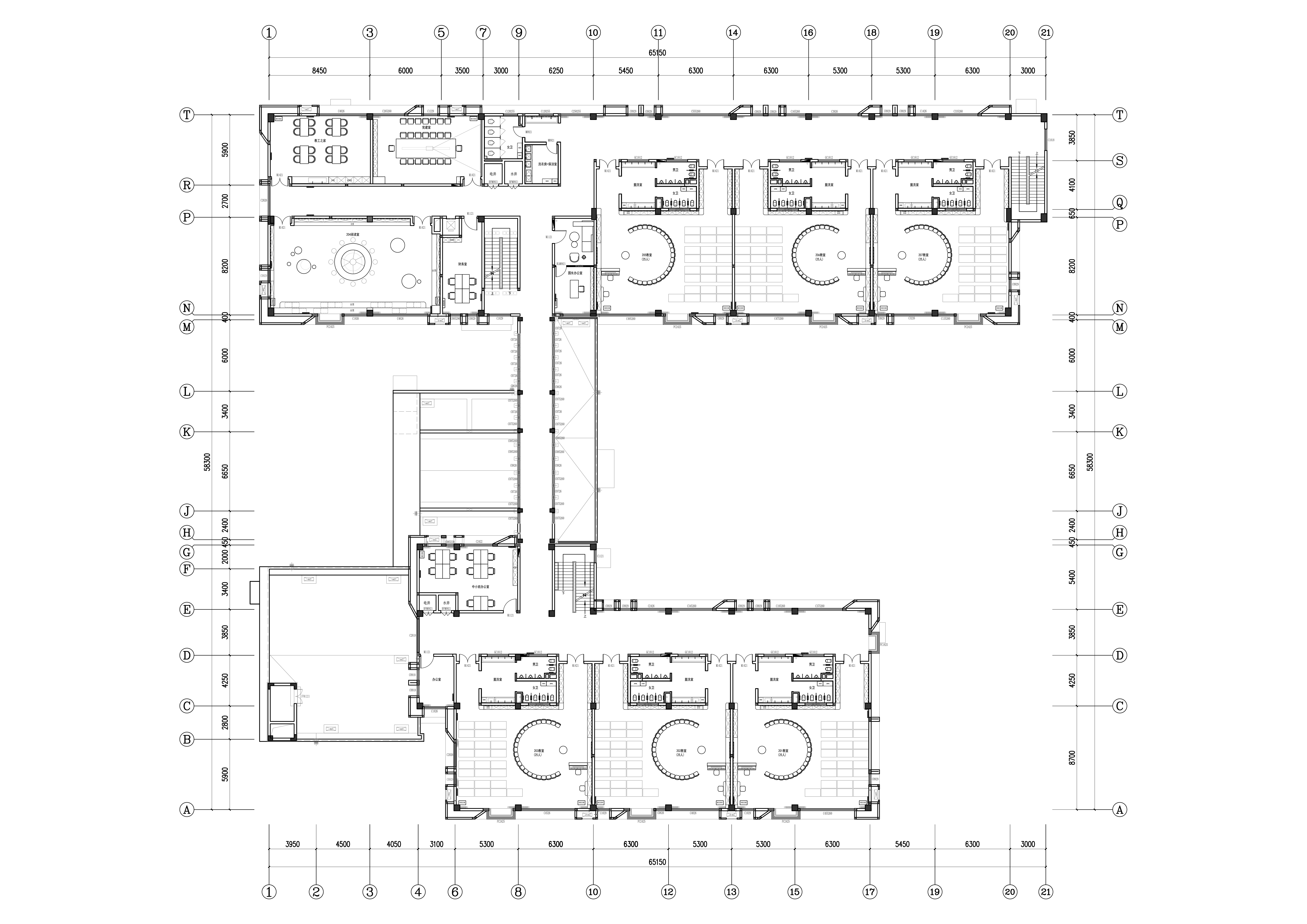
一层平面图
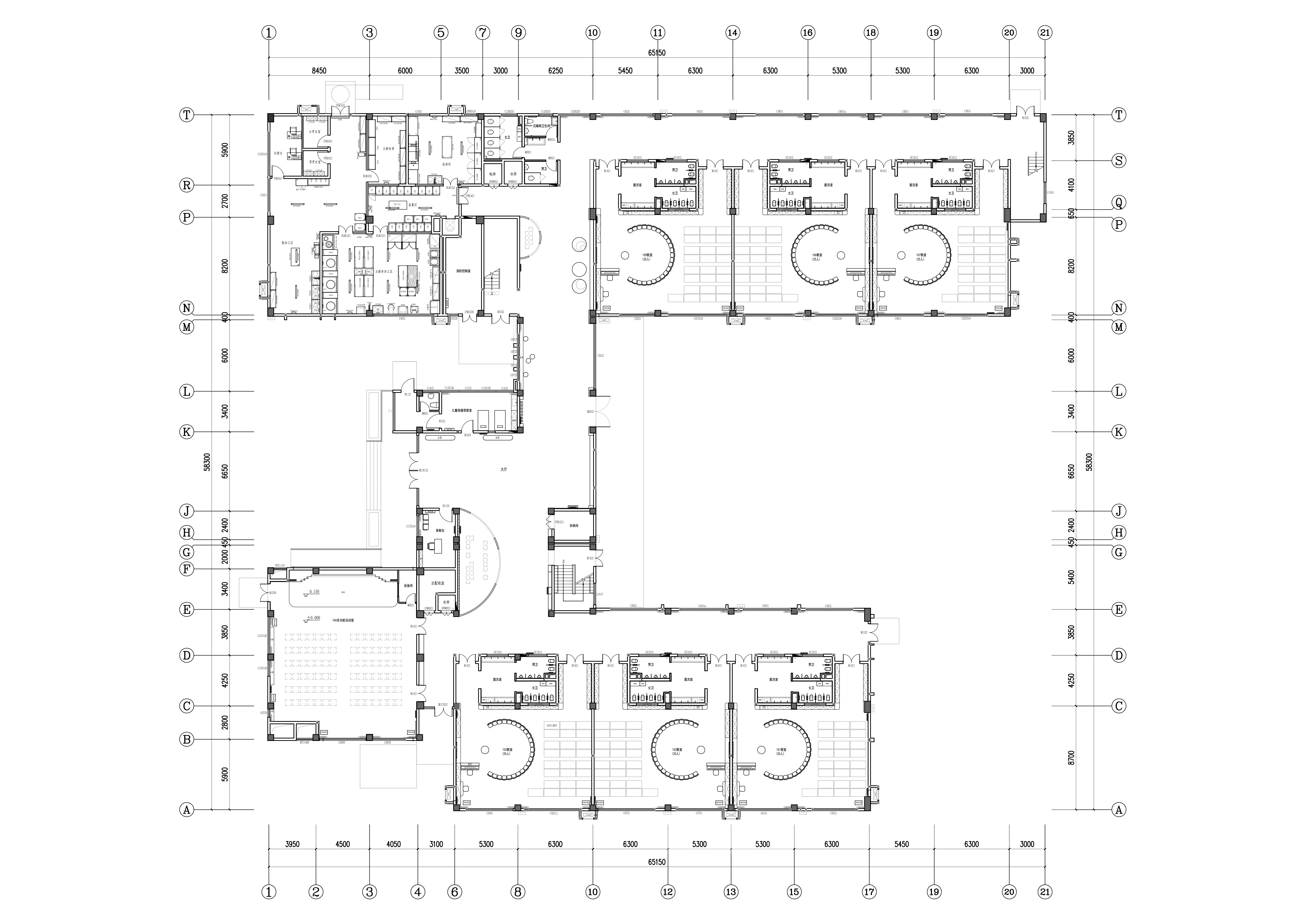
二层平面图
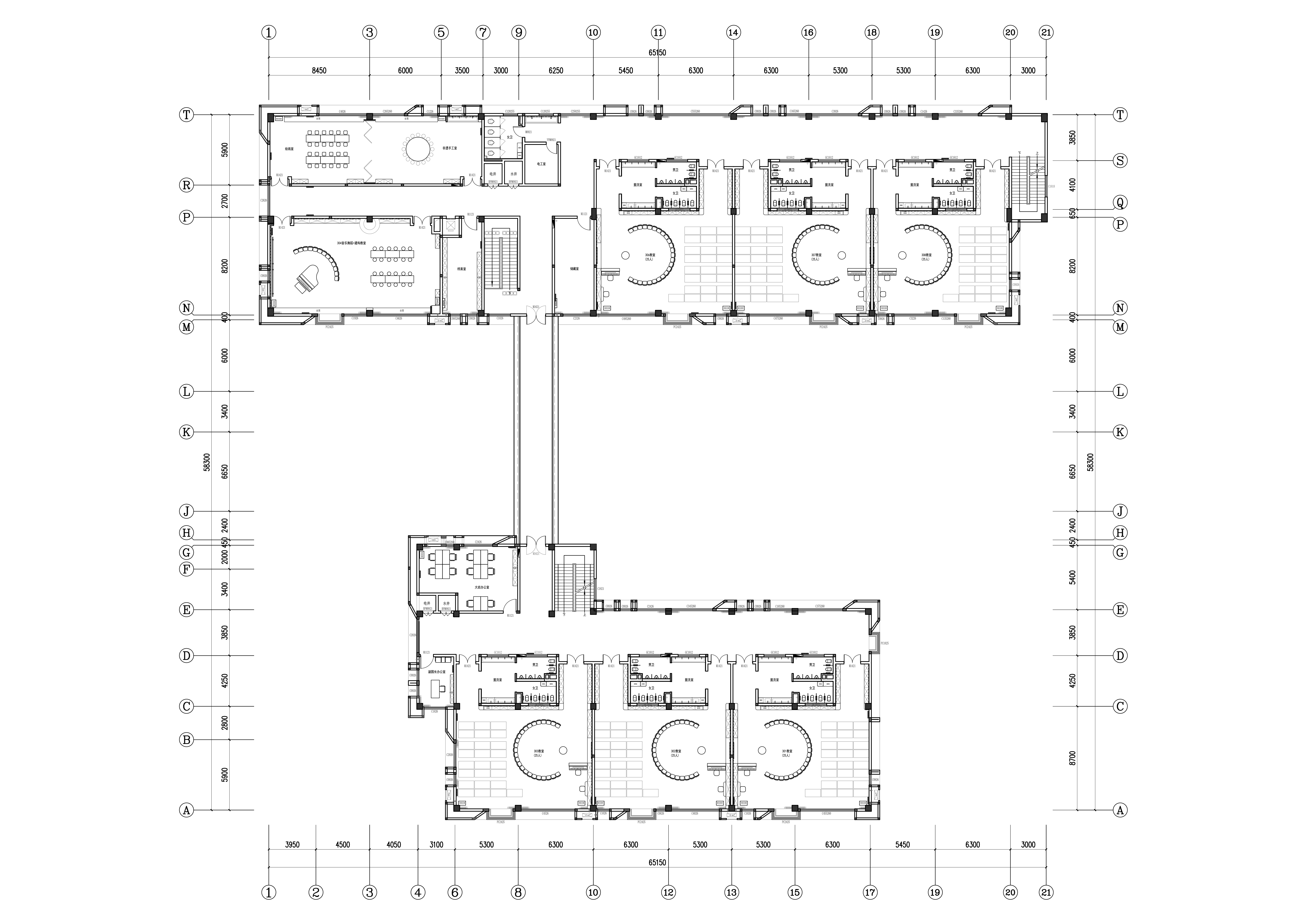
三层平面图
0
0

认证 · 让您身份增值