细节勾勒法式浪漫居所
170
作品说明
- 项目类型:住宅公寓
- 项目地点:成都市
- 建筑面积:228㎡
- 项目造价:125万元
- 主案设计师: 陈林
- 竣工时间:2024年10月17日
- 设计机构:成都观白设计
-
项目定位:以 “法式浪漫与全龄实用共生” 为核心定位,深度契合祖孙三代居住、保姆服务及旧家具再利用的多元需求。摒弃单纯法式风格复刻,将古典美学与现代生活哲学交织,通过功能区重构、动线优化与风格协调,打造兼具仪式感、适配性与资源利用率的法式雅居,让浪漫格调与全龄适配需求完美融合,诠释 “生活即浪漫叙事” 的设计理念。
-
空间意境:创新将经典法式符号与现代生活场景深度融合,以石膏线勾勒优雅轮廓、拱形门洞延续柔美线条,搭配水晶吊灯、复古雕花镜等元素奠定法式基调。同时,为各空间赋予专属主题:客厅化身 “法式浪漫剧场”,餐厅聚焦 “用餐仪式感”,卫浴兼具奢华与实用,儿童房融入童趣却不失格调,让法式优雅渗透全场景,避免风格单调,实现古典美学与日常烟火气的平衡。
-
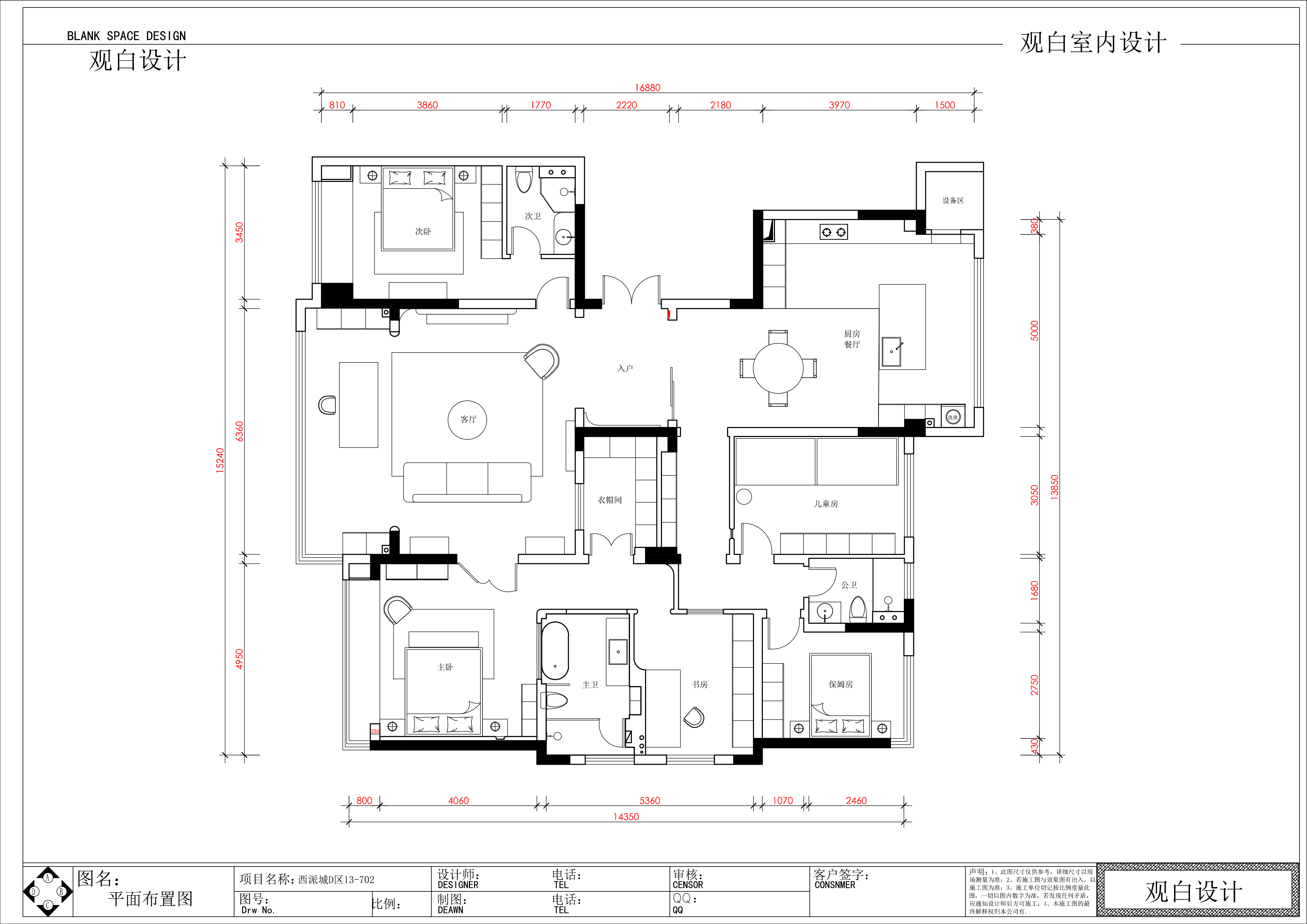
空间布局:围绕需求重构空间布局,核心创新在于功能区科学迁移与全龄适配:调整主卧开门位置优化动线,将书房迁移至卫生间背后打造静谧工作区;精准划分老人间、保姆间、儿童房等的不同需求;采用中西厨联动设计 + 中岛台,构建互动型公共空间,同时通过动线规划与区域划分,兼顾各功能区私密性与家庭互动需求,让布局紧凑却不局促。
-
设计选材:选材创新聚焦 “质感、低碳与经济性平衡”:优先复用旧家具,通过尺寸预留、色彩材质协调实现新旧融合,减少资源浪费;核心材质选用深木色地板、深棕色地柜、白色吊柜、石膏线等,既契合法式风格的温润与精致,又兼具耐用性;搭配玻璃隔断、金属五金等材质提升通透感与质感,无过度奢华选材,以材质合理搭配控制成本,实现环保低碳、美学呈现与经济实用的三重诉求。
-
用户体验:主卧动线流畅、书房静谧专注、老人间采光舒适、儿童房实用童趣、保姆间规划贴心,中西厨联动满足烹饪与互动需求,法式氛围带来满满仪式感。全龄需求均被精准满足,既实现了旧家具的有效利用,又收获了浪漫优雅的居住环境,日常居住便捷有序,情感互动场景自然呈现,达成了 “实用功能” 与 “美学质感” 的双重满意,体验感远超预期。
0
0

认证 · 让您身份增值