无界空间·在开放中联结
169
作品说明
- 项目类型:住宅公寓
- 项目地点:成都市
- 建筑面积:143㎡
- 项目造价:80万元
- 主案设计师: 陈林
- 竣工时间:2024年9月12日
- 设计机构:成都观白设计
-
项目定位:以 “情感互动为内核,中古美学为载体,功能优化为支撑” 展开设计。通过空间重构打破区域隔阂,强化家庭交流场景;融入中古风格的材质、色调与装饰元素,营造温暖艺术氛围;结合现代生活习惯优化功能布局,实现实用性与美学的深度融合,诠释 “家作为情感与生活艺术容器” 的理念。
-
空间意境:本案以 “情感交互为核心,功能美学共融合” 为理念,通过空间重构与细节雕琢,打造中古韵味与现代生活兼具的理想居所。通过空间、功能、美学的多维设计,诠释现代家居的深层意义:家不仅是居住空间,更是情感交流的温暖场域,在中古韵味中,演绎实用与诗意共生的生活篇章。
-
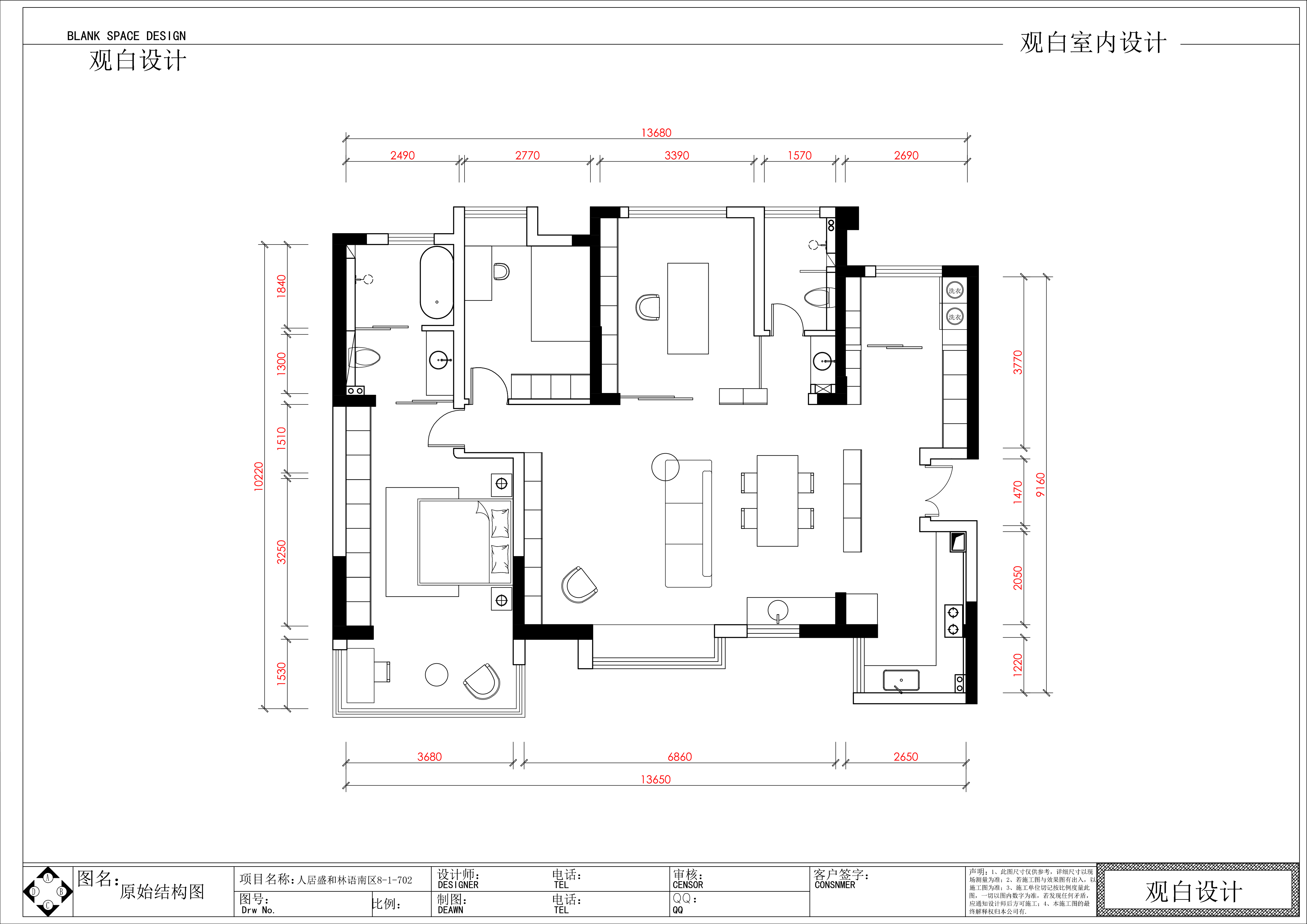
空间布局:打破套四固有框架,改为套三布局,弱化冗余卧室功能,将重心转向公共区域。厨房以极窄超白玻璃推拉门连接餐厅,实现烹饪时照看家人动态;客厅沙发背景透视窗洞、餐厅餐柜透视设计,打破空间封闭性,构建客厅、餐厅、厨房联动的家庭核心交流场域,让情感互动自然流淌。
-
设计选材:选用胡桃木、奶油艺术漆等中古适配材质,搭配嵌入式环保构件,低饱和色系适配多元场景,选材兼顾环保低碳与性价比,实现美学与经济性平衡。
-
用户体验:空间联动满足家庭互动需求,收纳与功能优化提升生活品质,中古氛围温暖有质感,既适配日常实用,又承载情感交流,获用户对实用与温度的双重认可。
0
0

认证 · 让您身份增值