流动的共生
93
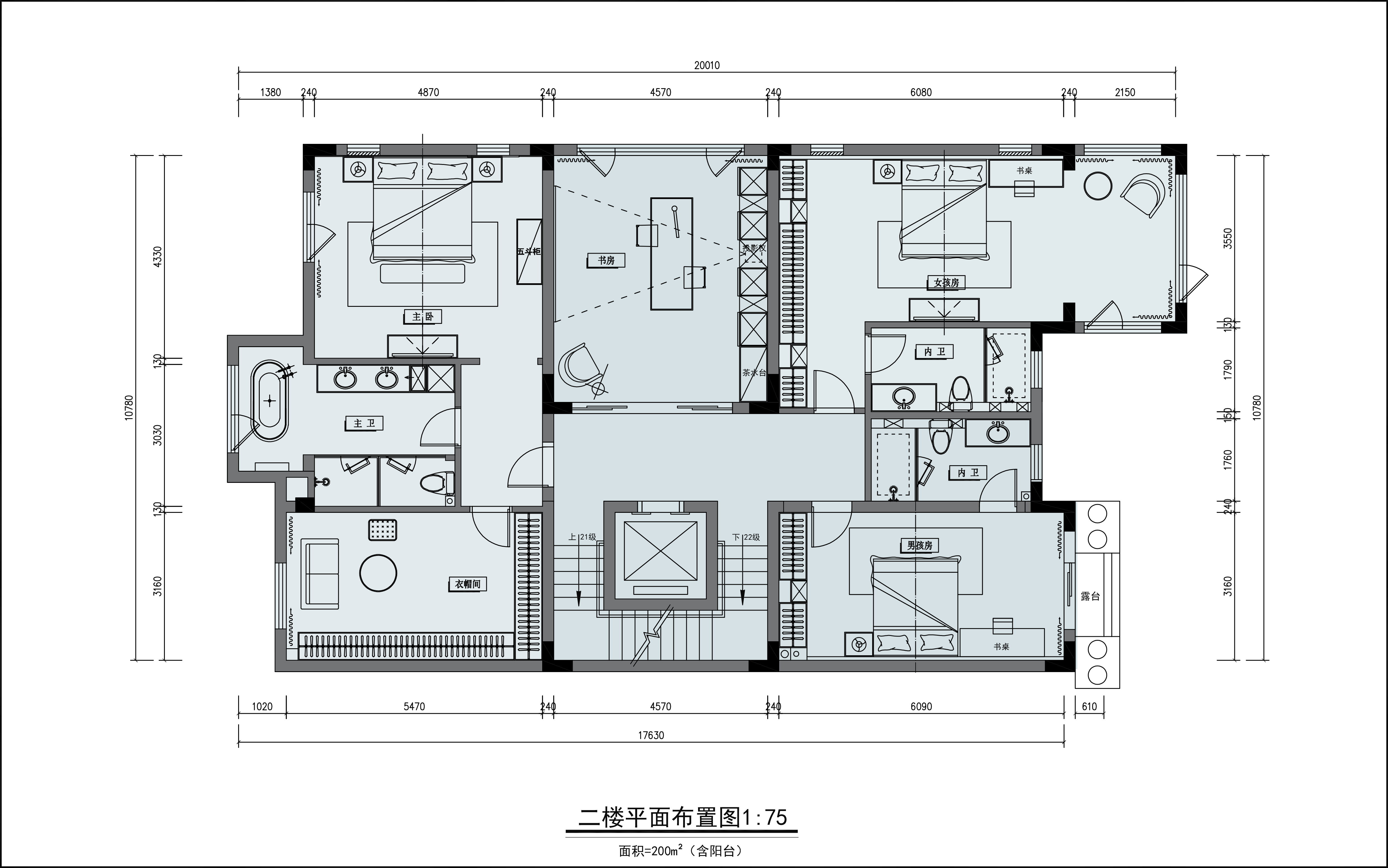
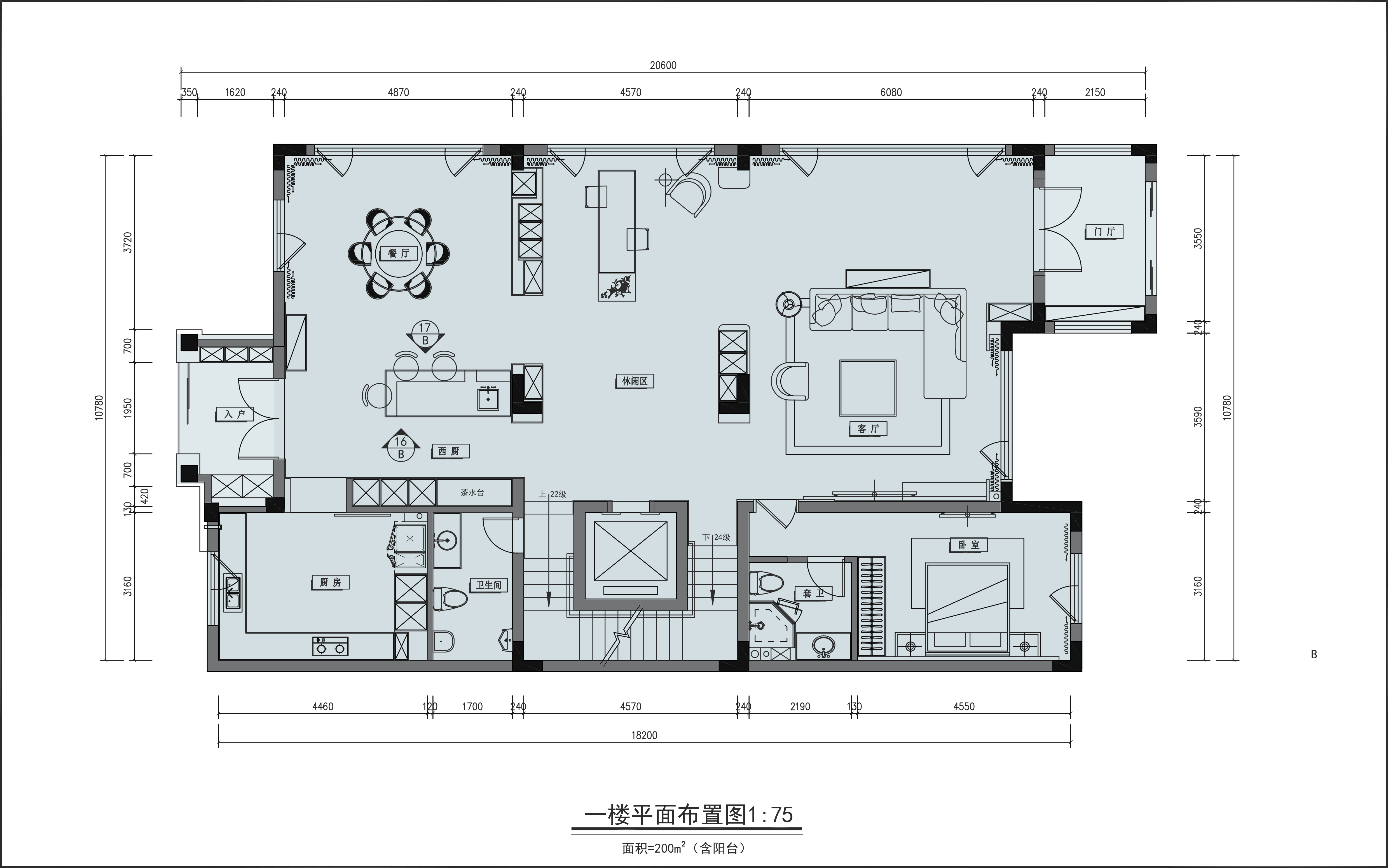
作品说明
- 项目类型:别墅
- 项目地点:常州市
- 建筑面积:800㎡
- 项目造价:550万元
- 主案设计师: 刘峰
- 竣工时间:2024
- 设计机构:内再空间设计
-
项目定位:以“无界共生”为理念,打破传统空间界限,将西厨、餐厅、书吧与客厅有机整合为连贯的开放式生活场域。
-
空间意境:通过材质碰撞、功能叠合与自然光影的引导,塑造兼具社交活力与静谧质感的轻奢自然居所,满足现代家庭多元化的生活场景需求。
-
空间布局:通过“功能无界化、材质自然化、体验人性化”三重策略,让烹饪、用餐、阅读与社交在同一时空和谐共存,在精致与松弛之间找到完美支点,重新定义当代墅居生活范式。
-
设计选材:通过“功能无界化、材质自然化、体验人性化”三重策略,让烹饪、用餐、阅读与社交在同一时空和谐共存,在精致与松弛之间找到完美支点,重新定义当代墅居生活范式。
-
用户体验:
0
0

认证 · 让您身份增值