栖光·沐绿
147
作品说明
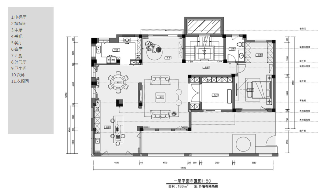
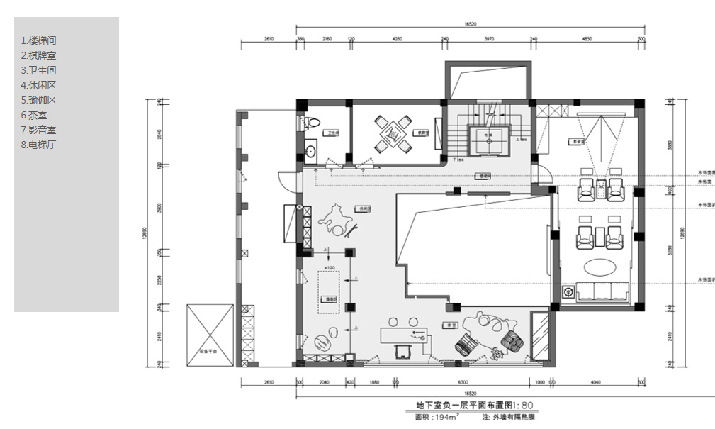
- 项目类型:别墅
- 项目地点:常州市
- 建筑面积:800㎡
- 项目造价:500万元
- 主案设计师: 刘峰
- 竣工时间:2024
- 设计机构:内再空间设计
-
项目定位:
栖光—捕捉东西向晨昏光影的韵律,让空间随时间流转呈现不同表情
沐绿—将庭院景观延伸为室内生活的底色,模糊建筑与自然的物理边界 -
空间意境:以"光为引,绿为媒",打造一座会呼吸的自然容器
-
空间布局:将庭院景观延伸为室内生活的底色,模糊建筑与自然的物理边界
• 清晨被鸟鸣唤醒时,纱帘外摇曳的树影落在亚麻床单上
• 午后斜阳透过木格栅,在白墙上绘出渐变的金色光栅
• 雨滴顺着玻璃幕滑落,坐在窗边看庭院里的芭蕉叶微微颤动 -
设计选材:将庭院景观延伸为室内生活的底色,模糊建筑与自然的物理边界
• 清晨被鸟鸣唤醒时,纱帘外摇曳的树影落在亚麻床单上
• 午后斜阳透过木格栅,在白墙上绘出渐变的金色光栅
• 雨滴顺着玻璃幕滑落,坐在窗边看庭院里的芭蕉叶微微颤动 -
用户体验:
0
0

认证 · 让您身份增值