在粗粝与诗意间自由生长空间叙事
2
作品说明
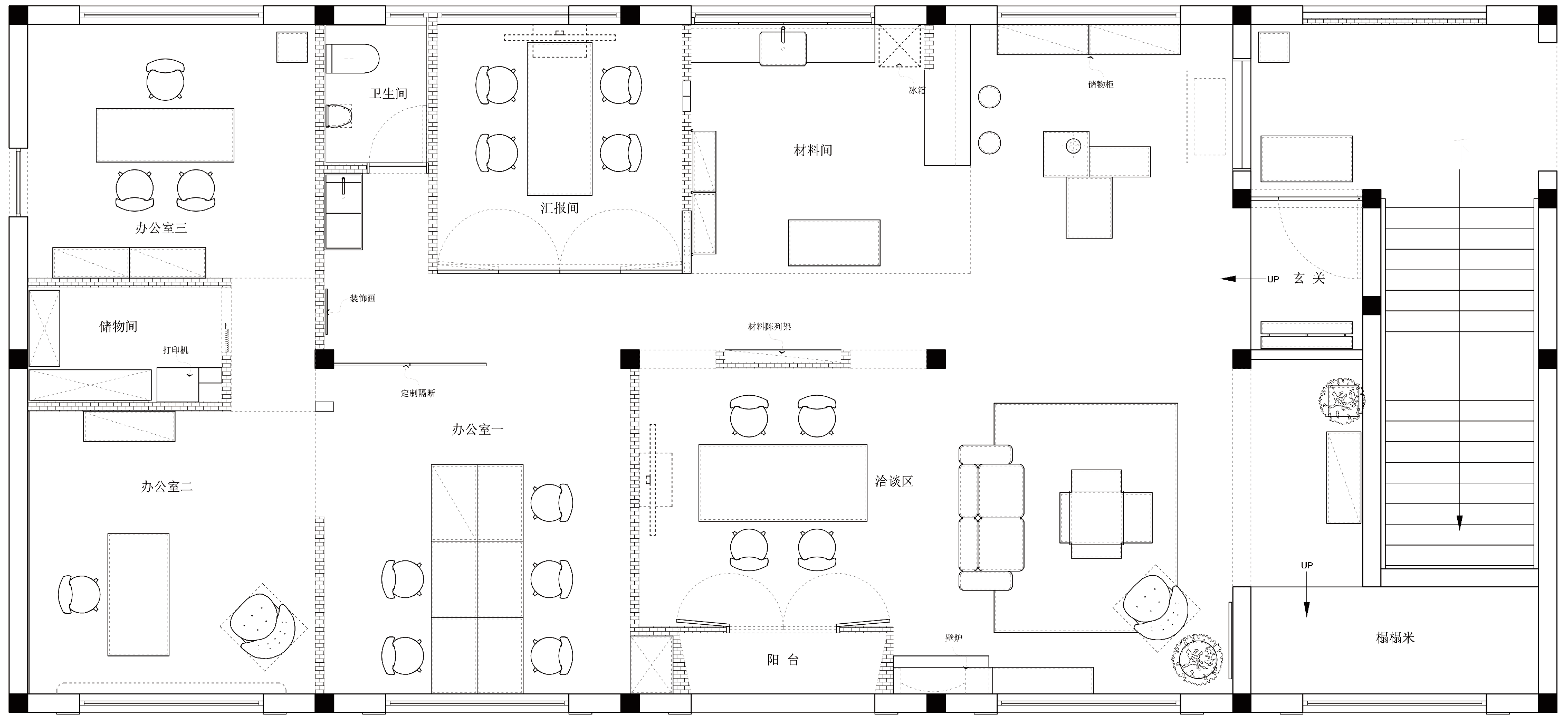
- 项目类型:办公
- 项目地点:宁波市
- 建筑面积:170.0000㎡
- 项目造价:45.0000万元
- 竣工时间:2025.08
- 设计机构:宁波山与空间设计有限公司
-
项目定位:此处不是设计的容器,而是会呼吸的有机体。
光,成为最敏锐的叙述者,它穿过半透纱帘,在深色木地板上投下朦胧光晕,多处缝隙间溢出「庭院深深深几许」的叩问; -
空间意境:粗粝的水泥横梁切割出几何阴影,黑色皮质沙发如沉默的岛屿,又像骤然迸发的诗行。木质的温润与金属的冷感在光影中对话,绿植从角落探出切割过水泥横梁,与悬挂的白色吊灯在空气中碰撞;最终栖息于龟背竹的阔叶脉络间,将自然语法写入工业肌理,不过更多的是接近宋人的留白美学。
-
空间布局:空间像一场持续进行的材质诗会:地毯奔腾着《山海经》的兽纹,而透明水族箱里游着的正是庄子的鱼,它们穿越玻璃幕墙与木雕佛像默诵「应无所住而生其心」为空间传达出自由的静谧与修行。黑色皮革沙发沉淀下静谧的锚点,橙黄座椅如标点符号般跃动出节奏,一切在触觉上的形成对位法。每一处细节都在诉说矛盾的美学辩证。当视线掠过裸露管线构成的线性网络,终将落定于插着大丽花的白色花瓶,那些柔软的粉色调,恰似硬朗空间里突然浮现的抒情诗节。这是一个允许灵感自由踱步的场域。
-
设计选材:空间刻意保留着未完成的生长态,如同搁板上待翻阅的书籍、绿植持续舒展的新叶,邀请使用者共同书写下一章。在这里,创意如同透过窗户瞥见的树影,既锚固于大地,又永远向天空伸展。
-
用户体验:此处非园非宅
却是陶渊明与包豪斯的对谈录
每一个物件都在进行时空转译:
「苔痕上阶绿」渗入水泥柱
「草色入帘青」漫进霓虹花瓶
工作室如一首慢词
上阕是工业革命的铁骨
下阕缀满江南窗棂的冰纹
而在旋转椅划出的弧光里藏着一整个等待未拆封的桃花源记。
0
0

认证 · 让您身份增值