光的容器
3
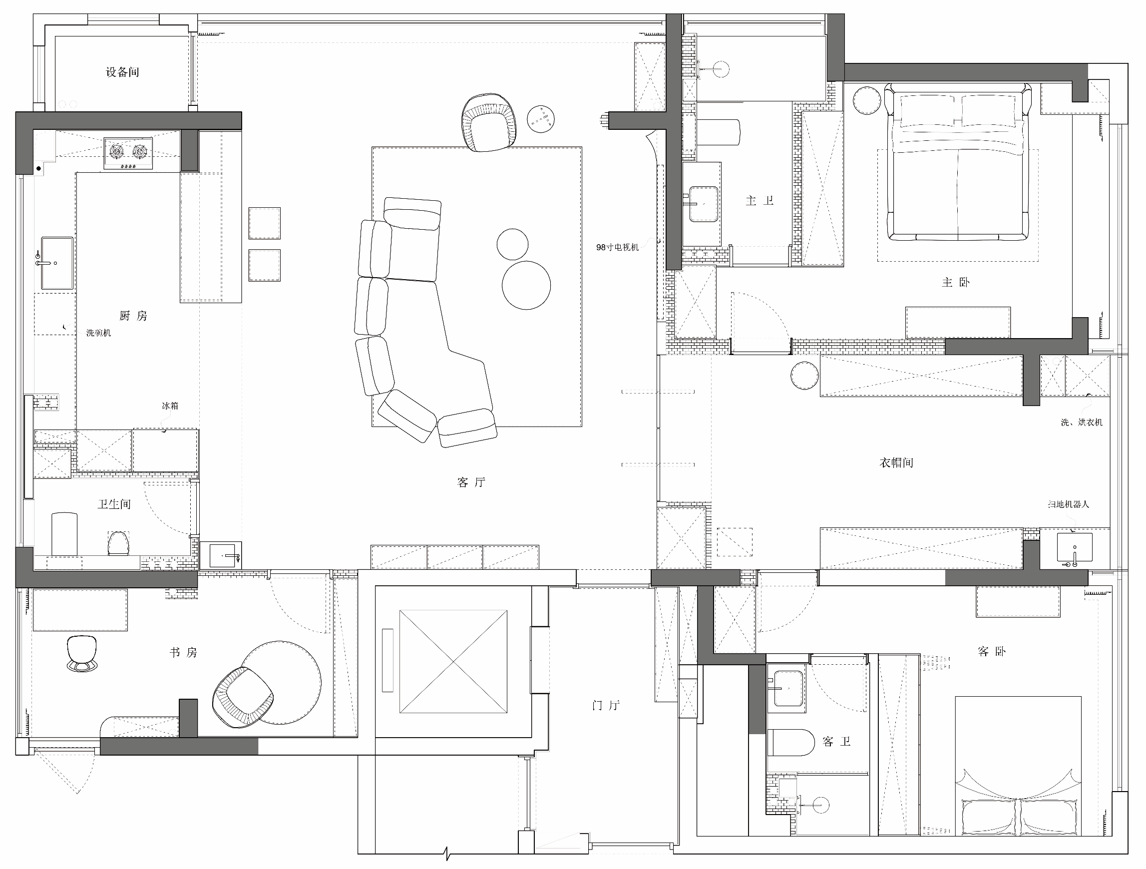
作品说明
- 项目类型:住宅公寓
- 项目地点:宁波市
- 建筑面积:160.0000㎡
- 项目造价:80.0000万元
- 竣工时间:2025.08
- 设计机构:宁波山与空间设计有限公司
-
项目定位:家,是清晨推窗时涌入的阳光,是晚归时一盏等待的灯,是疲惫的最安心的褶皱沙发......它从来不是冰冷的四面墙和屋顶,而是容纳情绪、滋养生命的容器。张爱玲说:“人生是一袭华丽的袍,爬满了蚤子。”而家的色彩,是袍子底色的隐喻。色彩从不只是装饰,更是空间对主人情绪的“通感翻译”。
-
空间意境:在光的容器中,空间被解构为流动的隐喻。十帧切片拼合成一场无声的哲学叙事——厨房的浅色柜体是理性的秩序,墨绿大理石岛台却忽然坠入诗性的漩涡,如同被晨雾浸染的森林在金属与岩层中复活。百叶窗切割的光斑在深棕墙体上写下变形的密码,而壁灯以暖黄瞳孔凝视那些未被言说的沉默。
-
空间布局:落地窗是空间的终极修辞,将城市压缩为一幅动态壁画。高楼与绿树在玻璃的边界完成三次折射:既是景观,亦是镜鉴,最终成为心象的投射。木质地板从厨房流向客厅,如同温润的河床,承载着脚步的韵律与器具的星群。
-
设计选材:这里没有房间,只有光与物质的重组。它并非被设计,而是自发地生长,如同苔藓沿着时间攀爬,最终包裹了整个存在的重量。
-
用户体验:间是光的容器,亦是时间的褶皱。像古代巫师的秘药装置。百叶窗将光线切割成平行的诗行,洒在淋浴区氤氲的水汽上。那些看似无序的收藏品、跳跃的色彩碎片、异形家具,皆是灵魂拒绝被规训的证词。
最终空间超越了功能主义囚笼,成为自由意志的拓扑学模型。它既收纳肉体休憩的必需,更安放那些无法被量化的渴望。在秩序与混沌的边界,居住如一场持续的创作,每个物件都是自我书写的字符,共同构成一部开放而深奥的存在之诗。
0
0

认证 · 让您身份增值