存在的生命力
23 - 项目类型:别墅
- 项目地点:宁波市
- 建筑面积:400.0000㎡
- 项目造价:360.0000万元
- 主案设计师: 卢敏
- 竣工时间:2025年3月10日
- 设计机构:反象设计事务所
-
项目定位:回归自然,是对生活另一种形式的求索。组织一场关乎自然与空间的精细化编织,打破常规预设,展开丰富且难以复刻的情节,激发生活的无限畅想。设计运用结构、光、自然构建共生语境,回归材质本身的纯粹属性。光漫入室内,绿植循光生长,又仿佛顺着茶桌破地而出,侘寂感与生命力交织,润物无声间,构成空间更深层的情绪语言。基于挑空结构搭建内建筑体块,地下一层客卧的斜窗构建「盒子」造型,将楼下的绿植和阳光纳入框景,自然的流入打破了地下室寝居的逼仄感,实现上下界面的交互与穿透。日常行迹间,感受多样化的生活意趣。
-
空间意境:男业主为当地企业家,女业主全职太太,女儿刚大学毕业,儿子还在读小学,他们是追求‘自然与品质’平衡的新中产:他们既需要“简约的设计”来缓解都市压力,又需要“品质的细节”(如材质、工艺)来体现生活品味;既注重“实用性”(如收纳、智能),又追求“情感共鸣”(如自然融合、记忆温度)。
-
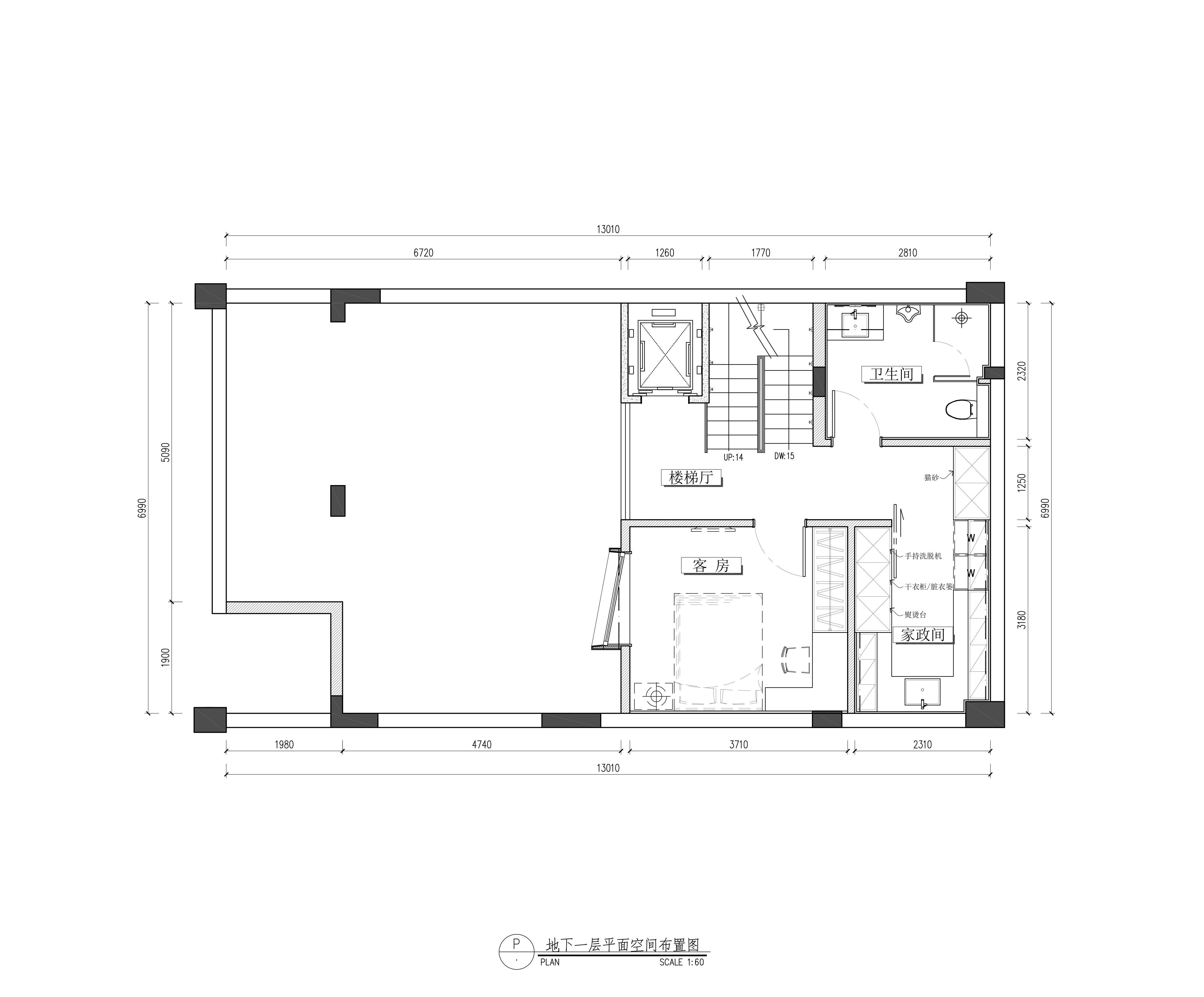
空间布局:本案为地上三层,地下两层的别墅,设计重新界定共享边界,依循层界划分休闲、社交、睡眠等专属性更强的空间形态,转承舒适的生活节奏。地下室集合了休闲栖居的多维属性,打造社交剧场。基于挑空结构搭建内建筑体块,实现上下界面的交互与穿透,日常行迹间,感受多样化的生活意趣。
-
设计选材:通过材料革新与施工模式变革来实现低碳与经济性的统一。例如,选择薄型化、装配式的岩板,采用可再生原料的饰面板,以及应用低能耗、低排放生产工艺的混油板,这共同构成了一套面向未来的、负责任的选材方案。
-
用户体验:它营造的“治愈感”。在快节奏的都市生活后,一个能让人瞬间放松、回归简单的家显得尤为珍贵。木材的温润触感和自然纹理,能带来视觉和触觉上的双重抚慰。地下室光进入采光天井,光打在树上形成倒影到茶桌上形成了我们的设计巧思,给客户及他的客人增加了品茶的趣味性。
地下室集合了休闲栖居的多维属性,打造社交剧场。基于挑空结构搭建内建筑体块,实现上下界面的交互与穿透,日常行迹间,感受多样化的生活意趣。
设计运用结构、光、自然构建共生语境,回归材质本身的纯粹属性。光透过天井漫入室内,绿植循光生长,又仿佛顺着茶桌破地而出,侘寂感与生命力交织,润物无声间,构成空间更深层的情绪语言。
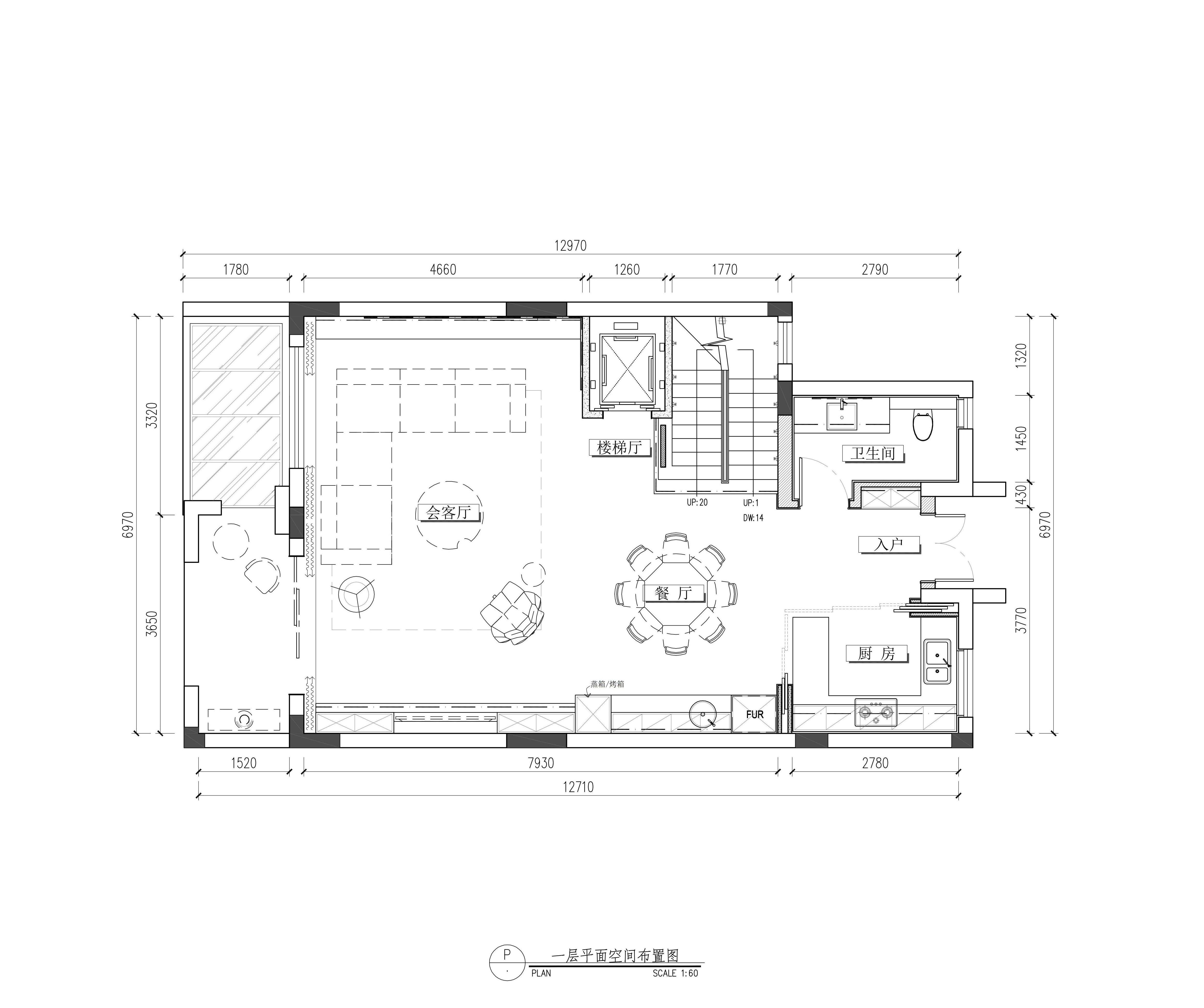
一层作为家庭生活区,围绕室内外的关系和场景互动进行构思,释放整个空间的通透感和自由度。原木与润白搭建整体基调,调度不同材料的组合比例深入探索空间逻辑,创造出宁静且专注的环境。
沙发沿着转角结构围合,向餐厅区域散射更丰富的交流,凝聚家庭的亲密感。电视机背景墙内收储藏空间,结构与场景形成紧密依存,互相对称和谐,达成统一的空间语言。
厨房向外延伸一方吧台,与餐桌形成紧密的次动线,加强交流互动。厨房采用联动玻璃门,既可以隔绝油烟,还能减少对空间的占用,根据场景需求赋予尺度开合的自由。
设计以极其克制的态度,协调着空间秩序的运行。通过暖调和润白的色块对比,明确餐厨之间的过渡关系,打破平铺直叙的单一形态。
始终保持一份理性逻辑,在完善生活功能之上,把控秩序与美学的平衡。楼梯采用超透白玻扶手,削弱体块的厚重感,展现舒缓从容的界面过渡。
转角的卫浴延续了整体氛围,在自然材质的修饰中,铺叙温润质感。
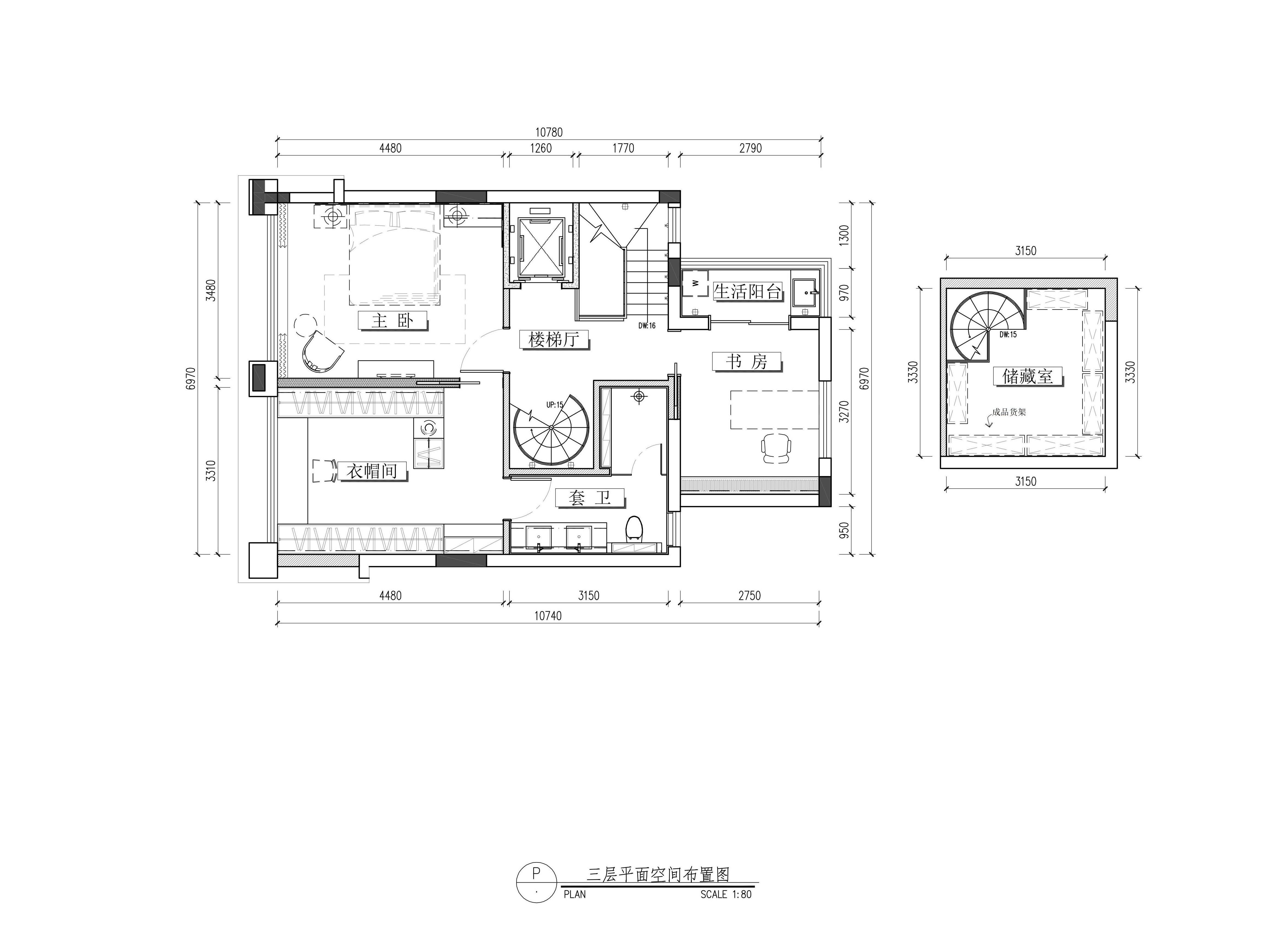
主卧通过移门划分入寝区和独立衣帽间,床头背景墙梳理着层次与纹理,切割出块面流畅的黄金比例,传达身心舒适的空间尺度。
衣帽间根据业主的习惯进行精细化布局,私享生活的精致仪式感。
次卧以留白让渡更多余地,通透空间的呼吸感。原木组合结构框架,汲取自然光作为氛围感修饰,牵引出缕缕温暖之意,细节中妥帖关照居住品味。
建筑外立面延伸露台,合理的开窗设计获得别墅应有的大气开阖,也让室内和自然之间衍生天然的亲密关系。闲庭漫观,友人闲谈或侍弄花草,人与人、人与自然皆能形成亲密的沟通交流,静享松弛。
-2F平面方案
-1F平面方案
1F平面方案
2F平面方案
3F平面方案
0
0

认证 · 让您身份增值