结构与意识,向内而生
26 - 项目类型:别墅
- 项目地点:宁波市
- 建筑面积:260.0000㎡
- 项目造价:250.0000万元
- 主案设计师: 卢敏
- 竣工时间:2024年12月30日
- 设计机构:反象设计事务所
-
项目定位:本作品并非追求形式上的“空”,而是致力于打造一个能安顿身心、滋养精神的现代居所。我们摒弃浮夸的装饰,转向对空间、光影、材质的本质探索,旨在为精英客群提供一种“回归本真”的极致生活体验。
-
空间意境:脱离单一的表层构建,将原木和润白作为基础框架,逐步深入空间内质,与自然形成有机的生长脉络,简约且纯粹。
-
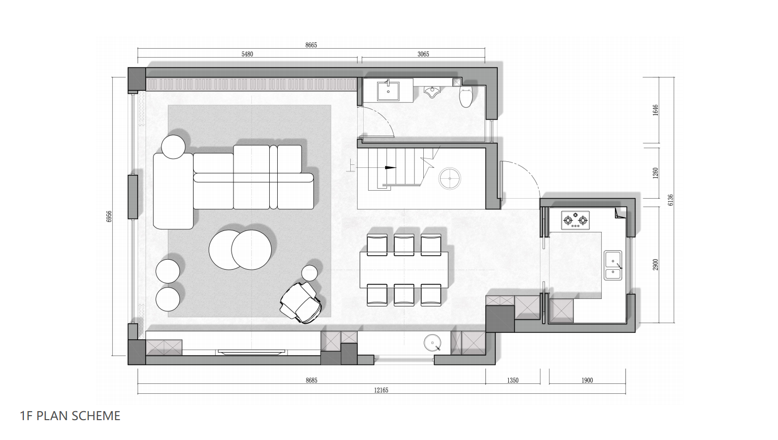
空间布局:本案为地下一层地面三层叠墅结构,协调有序舒适的动静关系,拆除一层的房间并入客厅,充分释放公共区的面积与采光。岛屿式沙发基于更高的自由度,打破传统单一的电视机动线,业主可以面朝书架或窗景安静阅读,也可与家人好友聚会,切换更多样的生活场景。空间以更包容的姿态规划动线,通过材质与结构有机结合,从客厅自然延伸至餐厅,衍生开阔灵动的尺度感,构造场域之间的连贯性。客厅和餐厅通过地板材质进行分区,互相串联且游离,完成区域之间的秩序调度。多功能书房兼容办公、卧室、活动区等多种形态,书桌一端嵌入墙体轨道,可以自由移动。
-
设计选材:创新点: “新旧搭配”——传统温润的橡木与工业感的涂料、金属碰撞;“一材多用”——岩板从台面延伸到墙面,实现一体化设计。
经济性: 善用国产优质替代品(岩板、涂料);采用标准化部件+定制化饰面(橱柜、衣柜);选择预制件减少现场成本。
此方案确保每一分投入都物超所值,在简约现代的风格下,蕴含对材料本质的深刻思考与创新应用。 -
用户体验:心灵疗愈场: 最大的体验是 “减压” 。回到家,空旷、整洁、有序的空间能瞬间让人从外界的喧嚣中抽离,获得内心的平静和深度放松。
感官升华: 注意力从杂物转向空间本身。用户能更细腻地感受材质的肌理、光影的变化,享受一种纯粹、高级的审美体验。
高效与自由: 强大的隐藏式收纳让物品一目了然,智能控制一键搞定环境。开放布局带来无拘无束的行动自由,生活效率极高。
自然与光,从不喧哗 以静态的形式隐喻流动、变化 摒弃浮华表象,洞察本质内里 去期盼一场简单却永恒的精神所属 思索经得住时间考验的生活命题
拆除一层的房间并入客厅,充分释放公共区的面积与采光。岛屿式沙发基于更高的自由度,打破传统单一的电视机动线,业主可以面朝书架或窗景安静阅读,也可与家人好友聚会,切换更多样的生活场景。
木饰面互相拼接组合,将现代感的块面关系融入其中,形成逻辑一致的设计语言。细节中穿插体块的叠级,在秩序中错落,寥寥几笔打造出空间的立体层次。搭建充足的生活收纳,内隐日常痕迹,保障了公共区简洁统一。
空间以更包容的姿态规划动线,通过材质与结构有机结合,从客厅自然延伸至餐厅,衍生开阔灵动的尺度感,构造场域之间的连贯性。客厅和餐厅通过地板材质进行分区,互相串联且游离,完成区域之间的秩序调度。
餐厅与厨房互为递进,同客厅形成交流之势,共享场域之间的自由联动。精细测量窗台高度,为餐边柜定制水吧台,延伸简单的料理操作,将生活的关照渗透到每一个细节。
楼梯由两层石材阶梯进行抬高,制造明确的层级与动线指引。超白玻扶手与体块结构互为一体,制造悬浮的上下关系,给予穿透和呼吸感。随着结构层层攀升,平顺过渡界面之间的联系,切换不同视角,感受多重游走的趣味。
多功能书房兼容办公、卧室、活动区等多种形态,书桌一端嵌入墙体轨道,可以自由移动。书桌内移时,挪出充足的空间将上翻床落下作为客房,同时不影响办公的使用,灵活功能与个性化需求在此充分融合。
主卧套房聚焦睡眠的核心需求,描摹低纯度的空间骨架。采用悬浮床,床头两侧的开关系统与壁灯组合成一体化框架,与原木硬包互相嵌合,形成舒适整洁的包裹感,创造“庇护所”的精神属性。
设计在营造亲密感的同时,依旧调度着形式与功能的序然。根据业主的生活需求重塑动线,衣帽间和卫生间秩序排布,合理利用片寸空间,布局次净衣区等更高效的收纳体系,同时设置双人台盆,打造流畅的生活节奏。
次卧以留白让渡更多余地,通透空间的呼吸感。润白与原木组合,牵引出缕缕温暖之意,细节中优化生活收纳,打造统一流畅的切面,妥帖关照居住品味。
0
0

认证 · 让您身份增值