海南万宁中海神州半岛海岚院
33
作品说明
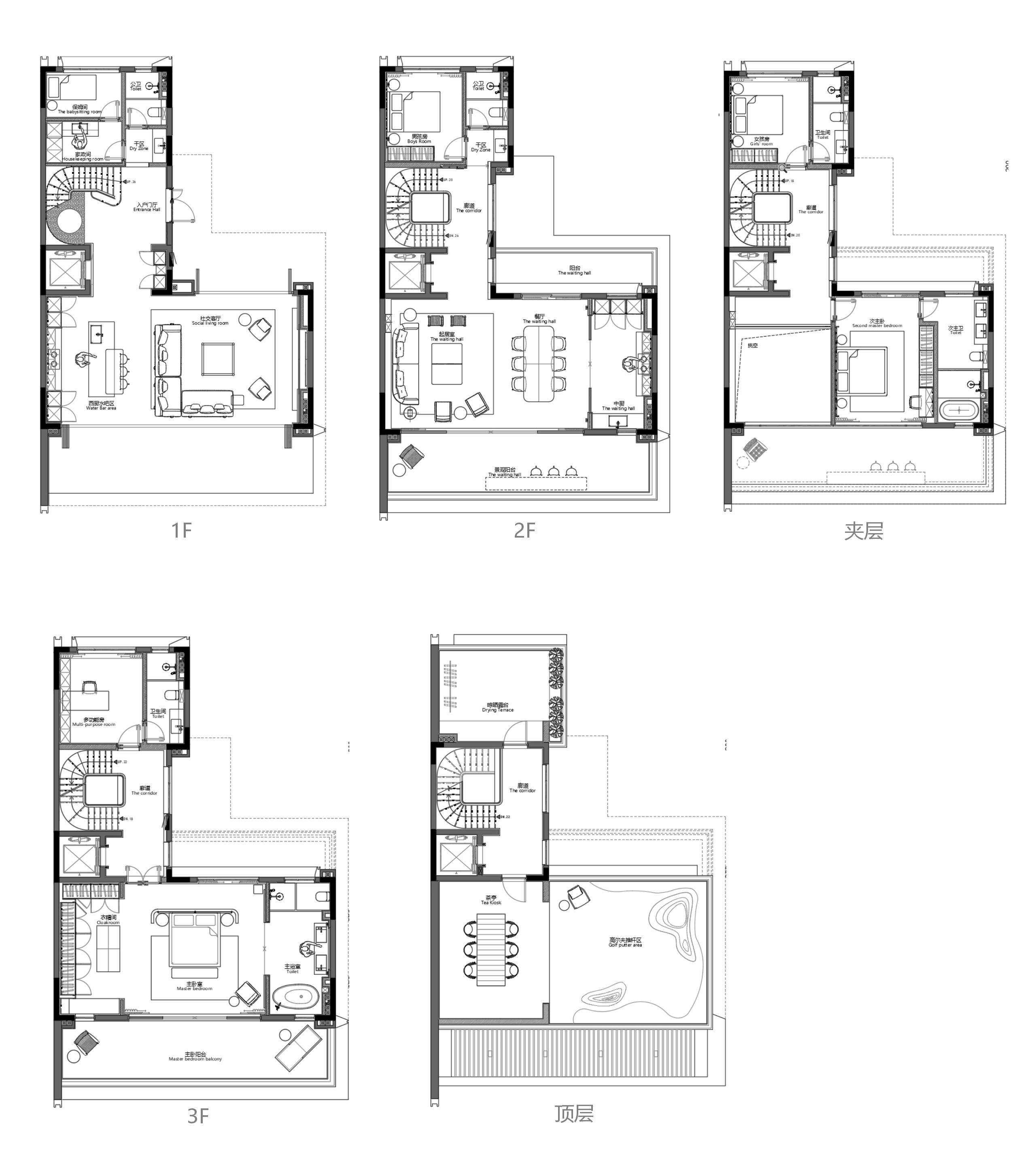
- 项目类型:私宅
- 项目地点:万宁市
- 建筑面积:590.0000㎡
- 项目造价:300.0000万元
- 竣工时间:2025年5月
-
项目定位:万宁神州半岛,内外双海环抱,萃集自然之美,宛如一座生态宜居的绿岛。海岚院,择址天赋岛芯,坐拥整岛纯粹自然资源,于山海之间,尽享静谧诗意湾区胜境。设计以“慢生活度假”为灵感,将滨海的灵动与自然融入室内外空间,山海是窗外的风景,静谧是生活的底色,为居者带来惬意从容的度假体验。
-
空间意境:室内无界延伸到户外休闲场域,碧海蓝天交织成画,原木天花的深浅层次,为场景注入更丰富的韵律感,温润色泽被巧妙融入其中,营造出自然休闲风情的度假奢享之境。一旁的水吧空间,是从休闲节奏中生长而出的诗意角落。在这里,慢品一杯咖啡,轻酌一杯美酒,时光仿佛都变得柔软而悠长。
-
空间布局:客餐厅深度契合开放式场域需求,烟火气与格调的交融,以和谐优雅之姿,承载多重生活场景尽情享受闲适与惬意。无界延伸的阳台,将云卷云舒、日升月落的诗意画意引入室内,自然是一种流动的状态,与绿意盎然共处,唯有轻盈的感受。
-
设计选材:空间的存在,是艺术的延伸;沙发的色彩与材质搭配独具匠心,仿佛是为舒适而生,为宁静而设;构建出一隅放松身心的会客厅,会友宴饮或是闲坐,与美好时光共语。木的暖意柔化了黑的锋芒,简约而不简单,温润的木色带着年轮低语的朴拙,像一片尚未被打磨完的原野,而那抹克制而纯粹的黑色,低调地诉说着生活哲学——真正的格调,从不需要喧嚣。
-
用户体验:山海为伴,绿意环绕,每一步都像是在时光中漫步,引领着人们拉开理想生活的帷幕,每一次归家都充满着期待。置身于此,忘却都市的喧嚣与纷扰,真切感受到松弛与舒适。把时间拉长,把心安放,让生活慢下来,放慢休憩节奏在静谧的时光里,与万物温柔相处聆听内心的呼吸,栖居成诗。无界的空间延伸生活的宽度,作为心灵的栖息地,藏着度假的松弛哲学。在这里,生活不是目的地,而是沿途的风景。山海为幕,自然为邻,慢享时光,让栖居回归本质,让度假成为生活的常态。
0
0

认证 · 让您身份增值