杭州·胤璞
28
作品说明
- 项目类型:公共
- 项目地点:杭州市
- 建筑面积:2236.0000㎡
- 项目造价:2236.0000万元
- 竣工时间:2024年
-
项目定位:杭州·胤璞傲立于钱塘江畔的奥体板块之心,根植江南沃土,以奥体之名,屹立世界舞台。集萃自然精华,凝聚艺术之光,将历史沉淀化为诗意空间,尽显城市悠然个性与卓越享受,恰似一颗璀璨明珠镶嵌于杭州的肌理之中,绽放着本真而原始的自然之美,引领并塑造着现代生活的新潮流。
-
空间意境:设计集对美好生活的思考,不止于具象的表达,转而将东方自然哲学融入场景之中,将古老智慧与现代生活完美融合,为居者带去超越时代的高品质生活体验,打造未来城市精致生活的典范。尊贵的品质门楣,层层递进,每一道门扉的开启,山水清秀、绿意盎然,静谧之气萦绕每一步归家的仪式之中,每一次归途都成为心灵的洗礼与升华。江南人文的诗意在艺术灵感的镜像下,绽放出自由不羁的丰富可能。设计打破传统体块结构的沉重束缚,转而借由光影艺术的氤氲升温,赋予空间以轻盈与灵动,勾勒出一座超越现实边界的艺术殿堂。
-
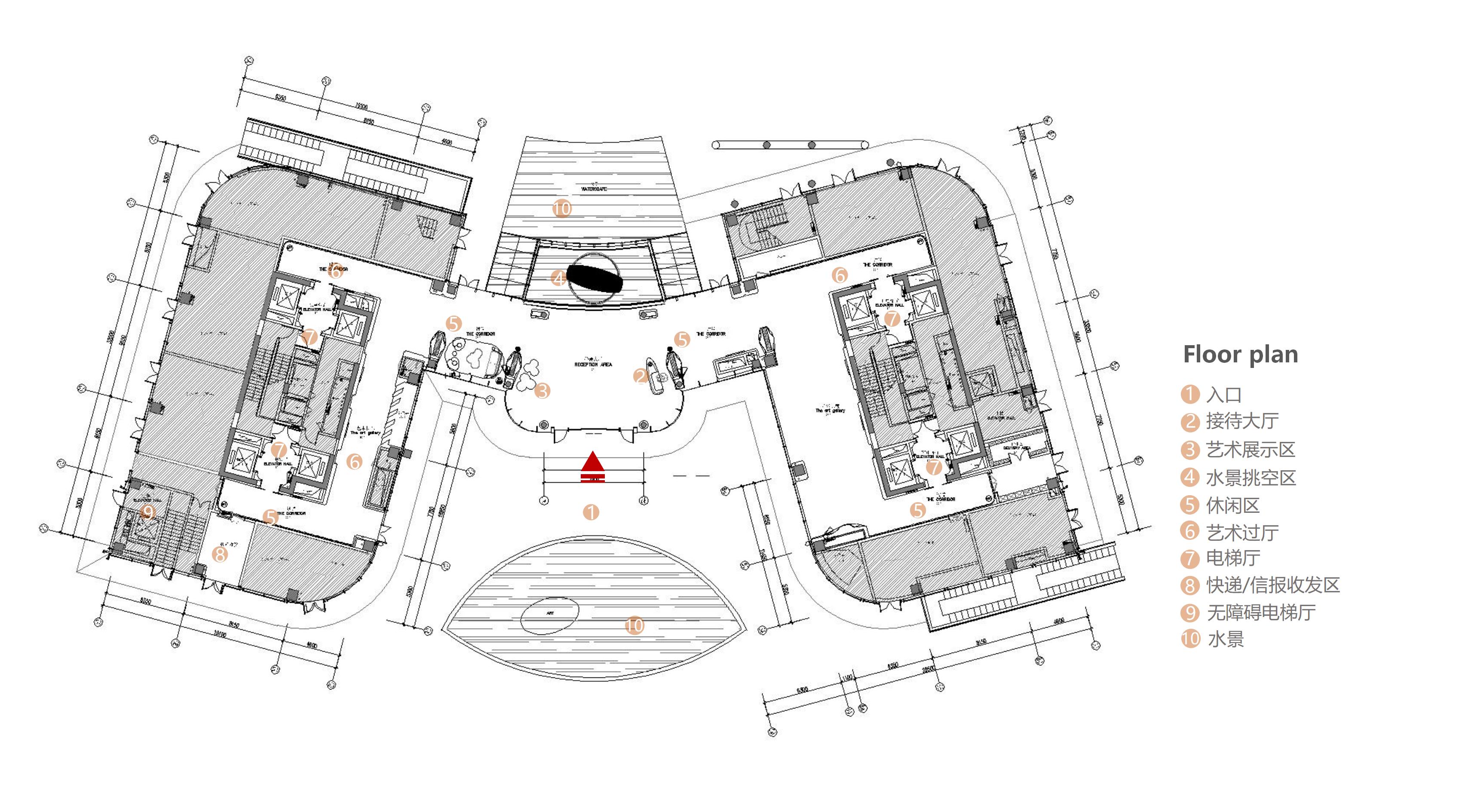
空间布局:大面积留白构建东方诗意,超尺度落地玻璃将室外自然景观与室内空间无缝衔接,营造浑然天成的和谐之美,绘就四季更迭、日月轮转的绝美画卷。光影在自然的空间错落有致,交织出无限生动与灵气,细腻地勾勒出静谧而奢华的人文魅力,丰富着空间的层次与深度,在不经意间流露出对生活品质的极致追求。
-
设计选材:柱体立面以淡雅洞石铺陈,家具则巧妙汲取自然界的延伸色调,宛如山水云游间自由流淌的韵律,引领着人的心灵步入一个静谧而深远的世界。内外光线自然穿透,注入了空间变化的戏剧性,展现出一种难以言喻的闲雅趣致,更让细微的肌理艺术在光影变奏下愈显灵动。
-
用户体验:墙体山体矗立巍然,以一种缓慢而优雅的姿态缓缓流动着,在灯光的照耀下尤显神秘莫测。时而汇聚成峰,凝结成大自然最古老而又最现代的雕塑作品,编织出一幅超越现实的壮丽画卷。每一处细节,皆镌刻美好——座椅精选皮质与大理石,在自然中衬托着奢华,让优雅气息弥漫于空间的每一个角落,无论是休憩交谈还是静思独处,由内而外散发着惬意感知。
0
0

认证 · 让您身份增值