杭州滨江·咏舟府
45
作品说明
- 项目类型:样板间/售楼处
- 项目地点:杭州市
- 建筑面积:3162.0000㎡
- 项目造价:1740.0000万元
- 竣工时间:2025年9月
-
项目定位:在杭州云城这片蓬勃发展的热土上,「杭州滨江·咏舟府」以不凡气度立序城市核芯,雄踞余杭仓前天街商圈要地。作为滨江集团深耕云城的第五座里程碑,以雅致之境,凝筑精英层峰圈域,演绎“出则万象繁华,入则一境宁静”的当代隐逸范本。
-
空间意境:云的无形之美,被转译为具象的设计语言:大理石背景墙纹理如云瀑垂落,赋予空间磅礴气韵;波浪形几何矩阵延伸向上,似云影叠浪,勾勒出光影交织的灵动节奏。设计取意流云之态,大堂8米通高的震撼尺度,曲直之间似云层自然汇合,于光影间朦胧消隐,勾勒出回响不绝的空间韵律。空间以青黛为重色,一抹朱红花艺跃然绽放,于低调中愈见奢华。地面铺陈黑白相间的几何韵律,在规整序列中暗藏流动的诗意,融汇于归家那一刻的仪式与尊荣。
-
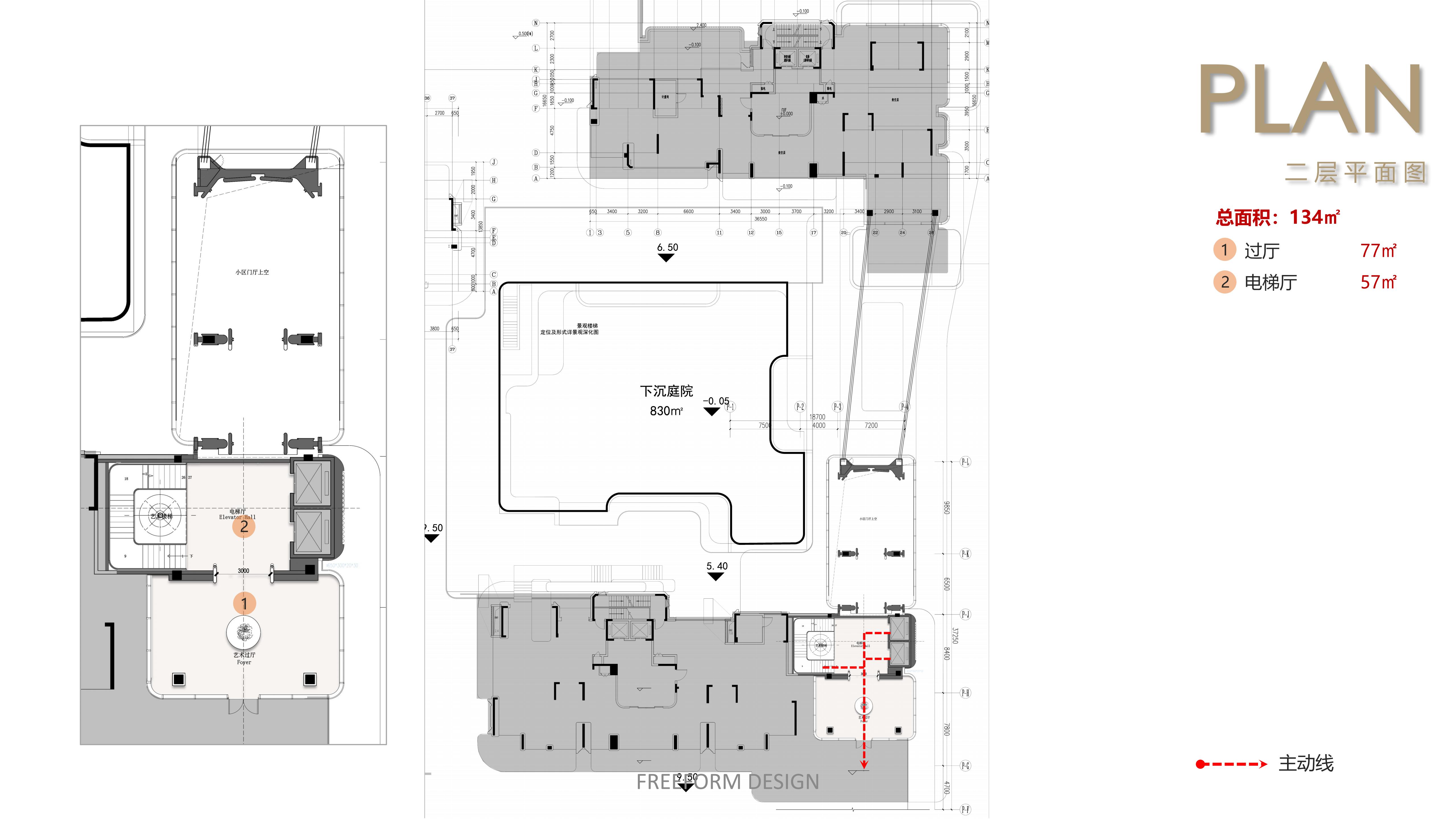
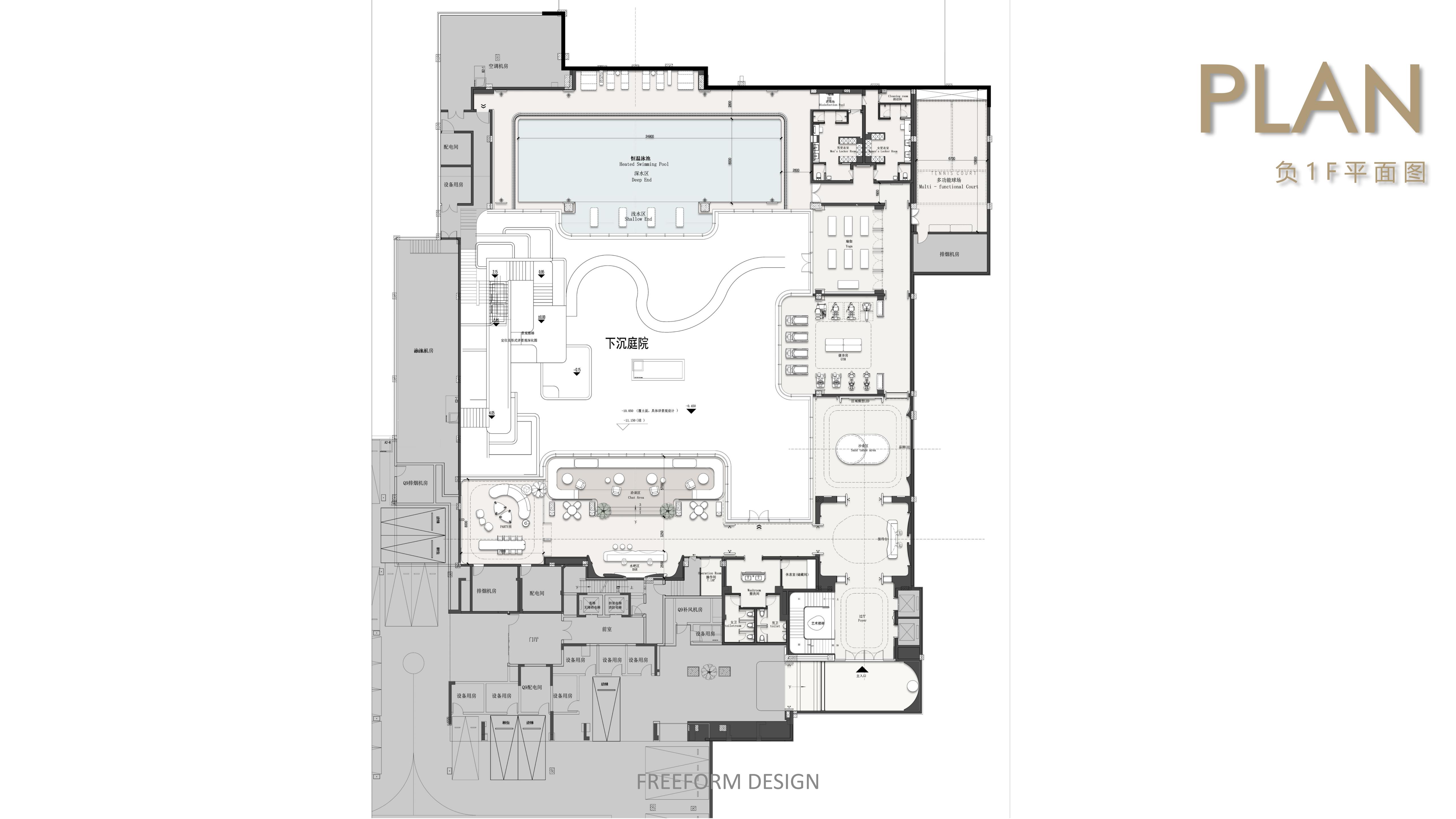
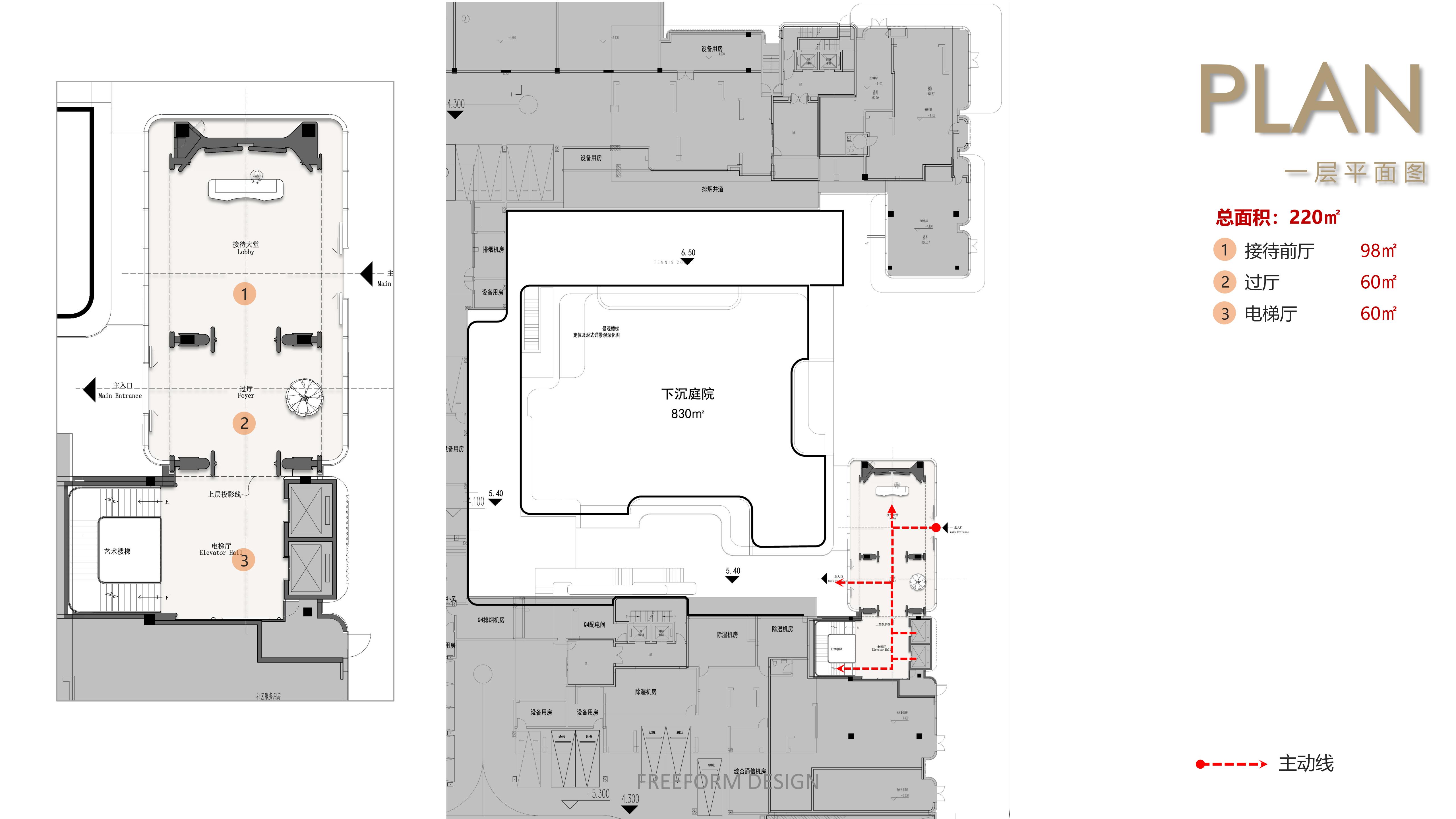
空间布局:浮梦CLUB近2000㎡下沉式会所,拥有恒温泳池、健身房、瑜伽室等运动空间,设计着眼于与社区泛会所的联动,这里不仅是锻炼身体的场所,更是回归自我的生活主场。拱廊如一道时光长廊,贯穿静、坐、行三重节奏,全龄共享的“邻里书吧”在此展开,让阅读成为遇见彼此的温暖场景。空间勾勒出丰富的视觉层次,行走此间,宛若步入一场光影与形态的协奏曲。
-
设计选材:步入水吧区,仿佛将西湖的秋意尽数收纳,设计以杭州在地文化为灵感,借银杏为题,绘写一室诗意。在金属的漫射下,青玉石吧台自见雅意。光影在此静谧流淌,洽谈区尽显自然坐憩之美,湖光山色,心随境转,诗意而舒展。整韵律的几何矩阵,材质的温润与光影的轻盈不期而遇,空间达成和谐的平衡,引领人们步入心绪沉淀的静谧之境。
-
用户体验:繁华在岸,云境在心,「杭州滨江·咏舟府」将江南文脉的静谧诗意与数字时代的澎湃活力相融共生,为层峰人物筑就身心可栖的宁静归所,让每次出发与回归,皆成一场从容的隐逸艺术。至此,云境已成,静候归心。
0
0

认证 · 让您身份增值