秋日暖阳
2
作品说明
- 项目类型:住宅公寓
- 项目地点:泰州市
- 建筑面积:130.0000㎡
- 项目造价:26.0000万元
- 主案设计师: 陈晶晶
- 参与设计师:韩旭
- 竣工时间:2025年9月
- 设计机构:镜空间设计装饰工程有限公司
-
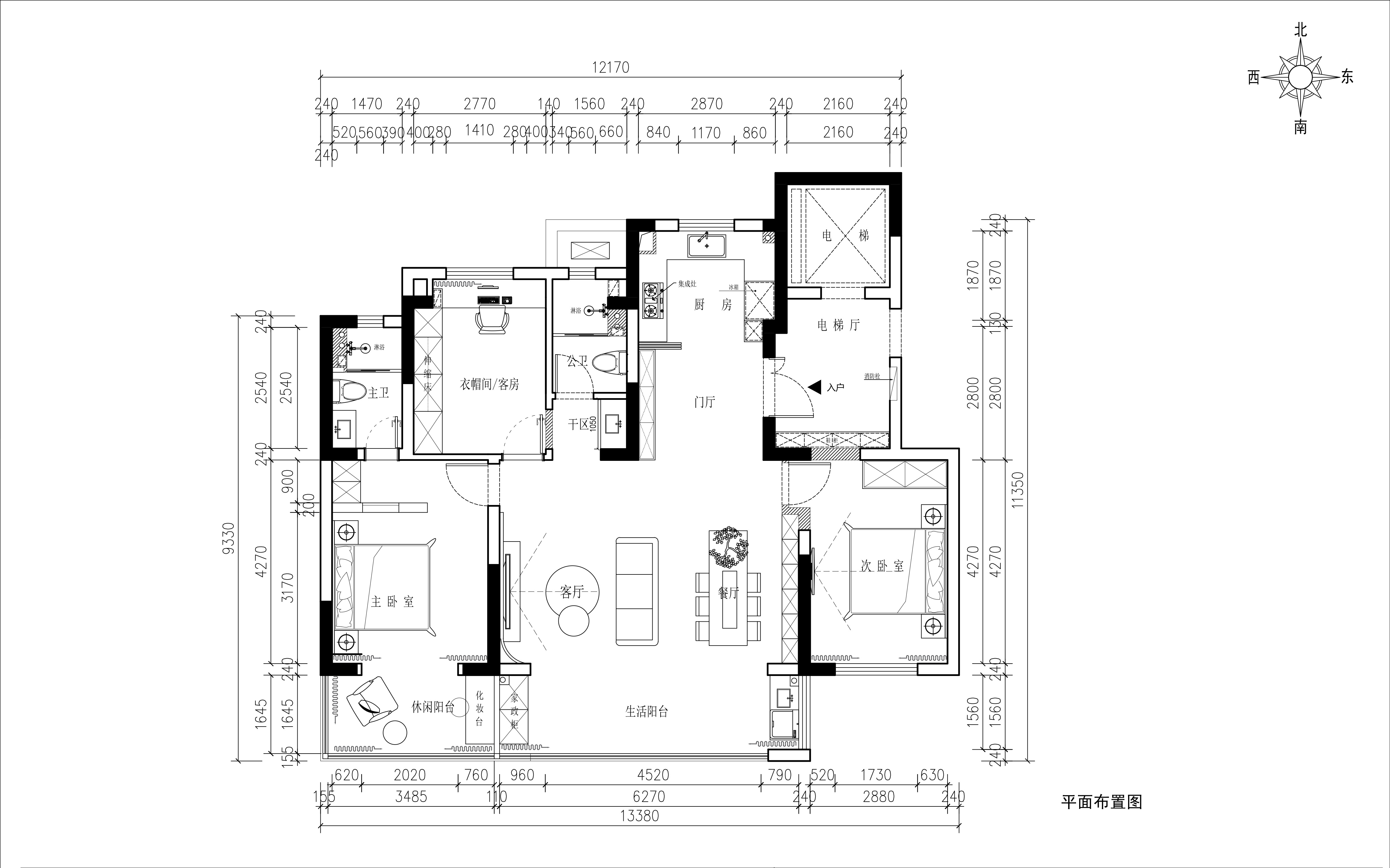
项目定位:虽是商品房,因为业主的品味比较高,空间改造要让空间感更强,更有大宅的感觉
-
空间意境:女主是个摩登女郎,时尚潮流的现代风更适合她,所有用的材料不仅要实用还要有颜值。
-
空间布局:巧改入户门方向,让房间更整体,客厅和餐厅处于统一空间,客厅延伸到阳台,让空间更有延伸感。
-
设计选材:造型不复杂,但用材品质较高,TATA木门,极窄边框移门,虽然线条简单,但是极度有质感,虽然价格小贵,但是体验感满分,地面地砖,墙面艺术漆,顶面乳胶漆都是比较环保的装修材料。
-
用户体验:客户说每当自己累了,就想回家坐在沙发上,看看外面的风景,很惬意。
0
0

认证 · 让您身份增值