光阴流连
7
作品说明
- 项目类型:别墅
- 项目地点:泰州市
- 建筑面积:300.0000㎡
- 项目造价:120.0000万元
- 主案设计师: 陈晶晶
- 竣工时间:2025年8月
-
项目定位:此房为乡村自建房,业主是个非常孝顺的企业主,为了让常住乡下的妈妈,住的更舒适,生活更便利,我们摈除原先空间的拥挤杂乱,让空间更具延伸感,
-
空间意境:原本杂乱无章的家,在统一规划后,选择现代风格,以现在装饰材料表现出现代感十足的空间氛围。
-
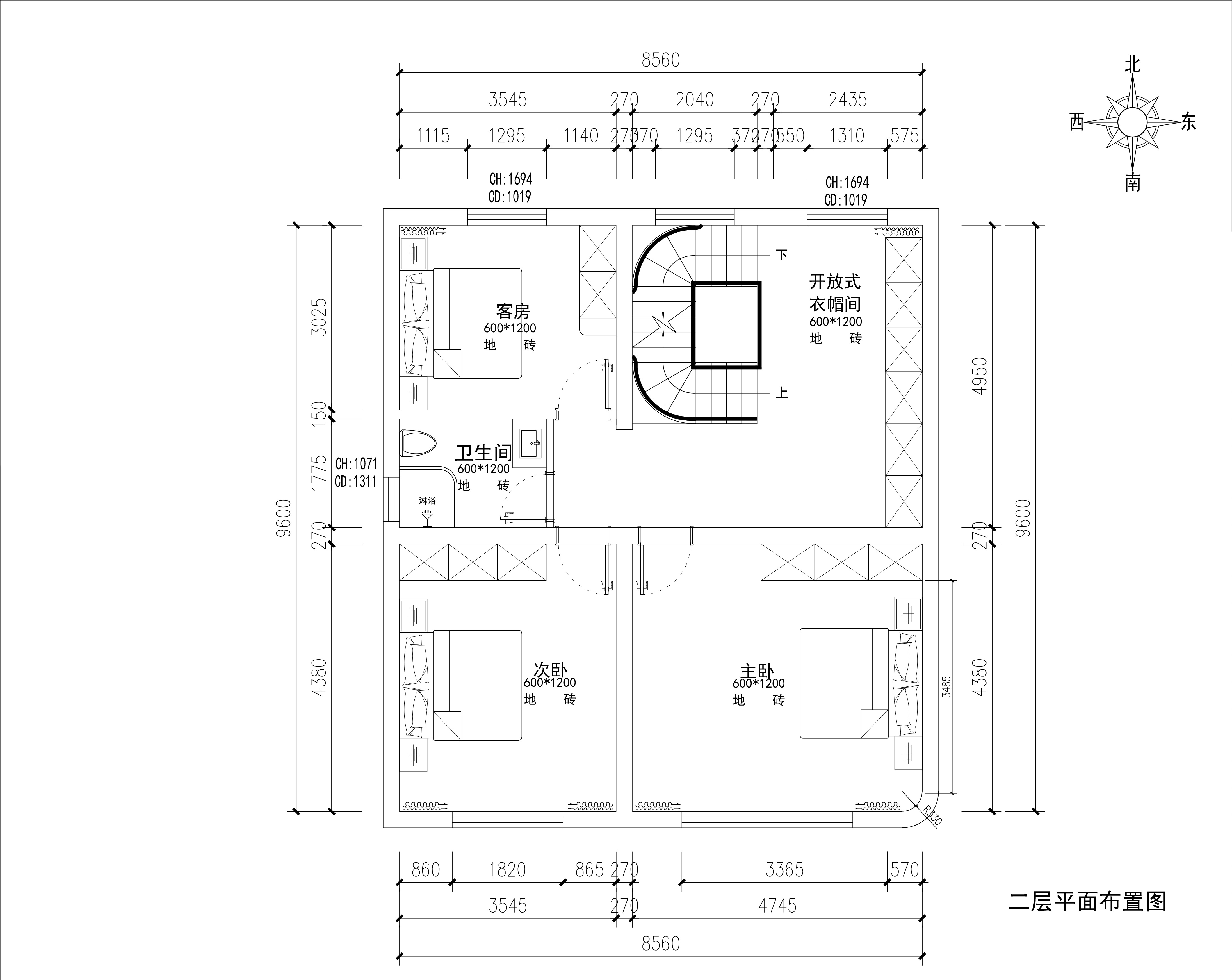
空间布局:砸掉传统的来回楼梯,直接做成从上到下的旋转楼梯,顿时成为整个空间的焦点
-
设计选材:空间中多采用石膏板、岩板、石材等环保材料,墙面由防撞碳晶板代替木饰面造型,更环保,更经济。
-
用户体验:住在里面感觉视野开阔了,天气好的时候,阳光入室,采光充足,每日午后,沐浴阳光,心情美美哒。
0
0

认证 · 让您身份增值