镜面空间:体能盒子
0 - 项目类型:休闲娱乐
- 项目地点:北京市
- 建筑面积:166.0000㎡
- 项目造价:35.0000万元
- 主案设计师: 赵洋
- 参与设计师:马思彤、任辉、刘钊
- 竣工时间:2023年7月
- 设计机构:鳞见设计工作室
-
项目定位:该项目是位于北京市朝阳区一处公园旁的临界店铺改造,周边还有一块空地可以改造成小型户外泵道,我们希望把室内的功能和户外的泵道结合起来,做一个有点意思的体验空间。
This project is a renovation of a critical store located next to a park in Chaoyang District, Beijing. There is also an open space around it that can be converted into a small outdoor pump track. We hope to combine indoor functions with outdoor pump paths to create a interesting experience space.
-
空间意境:从功能上说,户外泵道是个更偏专业性的运动空间,这里可以进行陆冲、滑板、自行车运动,室内空间是更偏向于基础训练,适合从零学起的爱好者,同时提供咖啡和简餐,也是一个休闲小店,综合起来这里就是一个运动加休息的休闲空间。
From a functional perspective, the outdoor pump track is more professional sports space where you can engage in land racing, skateboarding, and cycling. The indoor space is more oriented towards basic training, suitable for beginners. It also provides coffee and snacks, and is a leisure shop. Overall, this is a leisure space for sports and rest.
-
空间布局:室内空间是由咖啡区和运动区两部分组成,原本的空间最明显的特点是各个墙面互相之间不垂直平行,顶部空间忽高忽低,很不规则,我们首先想利用下空间本身的特质,并且塑造一个简单且富有运动感的室内空间。于是除了墙面的镜面以外,我们在天花上也做了大量的镜面效果,结合原本就不规则的空间基础,形成一个丰富的反射空间,就好像奇异博士中的镜像世界。
The indoor space is composed of two parts: a coffee area and a sport area, the most obvious feature of the original space is that the walls are not perpendicular or parallel to each other, and the top space fluctuates from high to low, which is also very irregular, we first want to utilize the characteristics of the space itself and create a simple and sporty indoor space. So in addition to the mirror on the wall, we also put a lot of mirror on the ceiling, combining the already irregular spatial foundation to form a rich reflection space, just like the mirror world in Doctor Strange.
-
设计选材:水银镜、拉丝不锈钢、镜面不锈钢、涂料
-
用户体验:我们首先想利用下空间本身的特质,并且塑造一个简单且富有运动感的室内空间。于是除了墙面的镜面以外,我们在天花上也做了大量的镜面效果,结合原本就不规则的空间基础,形成一个丰富的反射空间,就好像奇异博士中的镜像世界。
▲外立面 Facade————该项目是位于北京市朝阳区一处公园旁的临界店铺改造,周边还有一块空地可以改造成小型户外泵道,我们希望把室内的功能和户外的泵道结合起来,做一个有点意思的体验空间。 This project is a renovation of a critical store located next to a park in Chaoyang District, Beijing. There is also an open space around it that can be converted into a small outdoor pump track. We hope to combine indoor functions with outdoor pump paths to create a interesting experience space.
▲室内空间 Indoor Space————从功能上说,户外泵道是个更偏专业性的运动空间,这里可以进行陆冲、滑板、自行车运动,室内空间是更偏向于基础训练,适合从零学起的爱好者,同时提供咖啡和简餐,也是一个休闲小店,综合起来这里就是一个运动加休息的休闲空间。 From a functional perspective, the outdoor pump track is more professional sports space where you can engage in land racing, skateboarding, and cycling. The indoor space is more oriented towards basic training, suitable for beginners. It also provides coffee and snacks, and is a leisure shop. Overall, this is a leisure space for sports and rest.
▲咖啡吧台 Coffee Bar————室内空间是由咖啡区和运动区两部分组成,原本的空间最明显的特点是各个墙面互相之间不垂直平行,顶部空间忽高忽低,很不规则,我们首先想利用下空间本身的特质,并且塑造一个简单且富有运动感的室内空间。于是除了墙面的镜面以外,我们在天花上也做了大量的镜面效果,结合原本就不规则的空间基础,形成一个丰富的反射空间,就好像奇异博士中的镜像世界。 The indoor space is composed of two parts: a coffee area and a sport area, the most obvious feature of the original space is that the walls are not perpendicular or parallel to each other, and the top space fluctuates from high to low, which is also very irregular, we first want to utilize the characteristics of the space itself and create a simple and sporty indoor space. So in addition to the mirror on the wall, we also put a lot of mirror on the ceiling, combining the already irregular spatial foundation to form a rich reflection space, just like the mirror world in Doctor Strange.
▲运动区 Sport Area
▲运动区 Sport Area
▲运动区 Sport Area
▲咖啡空间 Coffee Area————室内空间虽然不大,却有一面很大的落地窗,我们就把咖啡空间安排在了窗边,我们用一些不锈钢材质、反光材质跟运动区产生一个呼应,白天的光线在这也会更加明亮。 Although the indoor space is not big, there is a large french window, so we arranged the coffee space beside the window, we use some stainless steel materials and reflective materials to create a resonance with the sports area, where the daytime light will also be brighter.
▲窗口区 Window Region
▲白天运动区 Daytime Sport Area
▲夜晚运动区 Nighttime Sport Area————但到了晚上,我们希望这里能变一个气质,一个更活跃更多变的气质,于是我们把天花的一块镜面换成了一片变色灯,我们希望它在晚上能大放异彩,开灯的一瞬间,就是空间反转的开始。 But at night, we hope to have a more active and varied atmosphere here, so we replaced a mirror surface of the ceiling with a color changing light, hoping that it would be brilliant and dazzling at night. The moment we turned on the light, it was the beginning of space reversal.
▲夜晚运动区 Nighttime Sport Area
▲夜晚咖啡区 Nighttime Coffee Area
▲夜晚运动区 Nighttime Sport Area
▲夜晚外立面 Nighttime Facade
▲傍晚外立面 Eveningtime Facade————户外泵道区的位置是在公园与周边居民区和商业区的交会处,这里原本就有很多树,我们把它们都保留了下来,让泵道穿插在树与树之间,我们没做过多的装饰,这样它也更像一个亲切的社区运动场,而不是一个华丽的城市建筑的延申。在这里发生的日常故事可能大多都很平凡,比如一对父母安静的坐在树下一边喝着咖啡享受着安静的傍晚时光,一边看着自己的孩子在泵道中欢快的玩耍,饿了渴了就在这吃点喝点,累了就回家,诸如此类,朴实无华。 The outdoor pump track area is located at the intersection of the park and surrounding residential and commercial areas, there were already many trees here, and we have preserved them all, allowing pump track to run between the trees, we haven't done too much decoration, so it's more like a community sports field, rather than an extension of a magnificent urban building. The daily stories that happen here may mostly be ordinary, such as a pair of parents sitting quietly under a tree enjoying the afternoon, drinking coffee, watching their children playing happily in the pump track, eating and drinking here when they hungry or thirsty, returning home when they tired, and so on, simple and unadorned.
▲户外泵道 Outdoor Pump Track
▲户外泵道 Outdoor Pump Track
▲户外泵道 Outdoor Pump Track
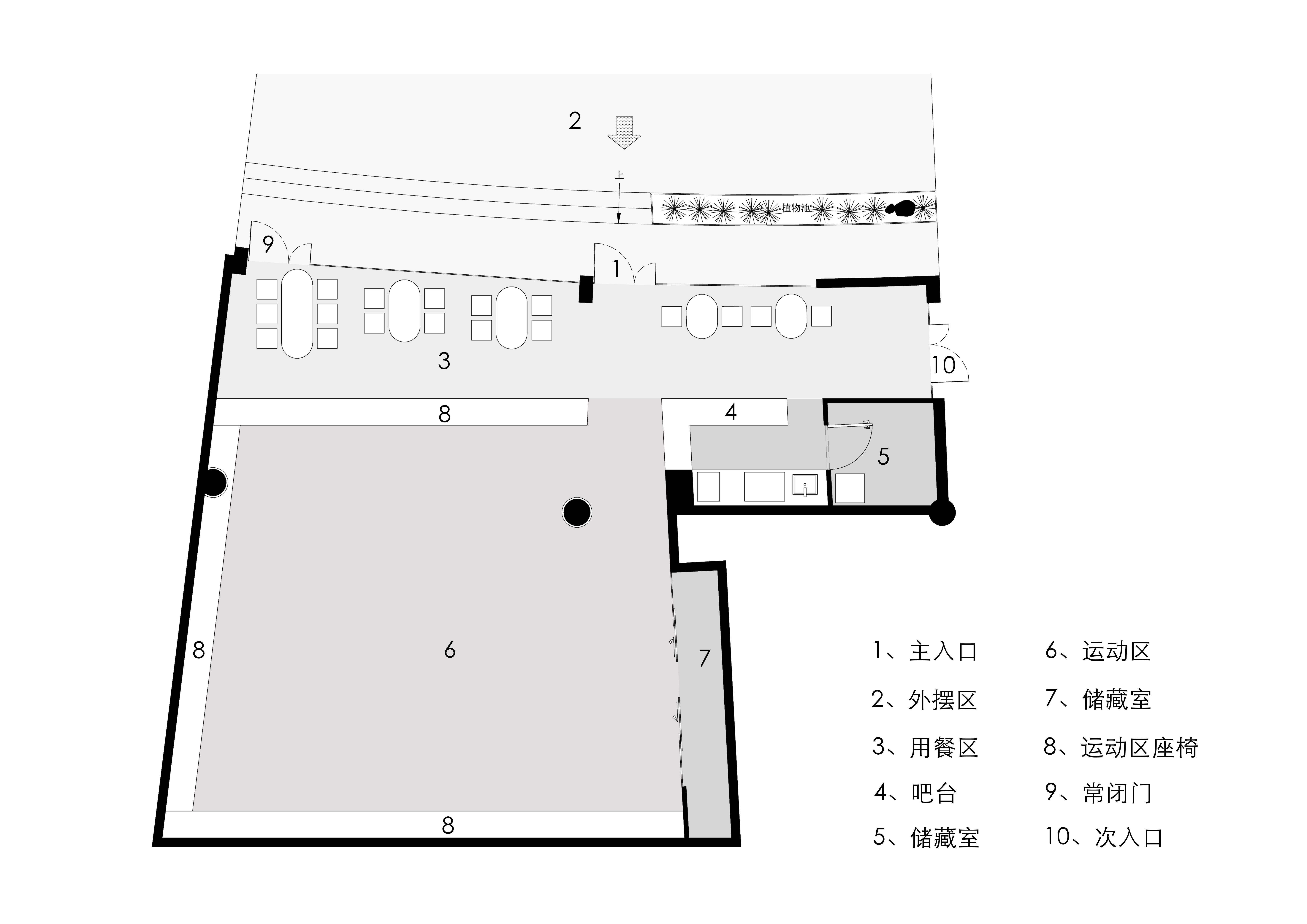
▲平面图 Plan
0
0

认证 · 让您身份增值