光影栖居


作品说明
- 项目类型:住宅公寓
- 项目地点:连云港市
- 建筑面积:230.0000㎡
- 项目造价:110.0000万元
- 参与设计师:陈芊芊
- 竣工时间:2024年8月
- 设计机构:云墅空间设计
-
项目定位:细碎的阳光穿透窗棂,悄然洒落进一方住宅。光线落于墙与地之间的阴影处,流动而不张扬。所见不再仅是冰冷的物质与单纯的实体,而是光影在空间中的微妙舞蹈,层次分明,变幻莫测。每一道光,似乎都在倾诉着时光的温柔,每一处阴影,仿佛都藏着生活的沉静与思索。将这些光与影小心翼翼地拾掇,错落的层次交织出更多的意境,在这静谧的角落里,映射出的不只是空间的轮廓,还有内心深处的自我与情感的脉络。
-
空间意境:这个现代住宅项目,定位于高端市场,是为那些追求生活艺术与空间和谐之美的鉴赏家们精心策划的。
-
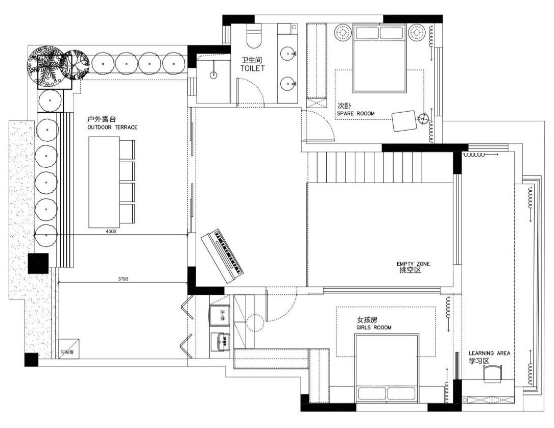
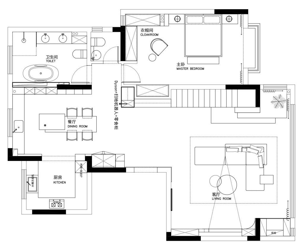
空间布局:设计以极简主义为灵魂,通过流畅的线条、纯净的色调和开放的空间,绘制出一幅宁静而优雅的居住画卷。自然光成为设计中不可或缺的元素,它穿透窗户,与空间内的每一个角落对话,营造出光影交错的诗意氛围。
-
设计选材:主材我们选择了具有砂岩质感的瓷砖以及富于肌理的蘑菇石,希望能够给业主还原具有自然特质的生活环境。而在卫生间为了平衡冰冷的感觉和单一的风格,选择了木纹岩板。色彩方面,我们设计让黑的沉静与木的温暖相交融,并以大量的留白打破色彩的厚重,使整体充满呼吸感与层次感。安装大幅的落地窗让自然光线以最大的限度倾洒进来,使空间通透明亮,同时以窗帷柔和了阳光的强烈,营造出独属于自我的静谧氛围。
-
用户体验:氛围感十足的灯光既是照明也是装饰。无主灯的设计通过多点光源创建了空间中的层次感和美感,避免了视觉上的压迫,同时使环境更显温馨与舒适。

