| 光影栖居 |


作品说明
- 项目类型:住宅公寓
- 项目地点:连云港市
- 建筑面积:230㎡
- 竣工时间:2024-08-08
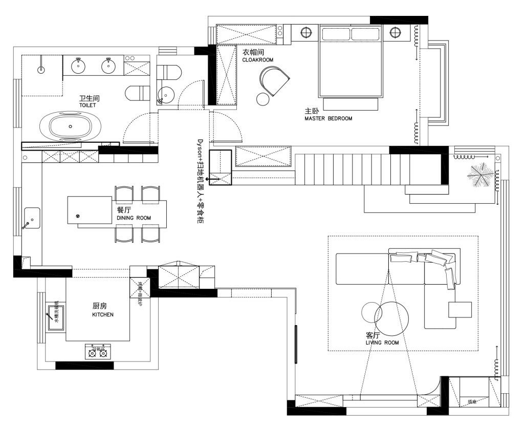
吾悦和府230㎡平面设计图(一层)
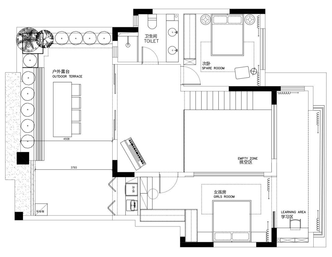
吾悦和府230㎡平面设计图(二层)
吾悦和府230㎡立面图
黑的沉静与木的温暖相交融,大量的留白打破了色彩的厚重,使空间充满呼吸感与层次感。
富于肌理的岩石与细腻的原木材质互相碰撞,展现出现代社会所需要的自然抚慰,大幅的落地窗,让自然光线以最大的限度倾洒出来吗,同时以窗帷柔和了阳光的强烈,营造出独属于自我的静谧氛围。
冷冽的白色楼梯,以堆叠的几何形式悬浮于空间之中,仿佛是一束光影的具象化。透明的玻璃隔断,在视觉上更显通透,保留了整体极简温暖的氛围。多年的阅历与漂泊,和落入房间的光影一同安顿、折叠,崭新的方寸之间,是拥有栖息之地的安心。
透明玻璃淋浴房与简约洗手台,营造出明亮通透的视觉体验,每一处细节都经过精心考量,整体既保持了空间的开阔,也不朱私密与放松的氛围。
夜色渐沉,柔和的灯光打在床头,宛如夜晚的一抹星辉。简约的家具线条与细腻的材质交相辉映,打造出一片让人沉浸其中的静谧角落。在这里,仿佛时间也逐渐慢了下来,光与影在角落交织,心灵在此找到归宿与平静。
将夜色隔绝于门外,屋内家人闲坐,灯火可亲。柔和灯光的映衬之下,风格各异的椅子围绕在简约的木质桌时,多样性与和谐共存的美感在沉默中悄然展现玻璃柜被细腻的光带所环绕,中显出极简设计的魅力与精致。灯光下觥筹交错的影子,与夜色中的阴月谁相呼应,它与室内的灯光交织,共同为这夜晚谱写了一曲悠远温婉的乐章。