永不落幕的繁花绮梦



作品说明
- 项目类型:样板间/售楼处
- 项目地点:上海市
- 建筑面积:171.0000㎡
- 项目造价:100.0000万元
- 主案设计师: 杨星滨
- 参与设计师:代启凡、常久、张原铮、孟姗姗、胡爽、李秀明、曹艺馨
- 竣工时间:2024.5
- 设计机构:一然设计
-
项目定位:上世纪的老钱风,代表着尊贵身份的象征,但经典永不落幕,如今老钱风潮卷土重来。以老钱的艺术追求,奉行低调雅奢主义,设计师打造品质精英的居家范本。
-
空间意境:色调上主要以暗色为主,辅以明亮细节点缀,选择优质的材质,感受自然的肌理,家具艺术品具备细致的精工工艺,将低调精致的内核,加上对经典和细节的追求,将时尚老钱风的韵味发挥到了极致。
-
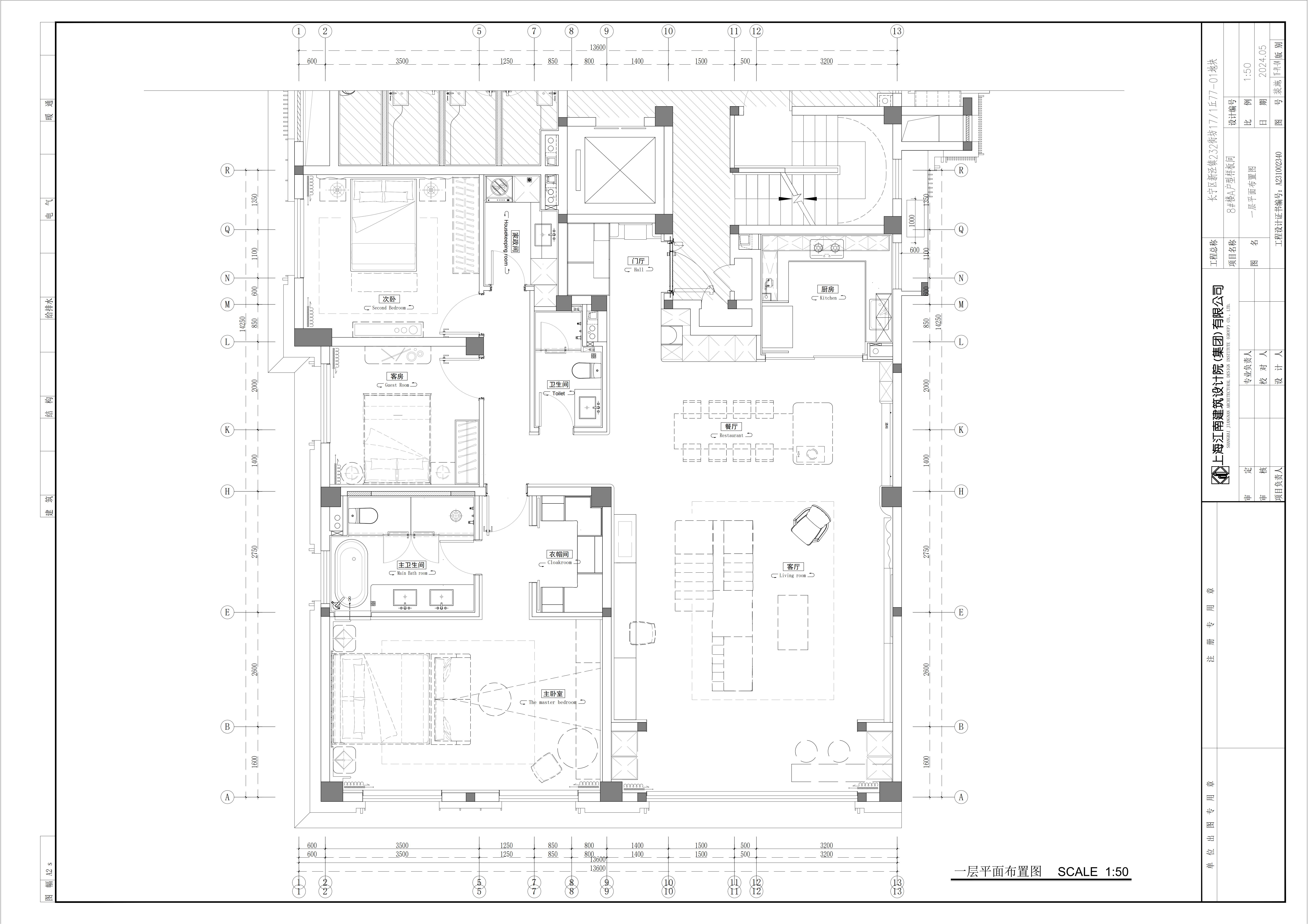
空间布局:1、LDK+1生活方式的营造
2、中西双厨,岛餐一体
3、独立家政间4、优化客厅尺度问题
5、丰富优化合理利用阳台空间
6、主卧超级套房系统营造,四分离洗手间 -
设计选材:选用木饰面,不仅美观,自然纹理和色彩给人一种温馨、舒适的感觉,能够营造出优雅、自然的氛围。而且耐用,不易出现破损、变形等问题。并且木饰面墙板有利于环保,在加工过程中,不会产生有害物质,对人体无害。维护相对简单,只需要定期用湿布擦拭,就可以保持其光泽和美观。如果表面有污渍,也可以轻松清洗。
-
用户体验:造豪宅的生活方式,从根本上提升空间调性,多元化的生活场景,满足不同家庭角色所需,带来高质量生活方式的呈现。

