诗意新赋,自然的隐奢之地
229
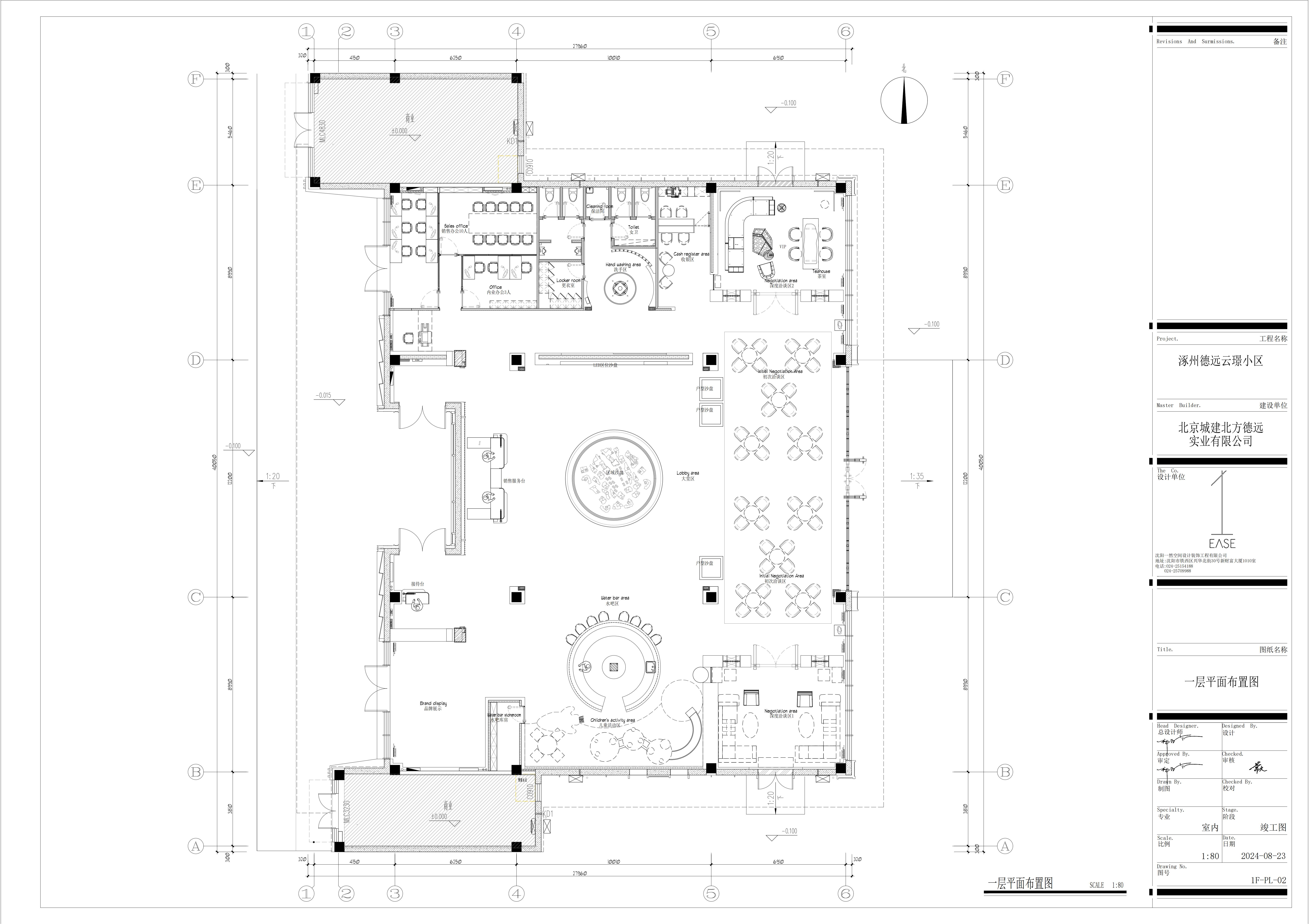
作品说明
- 项目类型:样板间/售楼处
- 项目地点:涿州市
- 建筑面积:712.0000㎡
- 项目造价:300.0000万元
- 主案设计师: 杨星滨
- 参与设计师:孙英旭、张原铮、张静妤、李秀明、曹艺馨
- 竣工时间:2023.5
- 设计机构:一然设计
-
项目定位:“我行保州塞,御河直其东。山川犹有灵,佳气何郁葱。”
七百多年前,宋末文学家文天祥以壮丽生机,人杰地灵,形容涿州之风貌,表达着向往和赞叹,这是他誓死保卫的边塞。
七百多年后的今天,这里生机犹存,诗意盎然,“宜居宜业、多元开放、浓郁人文”成为了这座城市的全新符号。
文化在左,奢华在右,设计师以涿州厚重的历史人文提纯设计理念,打造室内东意西境之氛围,将盛世隐奢融入售楼处整体艺术逻辑。 -
空间意境:天然大理石纹理打造奢华精英之感,铺陈出空间的第一感官印象。沙盘展示区折射着接待台的光影层叠,提升了整个空间的透亮氛围,在虚实对比中,营造出抑扬顿挫的立体感。结合建筑本身结构层次,将自然光引入室内,解决不同时段的采光,更与日出日落形成丰富的自然情绪。为归家大堂的再次利用提供了更多艺术人文气息关怀。设计与自然融合共生,设计师灵感源于自然界的水,水生万物,配合光的自然力量律动,构造成空间上方丰富粼粼波光,饱含着对自然的感激与敬畏,体现一种朴素的文化意味。
不拘泥于单一的销售属性,伴随着势不可挡的文化浪潮,解锁阅读社交的多元鲜活生活范式,业主在候车时寻得心灵片刻安静松弛。 -
空间布局:削弱空泛的商业气息,让进入空间的人们更感舒适,将其打造成了休闲洽谈社交功能的茶室,既能与其他空间有所区隔,又能融于都市,给人大隐隐于市的体验。儿童区与休闲区联动,定制X星球艺术装置、游乐设施、益智板等,为儿童提供了多项室内玩乐活动,家长在咫尺视线之内,隔空陪伴孩子,还能拥有自我独处、精神愉悦的放松时间。
-
设计选材:大部分材质选用大理石,因为具有很高的耐用性,防刮伤、抗腐蚀和高温,不需要频繁的维护和更换,在一定程度上减少了资源消耗和废弃物的产生。
另外大理石不容易破碎和损坏,使用过程中一旦出现损坏,可以通过再加工实现再利用,减少了资源的浪费。 -
用户体验:好的空间,不应只是直白简单的物理空间。艺术是使人心灵放松的解药,好的设计应该集人文、历史、艺术、经济等于一体,打造观、行、居、游的社交平台和共享空间,为未来人居丰富生活场景探索更多新的可能。设计师杨星滨先生说。
0
0

认证 · 让您身份增值