航天天昱285精装修样板间



作品说明
- 项目类型:样板间/售楼处
- 项目地点:西安市
- 建筑面积:285.0000㎡
- 项目造价:2280000.0000万元
- 参与设计师:肖勇
- 竣工时间:2024年10月
- 设计机构:西安几何加装饰设计有限公司
-
项目定位:创塔尖圈层,超品质豪宅,以区域发展、周边配套资源为优势,打造高端品质型豪宅,树立区域标杆形象;
-
空间意境:作品在环境设计中融入了动态互动元素,使空间成为一个能够与观众进行互动的“活”的艺术品。通过传感器、触摸屏等技术手段,观众可以参与到空间环境的创造和改变中,实现人与环境的互动与对话。这种设计不仅增强了空间的趣味性和互动性,也体现了以人为本的设计理念。
-
空间布局:动态空间变换是该作品在空间布局上的另一大创新点。通过智能技术的运用,如可变隔断、动态照明等,实现空间形态与功能的灵活转换。这种设计
不仅满足了不同使用场景的需求,更赋予了空间以生命,使其能够随着时间、光线以及使用者需求的变化而不断变化,创造出无限可能。 -
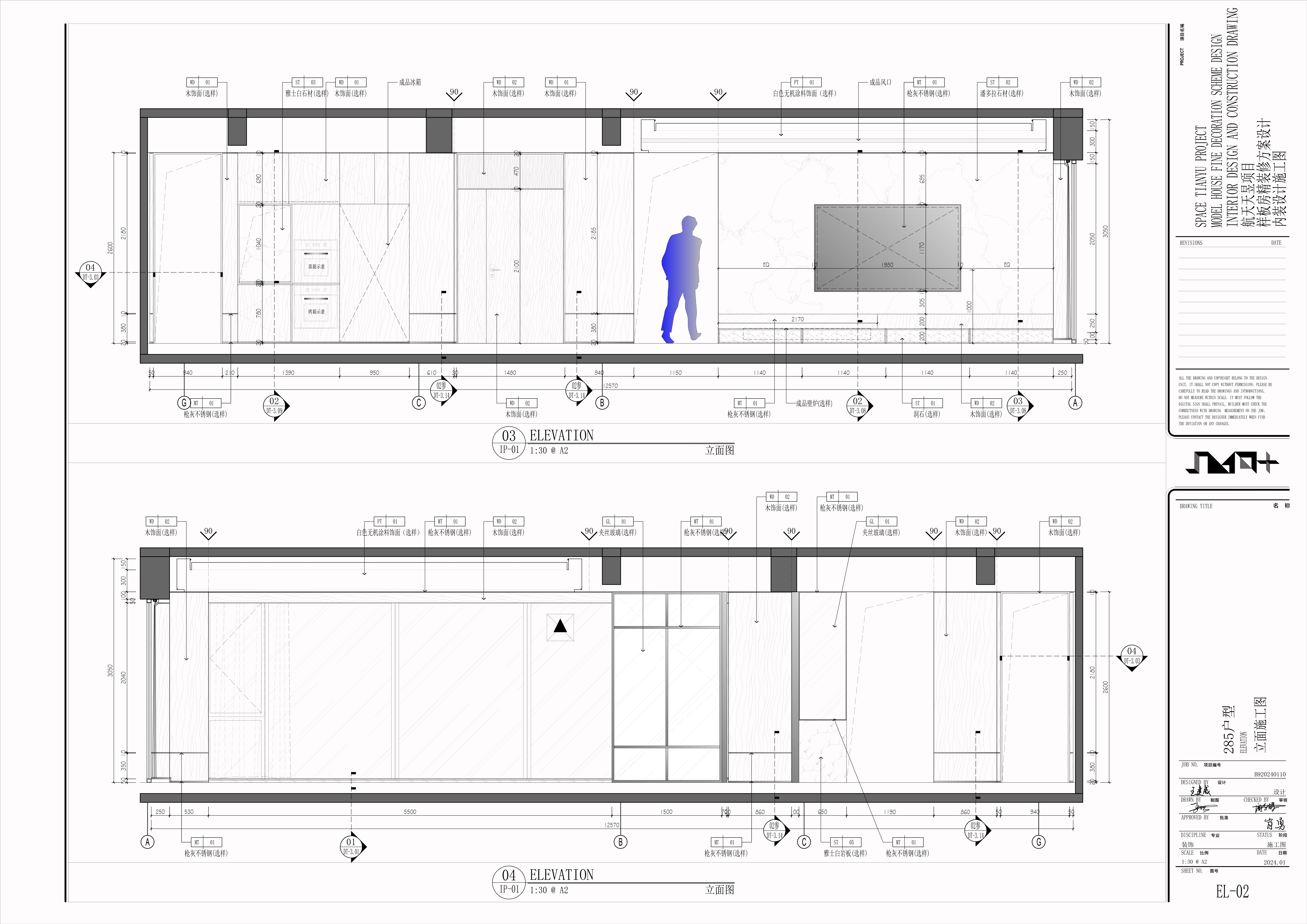
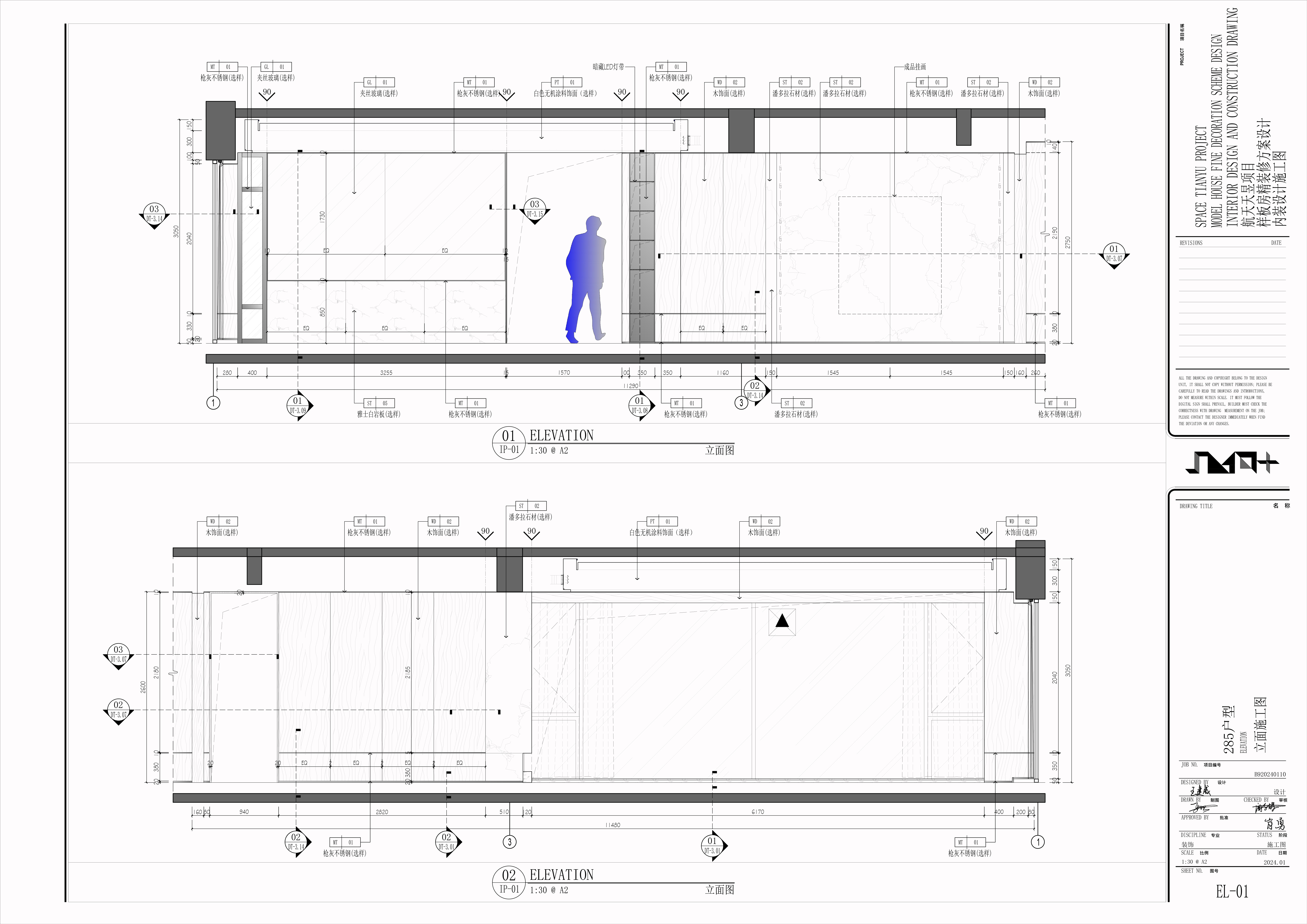
设计选材:再生混凝土,植物基材料硬包,低辐射LOW-E GLASS
-
用户体验:装修风格满意度该样板间采用了现代简约风格,色调搭配和谐,既保留了空间的开活感,又不失温馨舒适的氙围。业主普谝对装修风格表示满意,认为其既符合当下审美趋势,又能满足不同年龄层的居住需求。特别是客厅区域的软装搭配,既彰显了品味,又不失实用性,得到了广泛好评。
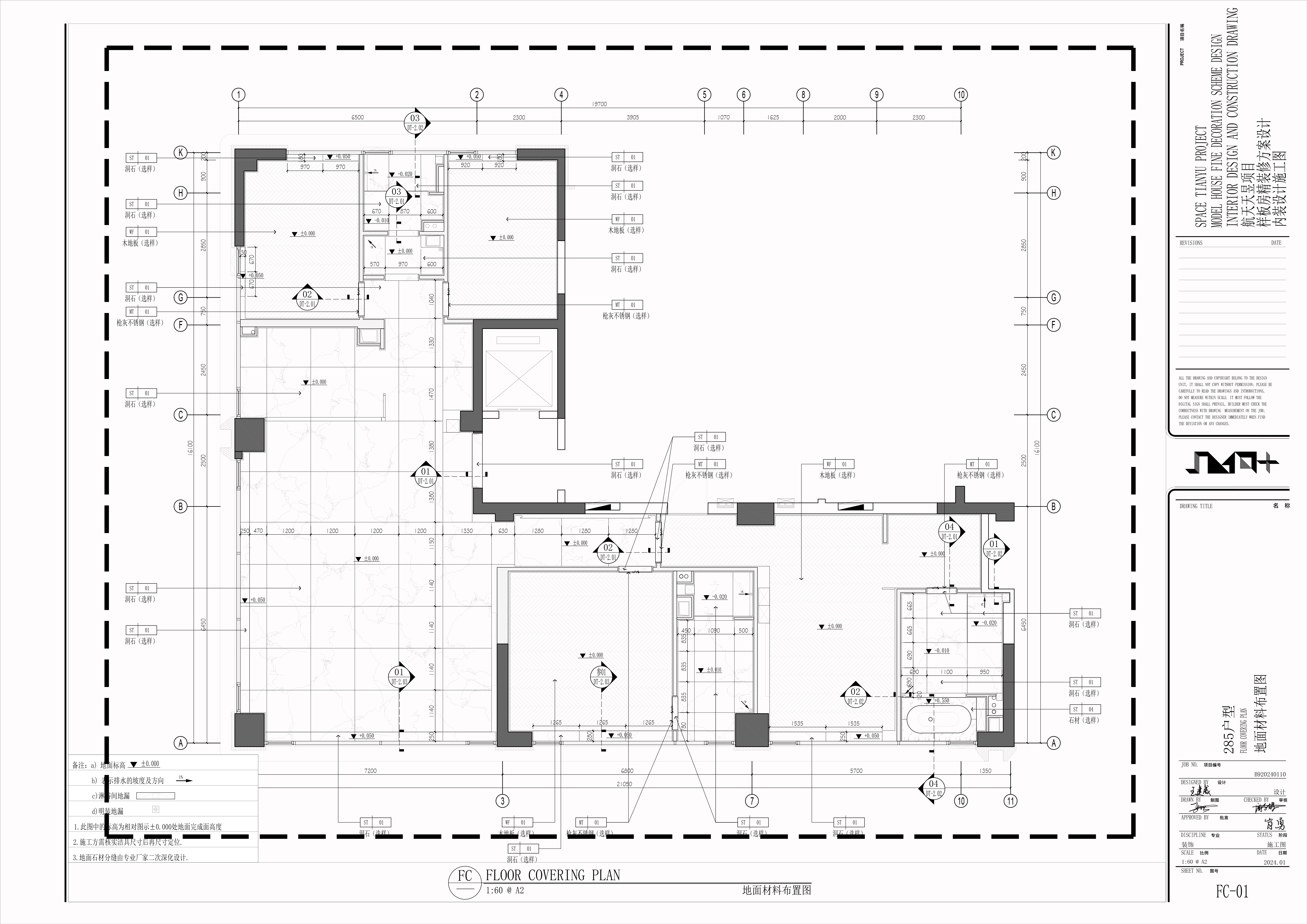
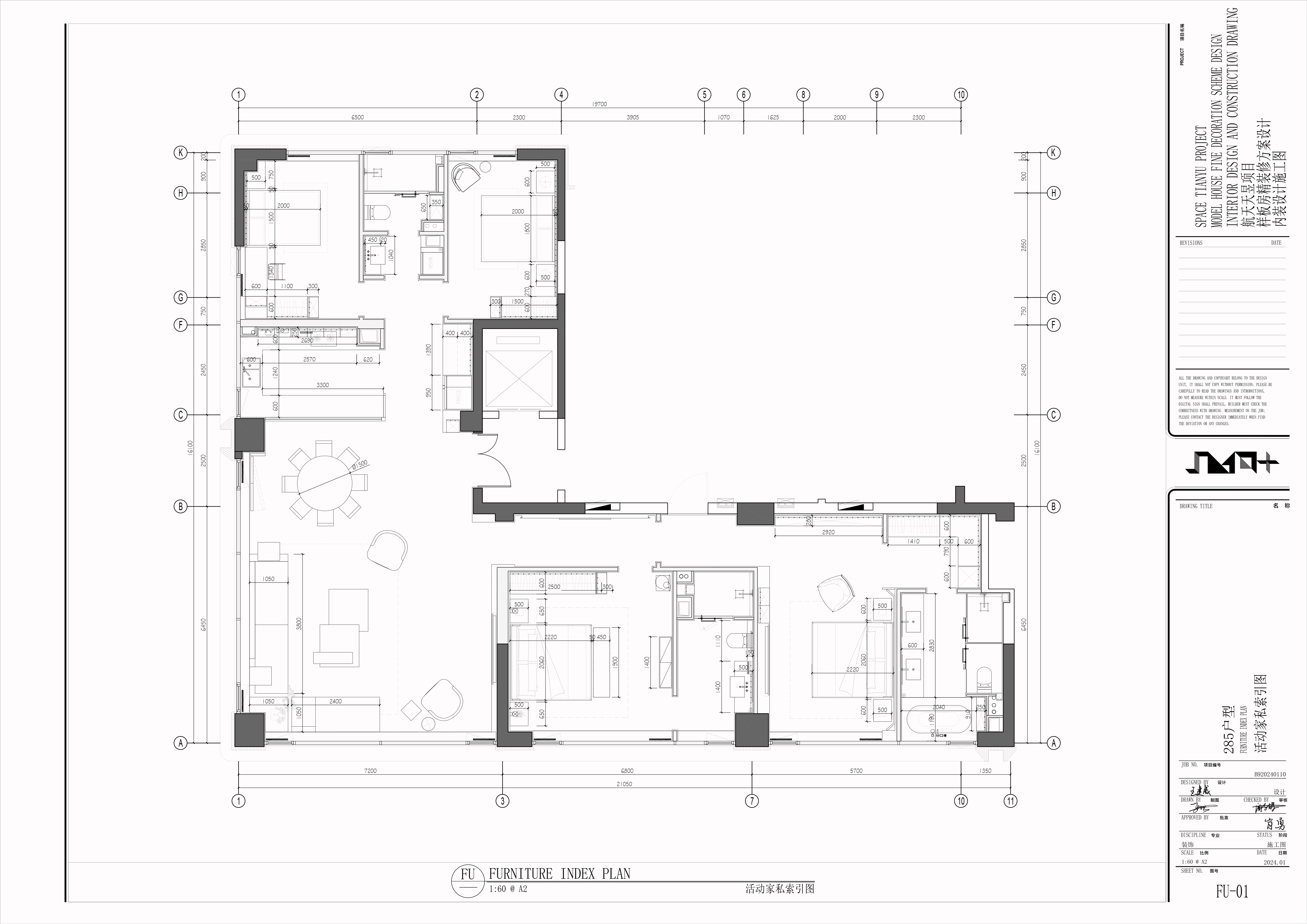
2.空间布局合理性样板间的空间布局充分考虑了居住者的生活习惯和功能性需求。公共区域与私密空间划分清晰,动线流畅,避免了空间浪费。卧室、客厅、厨房、卫生间等各个区域均得到了合理的分配,确保了居住的便利性和舒适度。业主们特别赞赏了餐厅与客厅的连通设计,既增强了互动性,又保持了空间的通透感。

