金湾上河琚·143㎡样板间
295
作品说明
- 项目类型:样板间/售楼处
- 项目地点:西安市
- 建筑面积:143.0000㎡
- 项目造价:50.0000万元
- 参与设计师:肖勇
- 竣工时间:2023年10月
- 设计机构:西安几何加装饰设计有限公司
-
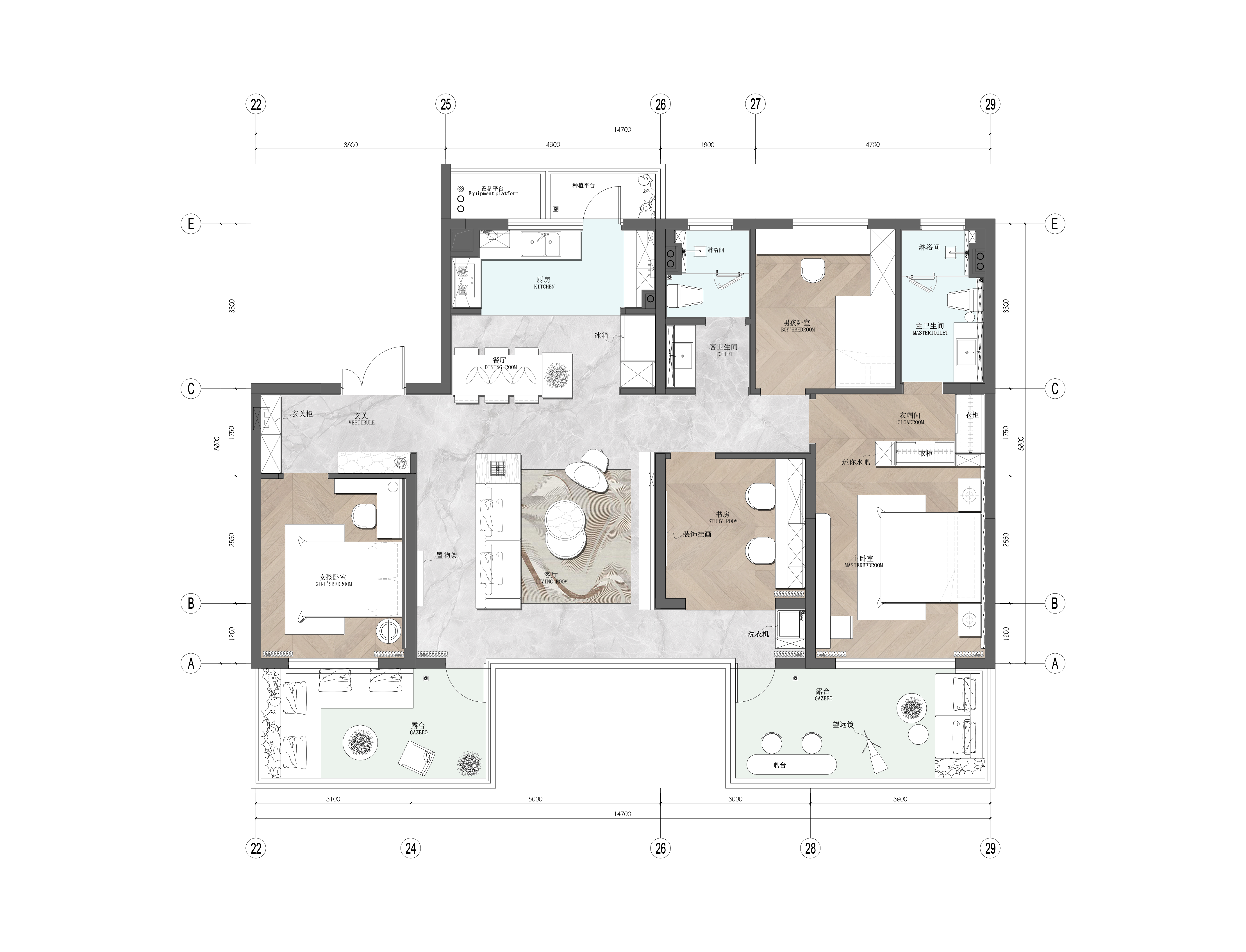
项目定位:本案搭建在售楼部二层,为临建样板间。原始结构为四室两厅两卫,带南北双阳台,南向阳台挑空6米,是第四代住宅
-
空间意境:本案业主定位为一家四口,更多的是希望空间能够自然,温馨。居家空间希望尽量简洁、开阔,以浅色暖调为基础,风格定位为现代简约
-
空间布局:1.客厅、餐厅和厨房采用开放式设计,形成一个连贯的公共活动空间。这种设计不仅能增加空间的视觉感,还方便家庭成员之间的互动和交流。
2.其中一个房间可以设计成多功能房间,例如书房、客房或娱乐室。通过灵活的家具配置,这个房间可以根据家庭的实际需求进行调整,增加了空间的使用效率。
3.卧室区域与公共活动区域相对分离,形成了动静分区。这种布局可以有效减少公共活动对卧室休息区的干扰,提升居住的舒适度。
4.客厅和卧室都有通向户外阳台或露台的通道,充分利用了户外空间。这些户外空间可以作为休闲区、绿化区或观景台,增加了居住者与自然接触的机会。 -
设计选材:客厅铺设天然的理石地板,并于其上放置一张条纹式地毯,历经时间雕刻而成的层次肌理与地毯纹路产生共鸣,荡漾起不疾不徐的旋律。
身居客厅,就会感受到阵阵温和的摇曳感。木质墙壁贴设大理石面板,质朴与现代打破宁静的平衡,重新调和出活络的视觉观感,令室内犹如微风拂过水面,荡起阵阵美学波澜。 -
用户体验:设计师充分理解了我的需求和喜好,将空间利用到了极致。客厅的布局宽敞明亮,色彩搭配温馨舒适,每一处细节都处理得恰到好处。
卧室的设计更是兼具美观与实用性,收纳空间充足。而且施工团队也非常专业,整个装修过程高效且质量过硬。
0
0

认证 · 让您身份增值