《绿绮棕影》


作品说明
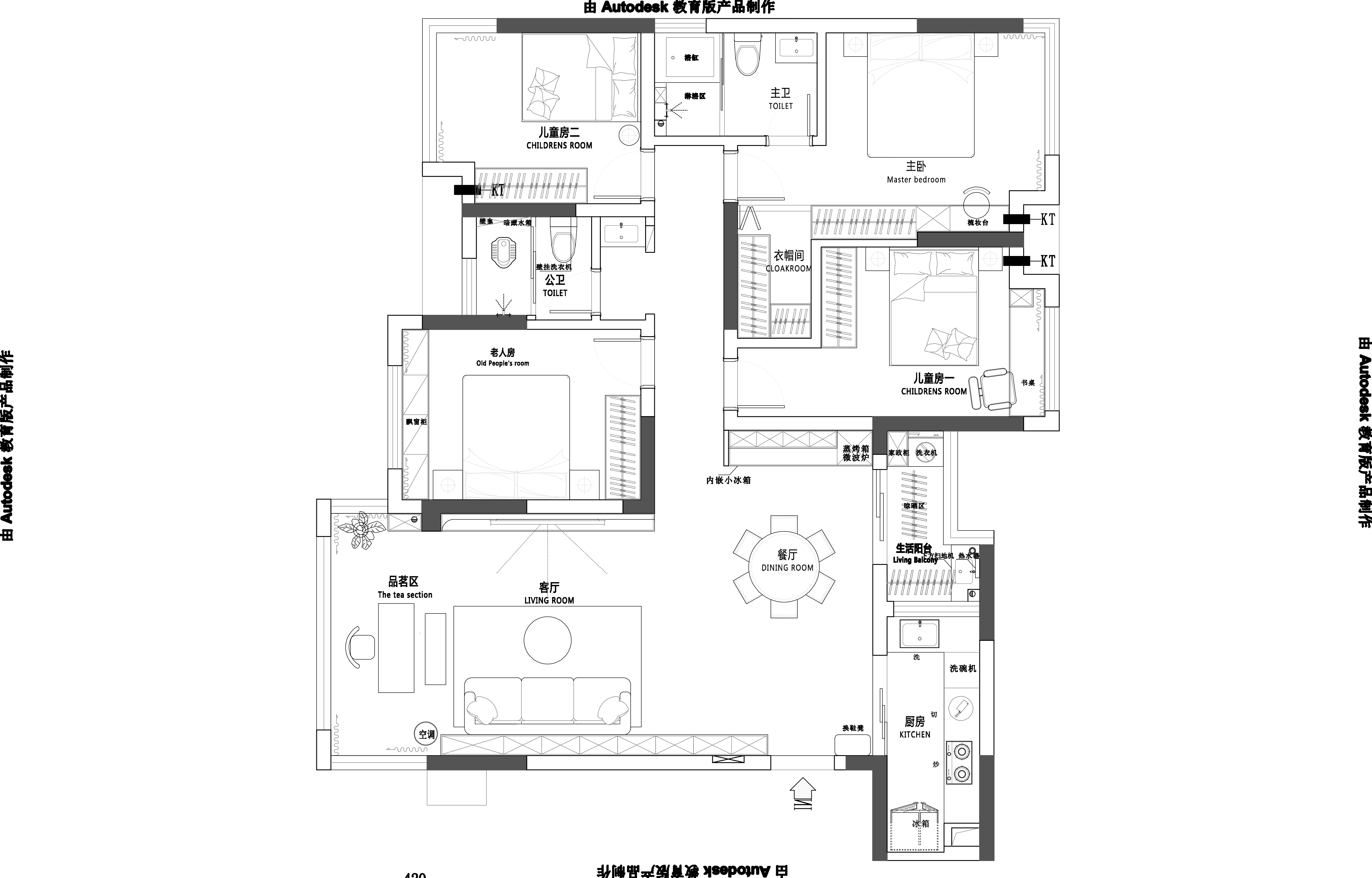
- 项目类型:住宅公寓
- 项目地点:桂林市
- 建筑面积:140.0000㎡
- 项目造价:40.0000万元
- 主案设计师: 陈诗密
- 竣工时间:24年3月
-
项目定位:本案空间主打中古风格,旨在重塑往昔岁月的迷人韵味,为居住者带来一场跨越时空的审美之旅,使其在快节奏现代生活中寻得一隅怀旧天地。
-
空间意境:入户换鞋区无玄关,地面材质上设计与鞋柜的材质形成一个整体,材质形式上划分了区域。
-
空间布局:客厅沙发后方整面储物柜
-
设计选材:地面选用可再生资源木地板全房通铺,木地板的保温隔热性能优越,冬天能减少室内热量散失,降低取暖能耗;夏天阻挡热气传入,减轻制冷负担,长期有效降低居住能耗成本。
-
用户体验:实用性与氛围感并存,圆桌增加了家人之间的感情。

