《自在乐居》


作品说明
- 项目类型:住宅公寓
- 项目地点:桂林市
- 建筑面积:138.0000㎡
- 项目造价:45.0000万元
- 主案设计师: 陈诗密
- 竣工时间:2024年11月30号
- 设计机构:诗密空间设计
-
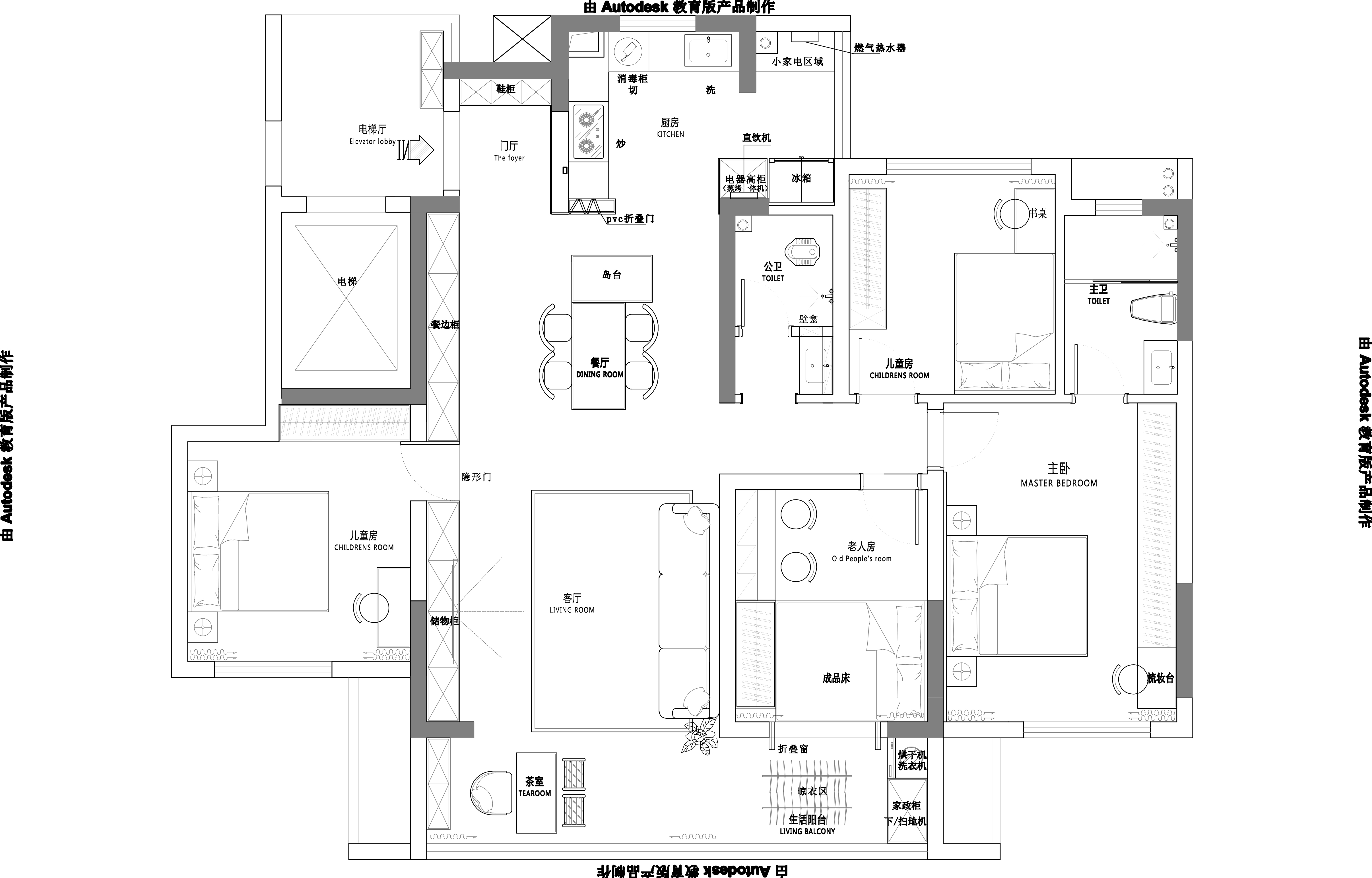
项目定位:本项目旨在为业主打造一个舒适、自然、简约的居住空间,摒弃繁杂装饰,以原木材质为核心,融合现代设计手法,让空间回归生活本质。
-
空间意境:客厅后面次卧与生活阳台衔接处窗户选用折叠窗,增加了互动性。
-
空间布局:客厅作为核心区域,采用开放式布局,黑色沙发吊坠纹理抱枕,背景墙大面积留白搭配绿色系挂画,既时尚又温馨。整面电视柜和次卧隐形门以及餐边柜连接,储物与整体性并存。无主灯设计,磁吸轨道灯与射灯结合,提供充足且有层次的照明。
餐厅紧邻厨房,定制的岛台连接洞石台面餐桌,餐桌椅搭配简约银色吊灯,营造就餐仪式感。厨房为 L型布局,嵌入式电器保证空间整洁。
卧室延续整体风格,白色搭配木质床头背景墙用原木拼接。
卫生间干湿分离,干区原木浴室柜搭配台下盆,湿区淋浴区地面铺防滑地砖,墙面灰色瓷砖,简洁大方易打理。 -
设计选材:墙面材料:客厅卧室墙面用环保乳胶漆替代壁纸,成本低、污染小。
装饰织物:窗帘、沙发抱枕选棉麻材质,天然透气、可降解,触感舒适,风格适配。 -
用户体验:空间通透,储物功能强大。
本项目旨在为业主打造一个舒适、自然、简约的居住空间,摒弃繁杂装饰,以原木材质为核心,融合现代设计手法,让空间回归生活本质。
全屋以白色、木色为主色调,点缀黑色,搭配绿植点缀,自然材质与现代工艺完美融合,诠释现代简约原木生活美学,为业主呈献惬意家园。
用推车取代茶几,客厅空间更显大。
餐厅紧邻厨房,定制的岛台连接洞石台面餐桌,餐桌椅搭配简约银色吊灯,营造就餐仪式感。
客厅作为核心区域,采用开放式布局,黑色沙发吊坠纹理抱枕,背景墙大面积留白搭配绿色系挂画,既时尚又温馨。整面电视柜和次卧隐形门以及餐边柜连接,储物与整体性并存。无主灯设计,磁吸轨道灯与射灯结合,提供充足且有层次的照明。
入户鞋柜门板选用镜面板
厨房为 L型布局,嵌入式电器保证空间整洁。

