智能建造产业园展厅
320 - 项目类型:展示
- 项目地点:鄂州市
- 建筑面积:510.0000㎡
- 项目造价:345.0000万元
- 参与设计师:刘晓星、罗宇、汪小静
- 竣工时间:2024.10.09
- 设计机构:深圳海外装饰工程有限公司展陈设计分院
-
项目定位:双创谷产业园位于是中建|长投·葛店之星内,是以“数字经济和人工智能产业”为核心业态的科技城融合项目,也是千亿级“光谷科创大走廊”的重要战略节点。
孵化区域的展厅在设计中作为整个产业园的门面,建成后将集规划平台、企业宣传、技术展示和行政服务等功能于一体的企业文化展厅。 -
空间意境:1.总体设计要体现中建气质、中建文化和鲜明的科技创新特色,内容全面,重点突出、手段新颖。
2.在尊重建筑风格与建筑空间的原则下,力求在展示理念、展示手段、展示形式上达到突破和创新。
3.充分利用各种声光电展示手段与规划内容融为一体,创造出多维立体展示方式。
4.设计科学合理的参观路线,充分考虑园区整体的接待人群、出行等定位。
5.采用先进的数据处理终端,方便信息管理、维护更新;充分考虑展厅的智能化与节能环保,做到系统安全可靠,运营成本经济。
-
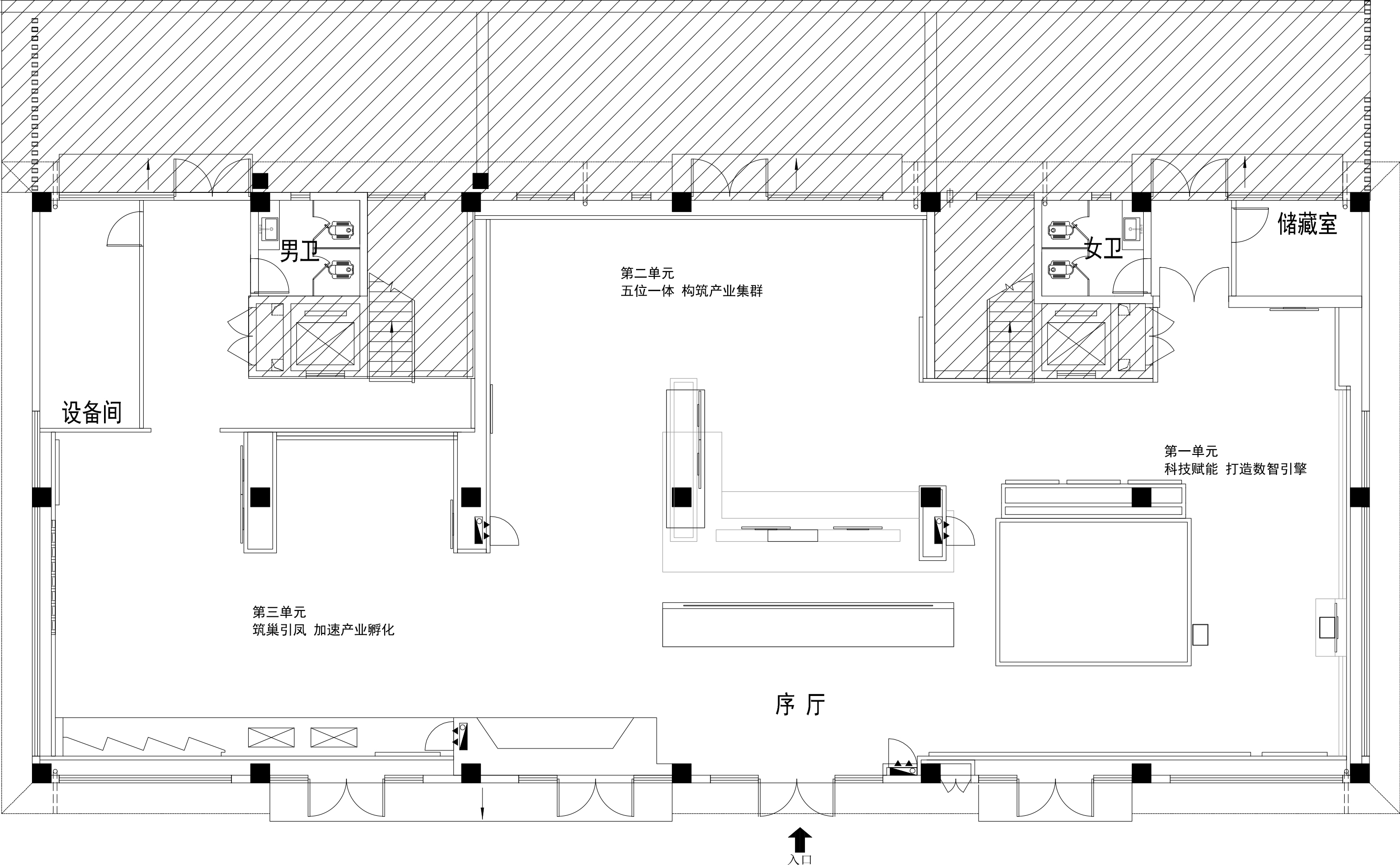
空间布局:展厅的空间布局与流线设计对于参观者的体验至关重要。入口序厅我们设计了一个整体的开敞空间。采用单向、逆时针的参观流线。
合理分布重点展项,确保每个单元都至少有一个核心展项,确保每个区域有亮点,有新颖的互动体验,即丰富了参观的节奏,又增强了展示内容和效果。
-
设计选材:展厅多运用可再生材料,较好的利用自然光源,满足低碳与经济型的要求。
-
用户体验:展厅以“孕育之源 智造之家 共生之地 未来之窗”为设计立意,建成投入使用后很好的满足用户需求及展示效果。
进入序厅,迎面而来是相对通透和开敞的空间,契合整个展厅的主基调。展标“三局·智能建造”结合前言文字,揭示展览主题。
第一单元主要突出三局在智能建造中的关键技术模块,细分技术及产品产业化的成果,是展厅展示的核心部分。以多种互动形式让观众在交互中领略产业园区相关产业和企业在智能建造方面所结成的硕果。
“三局智能建造综合沙盘”,从整个体系建设的角度讲了智能建造项目如何运行。沙盘上有LED灯带连接,形象反映研发、运维、数据、PC工厂、机电工厂等环节的关系。同时还设置了项目、厂房、智能建造设备等的仿真模型,与后面的大型LED屏形成联动。
“管理平台系统联动演示”,通过几台多媒体屏所组成的模块“矩阵”,呈现智慧运维 、 综合管理平台和建筑产业互联网平台在实际运营中是如何助力项目智能建造和管理。底下触摸屏可补充查询这些平台建立后取得的效益、成果等数据,以及未来发展的方向。
第二单元通过条形屏与数字模块的组合,展现“研究院、产业基地、产业园、产业基金、产业展”“五位一体”产业体系打造产业集群的能力。
第三单元首先介绍孵化器的特色,即主要地位,以及在整个五位一体体系,从科技成果到产业集聚过程中孵化器发挥的作用。介绍具体政策和服务,则从一个入驻企业的视角,去展开讲述孵化企业进、养、出的过程。这样的好处是比起单纯的讲解流程,会更加直观。体现全方位、全要素、全生命周期的服务能力。
展厅的空间布局与流线设计对于参观者的体验至关重要。入口序厅我们设计了一个整体的开敞空间。采用单向、逆时针的参观流线。 合理分布重点展项,确保每个单元都至少有一个核心展项,确保每个区域有亮点,有新颖的互动体验,即丰富了参观的节奏,又增强了展示内容和效果。
0
0

认证 · 让您身份增值