上海虹桥建国铂萃室内精装修项目
417 - 项目类型:酒店
- 项目地点:上海市
- 建筑面积:12000.0000㎡
- 项目造价:1500.0000万元
- 参与设计师:李烨波
- 竣工时间:2022.09.07
- 设计机构:深圳海外装饰工程有限公司
-
项目定位:上海虹桥建国铂萃酒店,位于上海虹桥枢纽西侧,建筑总面积约12000平方,传承建国酒店深厚的历史文化底蕴,萃取东方山水的灵秀气韵,融合当代艺术生活方式,拥有独特的艺术美学。通过从自然中汲取设计元素,借以现代艺术技法,将中西智慧融为一体,赋予建国酒店更鲜活的能量。
-
空间意境:东方的气度在于闲而逸,心境恬然自得。西方之精华在于高雅而写实。象征东方贵族气韵的黑色、红色、金色,文人雅客最爱的灰色和蓝色几种颜色相互协调,彼此搭配勾勒出极具东方气质的环境空间。空间内随处可见的艺术品,充分展示“当代艺术”构建起直达内心的灵动气息。
-
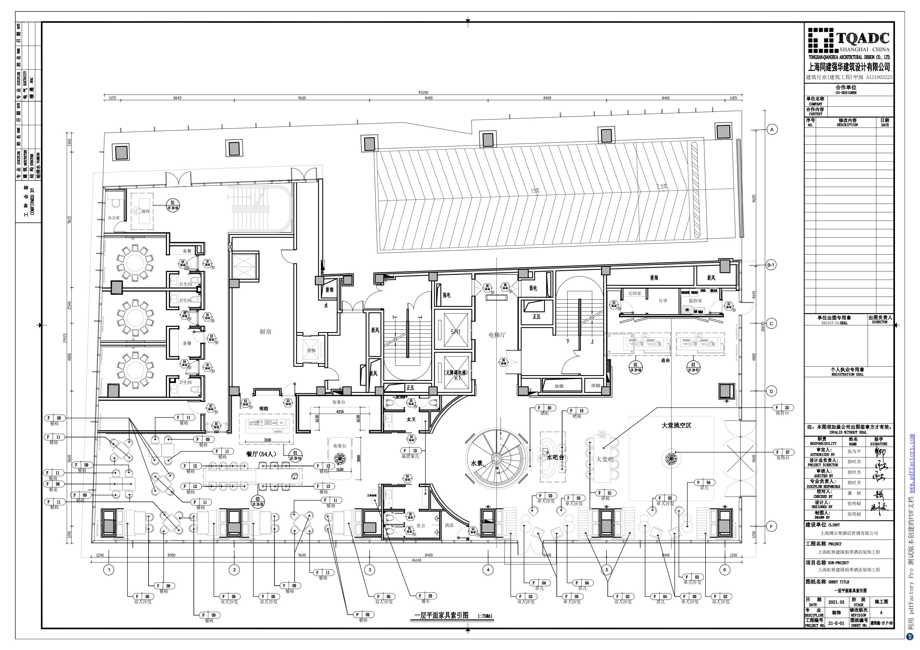
空间布局:酒店大厅别致的兰花花瓣背景墙,通过兰花花瓣形态提炼的图案进行地面拼花。前台运用各种别致的材质,色彩及形态的多变设计,不仅带来丰富的视觉层次感也为宾客提供更人性化的接待服务。
犹如艺术品的花瓣造型灯饰为祥静的空间增添了一丝动感与跳跃。中国古建筑的原木色彩,与欧式精致的布艺沙发,烘托出意蕴悠长的古典美,融入轻松的空间布局,打破时空封闭的固有思维,构筑出“萃享空间”共享公区。
走进精致的酒店客房,卷轴式的背景墙、淡金色宫灯,整体设计透着东方空净的禅意。中西风格融于一体,让人充分放松身心。背景画的灵感来自山水之中,展现着独特的艺术品位。从床头到床尾,流淌着东方的艺术神韵,睡过一晚,身心舒缓,尽享惬意。
建国铂萃酒店艺术灵感闪现于物象之中,蕴藏于感官享受,点滴灵感,启迪造物技艺,以西方当代艺术手法,展现东方生活艺术神韵。自然中汲取设计元素,通过现代艺术技法加以展现。将中西智慧融为一体,创作出风格独特的感官享受。萃取东方经典元素,融合现代艺术生活方式,着重展现东方文化,与世界艺术糅合的独特体验。善用“古为今用”的设计手法,沿袭建国酒店深厚的历史文化底蕴,营造灵秀气韵的现代城市生活氛围。 -
设计选材:选材使用天然大理石 金属 玻璃 天然材料的棉布 环保安全,低造价
-
用户体验:酒店将设计理念融入建筑外观和内部装饰中,通过独特的设计元素和精心挑选的材料,创造出独具魅力的空间,以吸引和留住追求独特体验的客人。设计酒店注重为客人营造出独特的氛围和感觉,让他们在其中度过愉快而难忘的时光。
东方的气度在于闲而逸,心境恬然自得;顺应东方文化肌理,并萃取其精华彰显其场域精神。我们在大堂吧顶面运用水晶布的艺术吊灯,如同兰花花瓣盛开的场景,将海派文化与东方文化相结合,体现出东方低调奢华的韵味,也能给客人带来丰富的视觉感受
在设计手法的运用上,我们始终统一“东申闲逸 西并雅容 品类兼美 纵流大同 ”的主题,餐厅入口我们设置了岛台,让客人能直观的看到我们餐厅的用餐氛围,并结合金属、玻璃不同材质的组合,让餐厅前厅更加璀璨夺目。
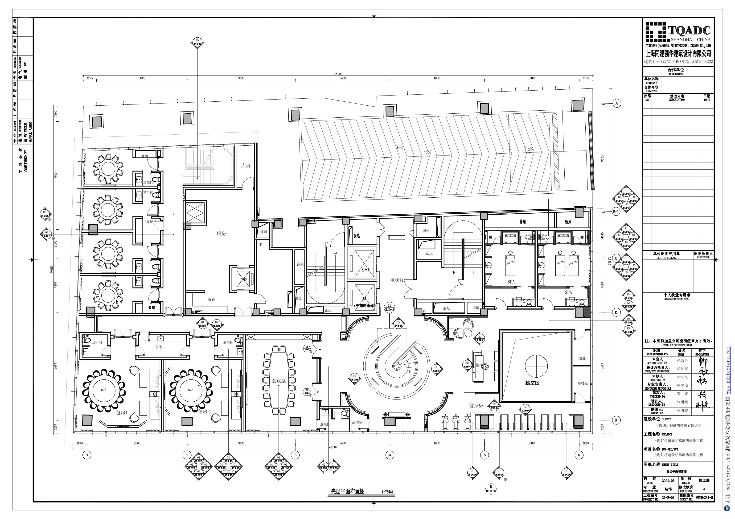
此处为业主自用中餐包房区域,此处的网红楼梯,能够直接上到二层的中餐包房,简单但富有艺术性;整个空间以黑白灰的色调为主,并融入东方肌理线条,呈现出东方的气度和精神。
虹桥建国铂萃酒店位于上海市,是首旅如家最高端的品牌,以“萃依东方 领观世界”的设计理念和“古为今用”的设计手法,将东方文化与当代艺术生活方式巧妙结合,着重展现东方文化与现代艺术的糅合所给与客人的独特体验;大堂前台背景采用大幅艺术品与玻璃屏风相结合,主画面为“雨中的上海”剪影,两侧则是现代元素的玻璃屏风;而在前台的造型中,我们运用金属与玻璃砖的材质,整体低调奢华富有艺术感。
餐厅的顶面我们运用了一片片的金属加上镜面的材质,如同“上海石库门的灰砖造型”,隐约的体现出海派文化的精致感与层次感。整个空间将东方文化与当代艺术生活方式巧妙结合,着重展现东方文化与现代艺术的糅合所给与客人的独特体验;
人们对于颜色的感受,只有当其变得亲切时,才意识到它成就了空间。虹桥建国铂萃酒店客房区域我们贯穿了文人雅客最爱使用的灰色和蓝色,带有东方贵族气韵的金色及中国传统的红色;整个房间给到宾客雅致、亲切的感受。
在大堂吧顶面运用水晶布的艺术吊灯,如同兰花花瓣盛开的场景,将海派文化与东方文化相结合,体现出东方低调奢华的韵味,也能给客人带来丰富的视觉感受
我们始终统一“东申闲逸 西并雅容 品类兼美 纵流大同 ”的主题,餐厅入口我们设置了岛台,让客人能直观的看到我们餐厅的用餐氛围,并结合金属、玻璃不同材质的组合,让餐厅前厅更加璀璨夺目。
餐厅的顶面我们运用了一片片的金属加上镜面的材质,如同“上海石库门的灰砖造型”,隐约的体现出海派文化的精致感与层次感。整个空间将东方文化与当代艺术生活方式巧妙结合,着重展现东方文化与现代艺术的糅合所给与客人的独特体验;
人们对于颜色的感受,只有当其变得亲切时,才意识到它成就了空间。虹桥建国铂萃酒店客房区域我们贯穿了文人雅客最爱使用的灰色和蓝色,带有东方贵族气韵的金色及中国传统的红色;整个房间给到宾客雅致、亲切的感受。
0
0

认证 · 让您身份增值