-
项目定位:此次项目的主要目的就是设计方案的细化以及方案落地及细节的把控,将智能、声、光、电、喷淋、烟感、空调等系统做最完美的组合,并将空间最大程度的利用,将空间美学及产品展示做一个完美的整合。
-
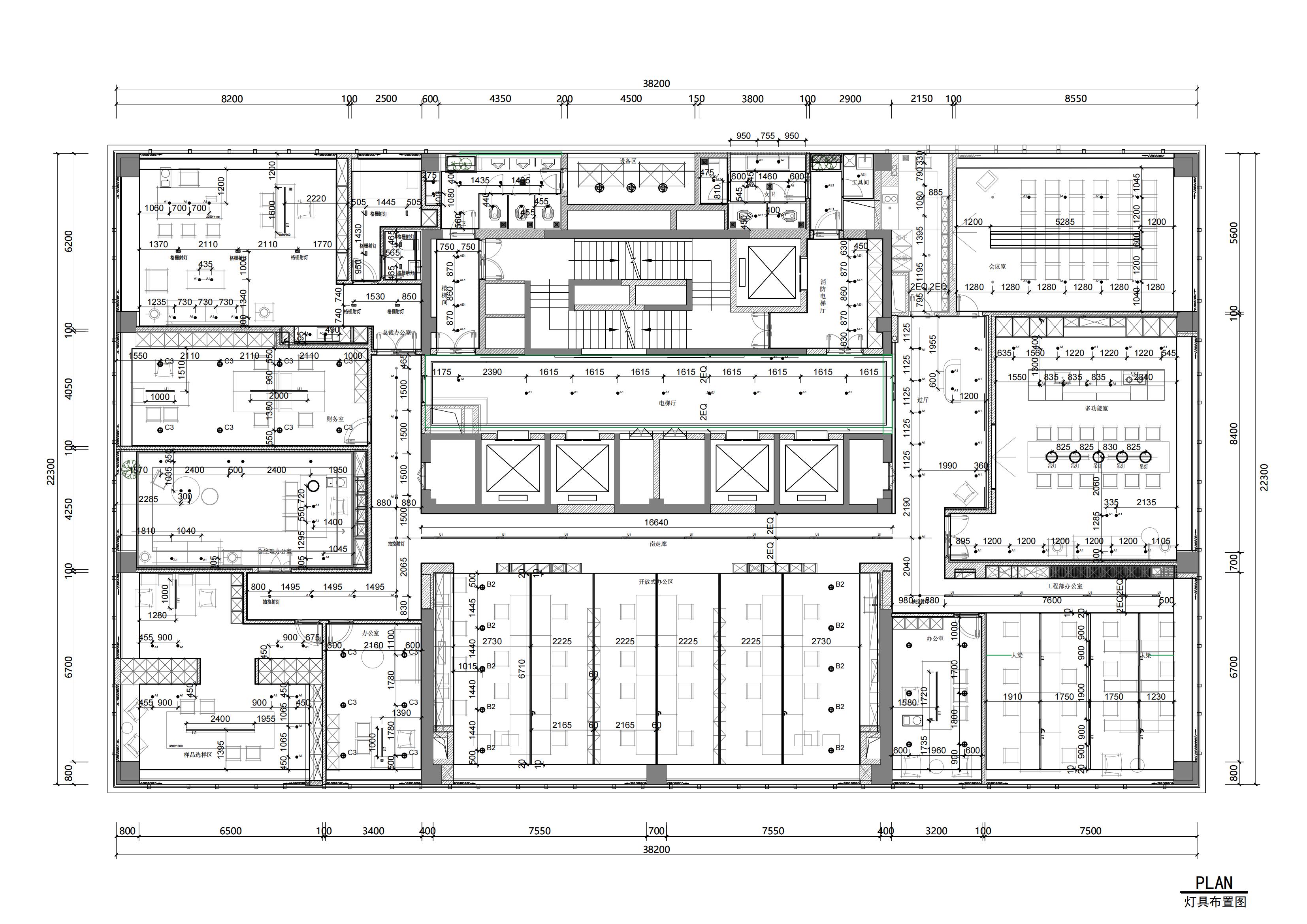
空间意境:现场为毛坯房的结构,大梁比较低,层高比较受局限,如何保证空间的层高、梁与空调以及家具之间功能完美的协调是一个比较难的处理。
-
空间布局:泛米兰国际家居代理的是全世界知名的一线品牌家具意大利poliform 德国柏丽、德贝全屋定制等产品,服务的客户也是行业内高品质客户,所以以一种国际化的品质去呈现总部办公的定调就显得尤为重要,不跟风,不俗套成为了此次设计的要求,在多次和业主沟通后,我们决定采用包豪斯简约设计风格贯穿整个风格主线。
-
设计选材:【在选材上、工艺上】选择性价比高的产品,将工艺以及主材凸显品质的材料力求极致,呈现一种对于品质的要求,也是我们对于项目的要求及态度。
【技术层面的特殊考虑和做法】对于每一个细节我们作为设计方、施工方都全程与甲方进行详尽的沟通,把5MM的细节不断的去讨论、打样、修改、确认。如果问题没有特别完美的答案,我们宁可再多想一想,工地再多等一等的态度去面对它,业主也在过程中给予了很大程度上的信任,让我们这个项目在短短的6个月内,完成了圆满的施工落地。 -
用户体验:“用心+你的专业”才是必杀技,如果没有“用心”那将一切清零。在这个项目上,设计团队的老师每周都会到工地打卡2-3次,每次都是带着问题和答案去沟通每一个细节,在工地上发现问题及时与施工班组详细沟通,从而保证了项目按时保质保量的完成。感谢设计团队在这个项目上的付出!
0
0

认证 · 让您身份增值
125