龙湖景粼天序


作品说明
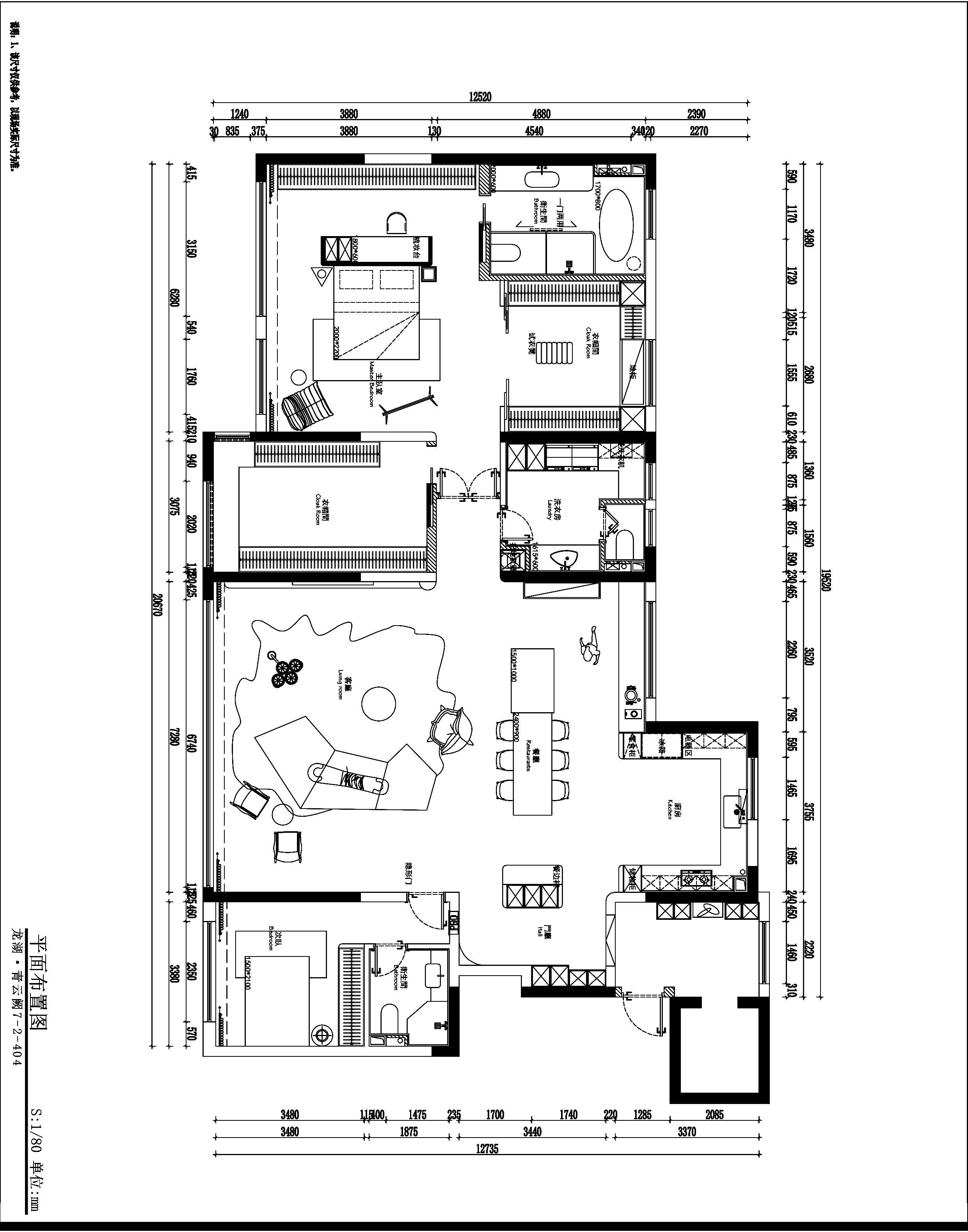
- 项目类型:住宅公寓
- 项目地点:长春市
- 建筑面积:200.0000㎡
- 项目造价:150.0000万元
- 主案设计师: 赵春涛
- 竣工时间:2024.8
-
项目定位:这套 200 平现代风格室内设计作品,环境风格创新亮点十足。在色彩运用上,摒弃传统黑白灰主调,采用低饱和度的莫兰迪色系,营造温馨优雅氛围。空间上,打破常规分区,打造开放式洄游动线,使各区域相互交融又独立,增强空间互动性。材质选取独特,将温润的微水泥与光滑的金属板结合,碰撞出工业风与自然风交织的质感。软装搭配上,引入绿植与艺术雕塑,为硬朗的现代空间注入生机与艺术气息,给人焕然一新的居住体验。
-
空间意境:在这套 200 平现代风格设计中,环境风格创新显著。墙面装饰突破常规涂料与壁纸,运用新型 3D 打印环保材料,逼真模拟自然纹理,如石纹、木纹,增添空间质朴感。照明设计上,抛弃主灯主导,采用隐藏式灯带与智能感应灯结合,依不同时段与场景营造氛围,减少能源消耗。软装方面,引入模块化、可变换组合的家具,随时根据需求调整布局与功能,兼具实用性与趣味性,赋予空间灵动多变的特质,打造出舒适且极具个性的现代居住环境。
-
空间布局:本 200 平现代风格作品的空间布局独具创新。摒弃传统的独立房间划分,采用一体化开放式布局,客厅、餐厅、厨房通过巧妙的家具布置和地面材质的区分,形成连贯又独立功能的互动空间,增强家庭交流氛围。利用地台和玻璃隔断划分出多功能书房,既保证采光通透又独立静谧。同时,阳台被纳入室内,打造为休闲健身区,拓宽空间感。通过这些创新布局,使空间利用率大幅提升,各区域转换流畅自然,为居住者带来开阔、灵动且舒适的居住体验。
-
设计选材:本 200 平现代风格室内设计在选材上极具低碳与经济性创新。地面选用再生木地板,由回收旧木材加工而成,保留木材天然纹理的同时减少树木砍伐,价格也更亲民。墙面采用新型竹纤维板,竹子生长快、可再生,加工过程能耗低,其良好的透气性和装饰性优于传统墙面材料。家具多选用可回收的金属与塑料混合材质,坚固耐用且便于后期回收处理。这些选材在保证设计质感与空间格调的同时,有效降低成本与碳排放,实现环保与经济的双赢,为业主打造绿色舒适家园。
-
用户体验:这套 200 平现代风格的室内设计作品投入使用后,效果令人惊艳。空间布局合理,开阔通透,让生活与自然光线充分交融,各个功能区过渡流畅,极大提升了生活便利性。智能家居系统操作简便,为家居生活增添了科技感与安全感。用户反馈,整体环境舒适宜人,独特的装饰元素彰显了个性与品味,朋友来访时赞不绝口。而且室内空气质量良好,得益于环保材料的使用,真正实现了美观、实用与健康的完美平衡,让居住体验得到全方位升级,业主十分满意。

