-
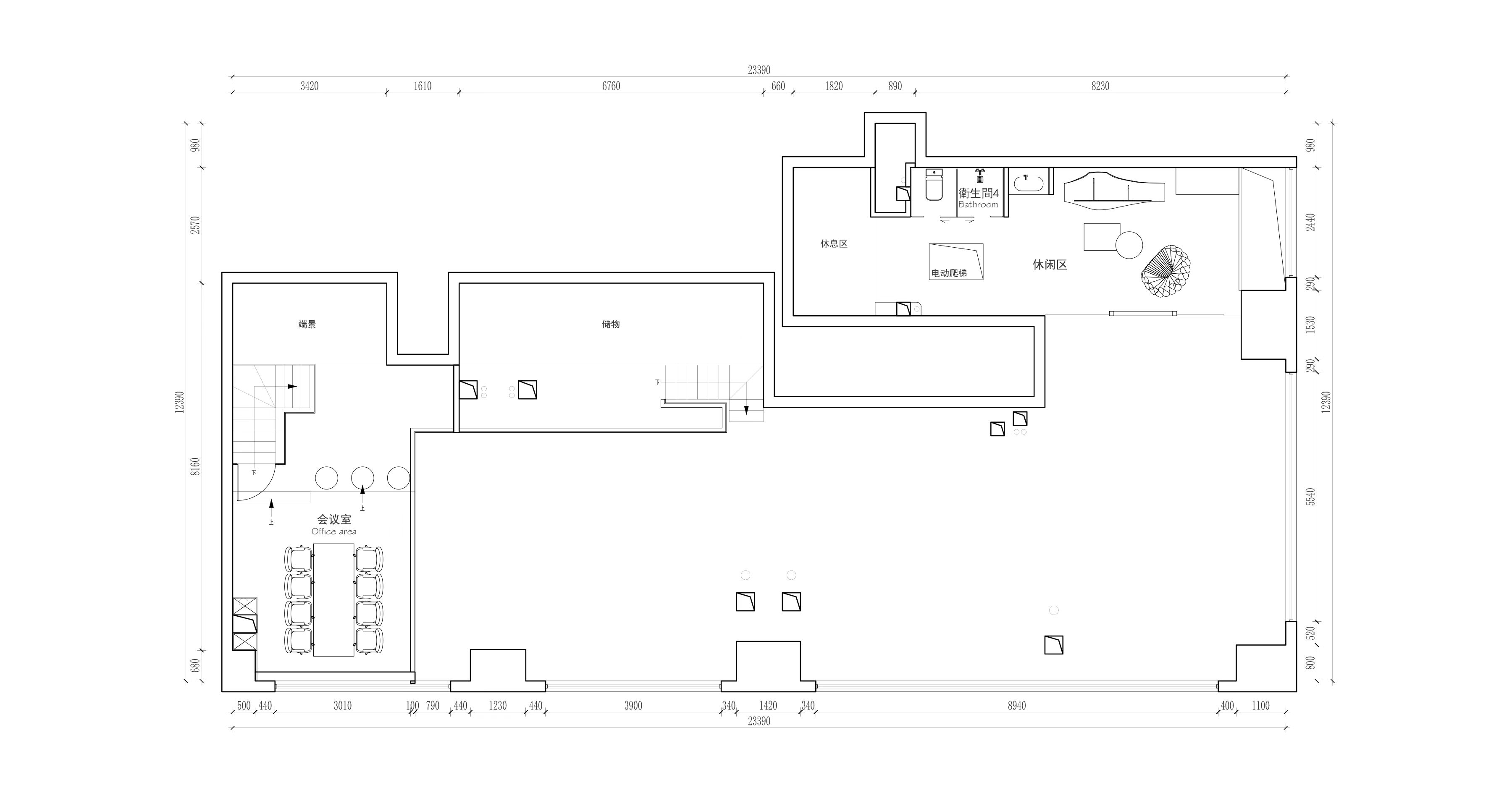
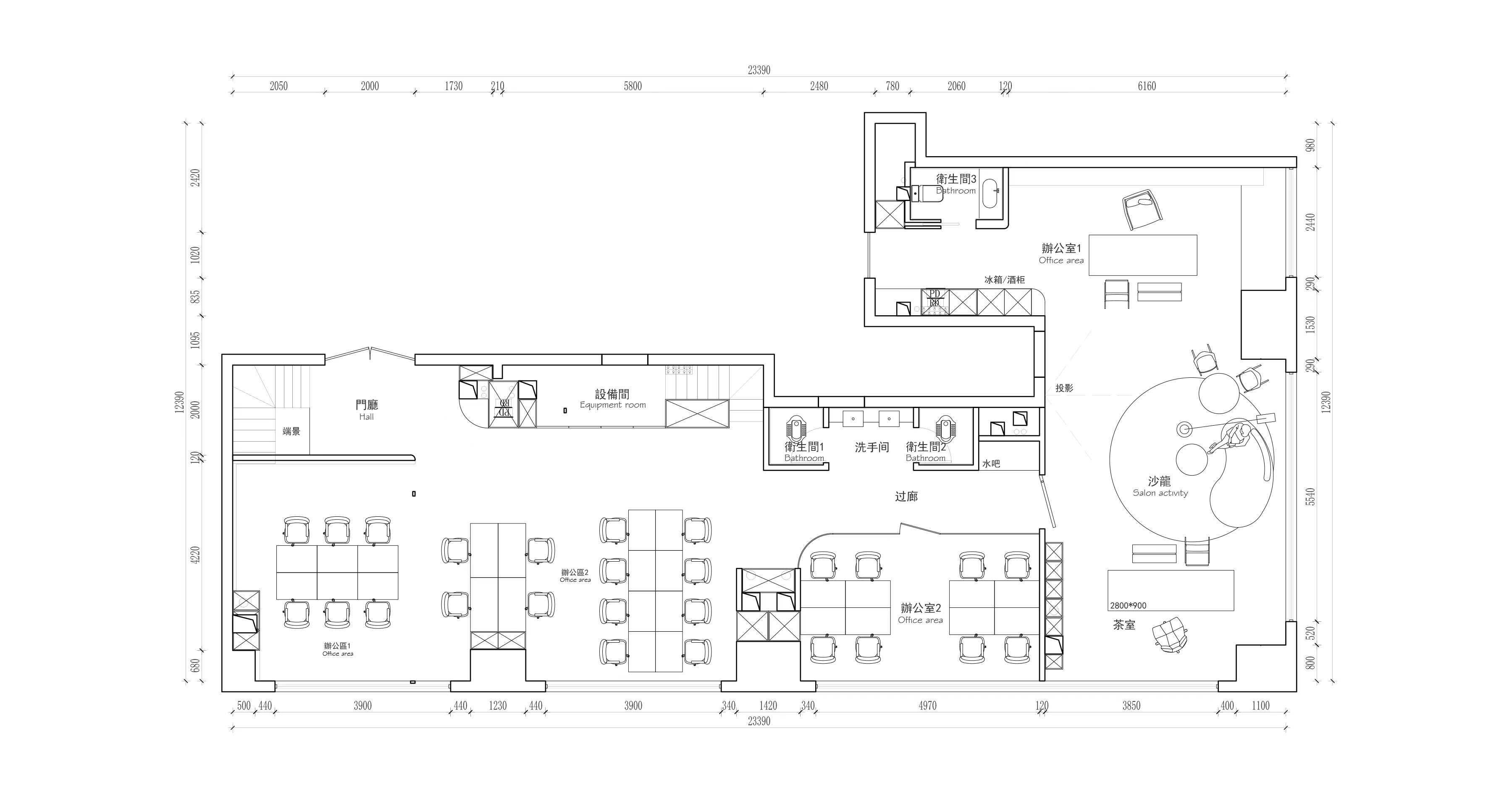
项目定位:长春华润中心媒体工作室装修设计旨在打造一个现代、高效且富有创意的空间。整体风格简约而不失大气,以白色和灰色为主色调,营造出简洁明快的视觉感受。工作区域布局合理,开放式的办公空间促进团队协作交流。充足的采光设计,让室内光线明亮。在装饰方面,采用线条简洁的现代家具,搭配具有艺术感的灯具,增加空间的时尚感。会议室配备先进的多媒体设备,以满足各种会议与展示需求。墙面装饰有一些与媒体行业相关的艺术作品,展现出工作室的独特文化内涵。
-
空间意境:工业风为主调。裸露的水泥墙面与金属管道展现原始质感,搭配暖色调灯光,营造出温馨又硬朗的氛围,摩托的存在增添炫酷与个性元素。 从空间中的斜面、天花、黑色与木色出发,可打造独特空间。 斜面天花可设计成木质斜顶,增加空间层次感。黑色用于点缀,如黑色金属灯具,与木色形成对比。木色大面积运用在墙面或地板,营造温馨自然又不失时尚的装修风格。
-
空间布局:功能分区灵活多元化,开放与私密结合,采用开放式办公区与独立工作室、会议室等私密空间相结合的方式。开放式办公区促进团队成员间的沟通协作,独立空间则为需要专注工作或进行私密讨论的情况提供了安静环境。设置多功能区域,如兼具休闲与交流功能的咖啡吧或休息区,员工可在此放松、交流创意;还设有灵活的展示区,可根据不同项目或活动需求,快速调整展示内容和形式空间利用高效合理。立体空间开发,充分利用垂直空间,设置多层书架、展示架或悬挂式收纳装置,增加储物和展示面积,也可采用跃层或夹层设计,拓展使用空间。
-
设计选材:黑色金属灯具是一大亮点,其采用可回收的黑色金属材质,不仅坚固耐用、易于造型,还具有良好的散热性,能有效降低能耗,契合低碳理念。灯具的设计风格简约,线条硬朗,与工业风主题相得益彰,为空间增添了冷峻质感,同时其批量生产工艺成熟,成本相对较低。木色护墙板选用速生木材,来源广泛且价格亲民,减少了对珍稀木材的依赖,体现经济性。其表面保留木材的天然纹理,经过环保水性漆处理,散发着自然温暖的气息,平衡了黑色金属灯具带来的冷硬感,在营造温馨氛围的同时满足低碳环保要求,为媒体工作室打造出别具一格且可持续发展的空间环境。
-
用户体验:开放式布局让沟通便捷高效,营造出兼具时尚与舒适的氛围,工作累了还能在窗边眺望城市景色,身心愉悦,大大提升了工作的热情和效率。
0
0

认证 · 让您身份增值
368