COLORFUL LIFE


- 项目类型:办公
- 项目地点:宁波市
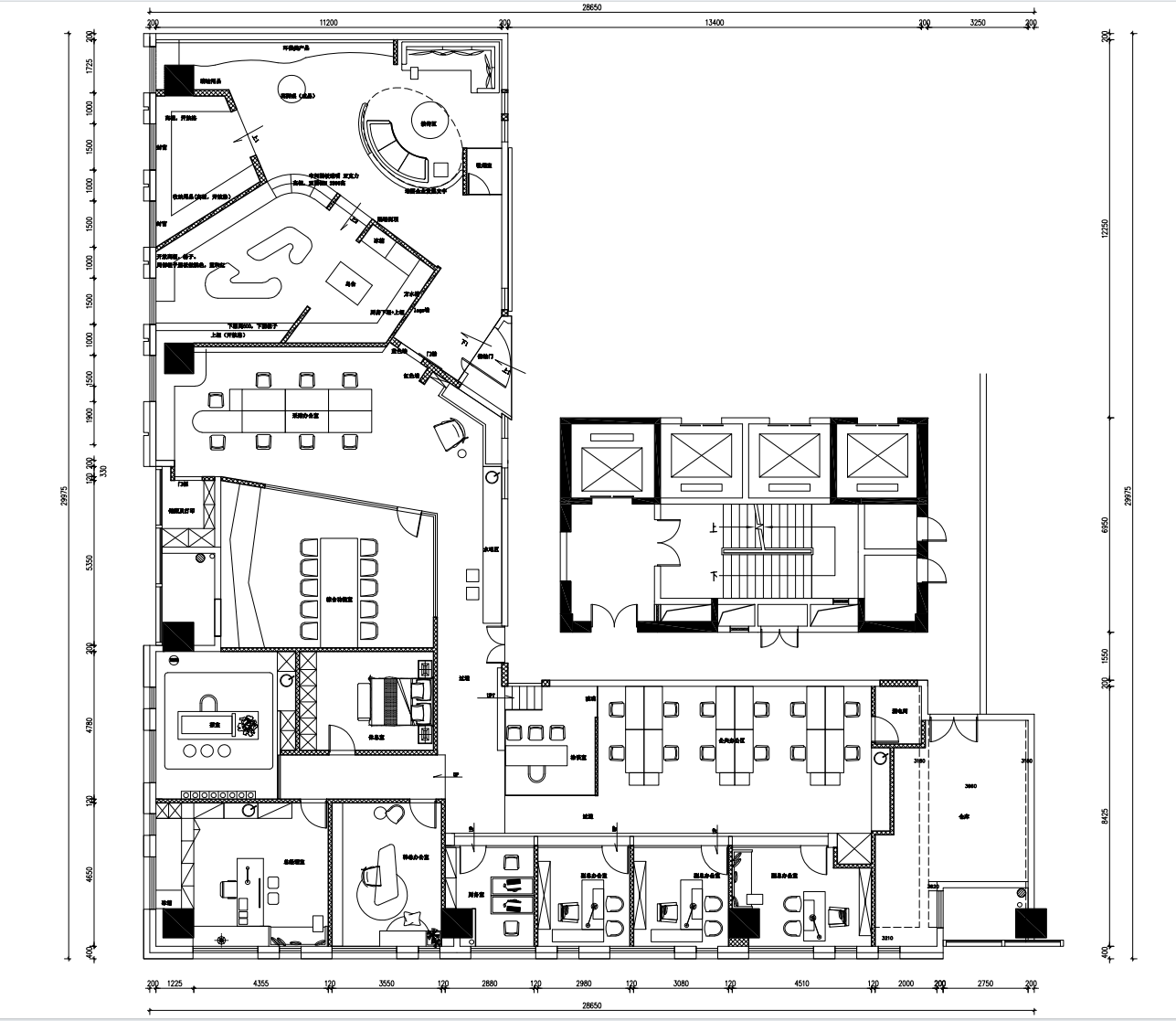
- 建筑面积:600.0000㎡
- 项目造价:135.0000万元
- 主案设计师: 仇鲁燕
- 参与设计师:仇鲁燕
- 竣工时间:2024.9
- 设计机构:宁波谷筑空间设计有限公司
-
项目定位:创造多彩生活【CREATE YOUR COLORFUL LIFE】,顾名思义,在空间中会植入一定的色彩,以呼应业主单位的公司口号。
-
空间意境:在本设计中,色彩是关键元素。我们采用了多种鲜艳的颜色,如红色、蓝色、绿色、棕色等,来打造一个充满活力和热情的工作环境。红色,热情奔放,寓意美好。在这个卷卷卷的时代,红色可以带动工作的积极性。展厅部分设计融入外建筑形态,弧度造型重新延展了空间的纵深,让我们感受到时尚、潮流、热情的工作氛围。另外,我们将地板上墙,去往茶室的通道做了艺术画廊墙,高级简约环保。门头用方块地板墙做了漏斗造型,寓意兜满财富。
-
空间布局:对于600平的建筑面积,公摊部分也占了不少面积,如何把公摊部分融入到使用空间里,是我每一次都会花时间最多的一部分。过道非过道,又是多功能空间的存在,个人认为,好的设计不仅仅只是意识形态上的变换更是能将空间利用到极致。敞开办公区还设有绿植区,在自然生态的环境中办公也是本案的亮点。
-
设计选材:
-
用户体验:客户说:所有来过的客人,都说,这个空间可以是买手店、可以是设计公司,但一定想不到这是家外贸公司。
色彩是世界上最顶尖的语言它可以传达情感和创造力——阿尔伯特·约瑟夫·摩尔 创造多彩生活【CREATE YOUR COLORFUL LIFE】,是这套办公空间设计的核心理念。走进这个办公空间,仿佛踏入了一个充满奇幻魅力的艺术世界。
在现代社会中,人们越来越追求丰富多彩的生活,不仅希望在工作中获得成就感和满足感,还希望在工作环境中感受到生活的乐趣。因此,本案以多彩的生活为设计主题,旨在为办公者创造一个充满活力、舒适、愉悦的工作空间。
隔栅,以其独特的线条和秩序感,为空间增添了一份精致与优雅。隔栅与玻璃的结合,既保证了空间的通透感,又营造出一种若隐若现的神秘感。
我们还设置了多个多功能区域,如会议室、休息区、茶水间、展厅、电话亭、吸烟区、洽谈室、茶室等,以满足员工在工作中的不同需求。
在空间布局上,我们采用了开放式的办公布局,以增加员工之间的互动和沟通。同时,我们也为个别员工提供了独立的办公空间,以保证工作和休息的私密性。光影,是这个空间的灵魂画师。在地面和木饰面上勾勒出如诗如画的光影图案。时而明亮,时而柔和,变幻莫测的光线赋予了空间一种灵动的美感,仿佛时间都在这光影的流转中慢了下来。
在设计元素上,我们采用了多种元素来打造一个多彩的办公空间。那一抹热烈而奔放的色彩,如跳动的火焰般瞬间点燃了空间的活力。它在墙壁上肆意蔓延,释放着无尽的激情与能量,让每一个身处其中的人都能感受到内心的振奋。
多彩的生活是这套办公空间设计的核心理念。我们通过色彩运用、空间布局、设计元素、灯光设计等多个方面,来打造一个充满活力、舒适、愉悦的工作空间。这里不仅是一个工作的场所,更是一个激发灵感、释放创造力的艺术空间。鼓励员工自由向上发展不断提升自己的能力和技能,来实现个人和企业的共同发展目标,从而推动公司创新和业绩增长,这也是我们设计背后所赋予的价值和意义。
创造多彩生活【CREATE YOUR COLORFUL LIFE】,顾名思义,在空间中会植入一定的色彩,以呼应业主单位的公司口号。红色,热情奔放,寓意美好。在这个卷卷卷的时代,红色可以带动工作的积极性。展厅部分设计融入外建筑形态,弧度造型重新延展了空间的纵深,让我们感受到时尚、潮流、热情的工作氛围。

