当家成为黑色主义


- 项目类型:住宅公寓
- 项目地点:宁波市
- 建筑面积:155.0000㎡
- 项目造价:120.0000万元
- 主案设计师: 仇鲁燕
- 参与设计师:仇鲁燕
- 竣工时间:2023年12月
- 设计机构:宁波谷筑空间设计有限公司
-
项目定位:风格要求酷炫、独特、简约、高级。那么黑色变成了很好的选择,但纯黑色又太过于硬朗,所以在空间里植物了3000K灯光以及银色饰物,中和黑色的硬朗,让空间层次丰富。
-
空间意境:大胆使用黑色成了本案的创新点,包括顶面。
-
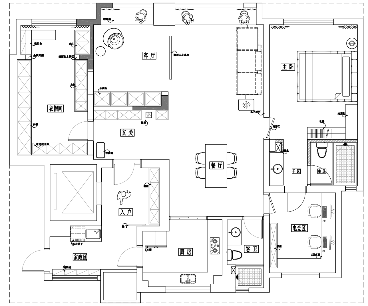
空间布局:空间布局上,打通书房与客厅,打通卧室与衣帽间,成为一个套间,让155的空间成为一个人的舞台。
-
设计选材:岩板、艺术涂料,环保与性价比共存。
-
用户体验:客户原话:谁说黑色很压抑,反而在灯光的衬托下,很温馨,很静谧。
山本耀司曾说:黑色是一种最有态度的颜色。本案正是一个有态度的家,深邃高远,仿若星辰广袤的夜空,不动声色的编织着旖旎的梦境。
黑色是大自然最深的颜色它神秘并且酷炫,具有超越现实的梦幻和精神富有着令人神往的感染力。 在住宅项目中,以一种前卫的设计状态来试探审美,对于业主和设计者而言,都是一种大胆且未知的挑战,但这恰恰也代表了我们对生活的无限探索和追求。
黑色对场域的营造是极具深邃的,它让你一眼观察不出空间的具体模样。本案的客厅虽是深色调,但在细究之下,深得很有层次感。 黑色的墙体、玄青的地砖、BAXTER磨砂皮沙发、紫黑的躺椅和深灰的餐桌,这几种不同色系围合、穿透、糅合、塑形。构建了家的主心骨,表达了空间或静谧、或高级、或隐现的感知。
冲破这片深色最好的工具无疑就是灯光。黑色系对于灯光的调度要求也是极高的,黑色非常吸光,相应于常规色调,黑色系需要多借1.5倍的光。设计者用褐黄色的灯带为这一片空间做了光影上的互补。借助窗外的自然光,在家具上泛起些许折射。在灯光的渲染下,家的模样和生活的情绪,便慢慢地显露出来。
黑和金是绝妙的组合,而设计者擅长用各种趣意满满的物件,来聚焦空间的核心和亮点。客厅的米色茶几,使得人的注意力为其所吸引。玻璃橱柜中的玩偶手办,在灯光映衬之下熠熠生辉,这股贵族的气质,也彰显业主的个性和品位。
我们发现,黑色并不是一种固定的色调。相反,这个空间因为黑色拥有了更为多元化的形态。有时候静止,有时候静谧,有时候温煦,有时候摩登。这种交融和结合,甚是有趣。 造型前卫且艺术的座椅,是对空间质感的提升。这些与生活相关的家具和器皿的置入,表达出一种设计思想:幽暗的环境,人才是空间的中心,当我在家里穿梭游走,不同的场景下会有不同的情绪释放,这种新颖的享乐和感受,让人体味到家的别具一格。
古曰:五彩过于华丽,殊鲜逸气,而青花则较五彩隽逸。黑色并非大多数人所能驾驭,喜欢它的人,一定能够品味出沉静内敛和温柔高雅。它的美,令人无限回味。
本案以“一个人”为中心展开为“她”而设计的动作,在这个空间里,所有动态围绕着她进行。整套房子一个房间为静区,其余空间都作为娱乐性功能,为她产生了联动性。客厅、餐厅、厨房、休闲区、电竞房,整个动线气息都随她而动,既独立又融合。

