Resonance回响



作品说明
- 项目类型:住宅公寓
- 项目地点:北京市
- 建筑面积:260.0000㎡
- 项目造价:300.0000万元
- 参与设计师:李成
- 竣工时间:24年12月
- 设计机构:呐么设计有限公司
-
项目定位:“Resonance”这个名称不仅简洁且富有内涵,深刻地传达了设计作品的核心精髓。它表达了设计元素之间的相互联系与共鸣——无论是经典与现代、空间与时间、艺术与建筑,还是居住者与空间的情感连接。这种“共鸣”打破了时空的界限,将所有元素凝聚在一起,形成了一个具有深刻层次感、情感共鸣以及思想深度的空间。这是一个充满活力与艺术感的空间,在视觉、情感、功能和哲学上都产生了强烈的共振
-
空间意境:这个项目位于北京的望京地区,这个小区是一个由德国建筑团队设计的商品楼盘,具备非常非本地化的户型结构。“Resonance”作为名称也强调了建筑与艺术的统一。设计中的每个元素、每个细节都像音符一样在空间中相互作用,形成一种和谐的“旋律”。这个名称将空间设计和艺术创作紧密结合,呼应了建筑师的创造性工作,及其在每个细节中如何让空间与生活产生共鸣。通过材料、形态和色彩的搭配,整个空间像是一个艺术作品,在居住者的生活中产生独特的反响。
-
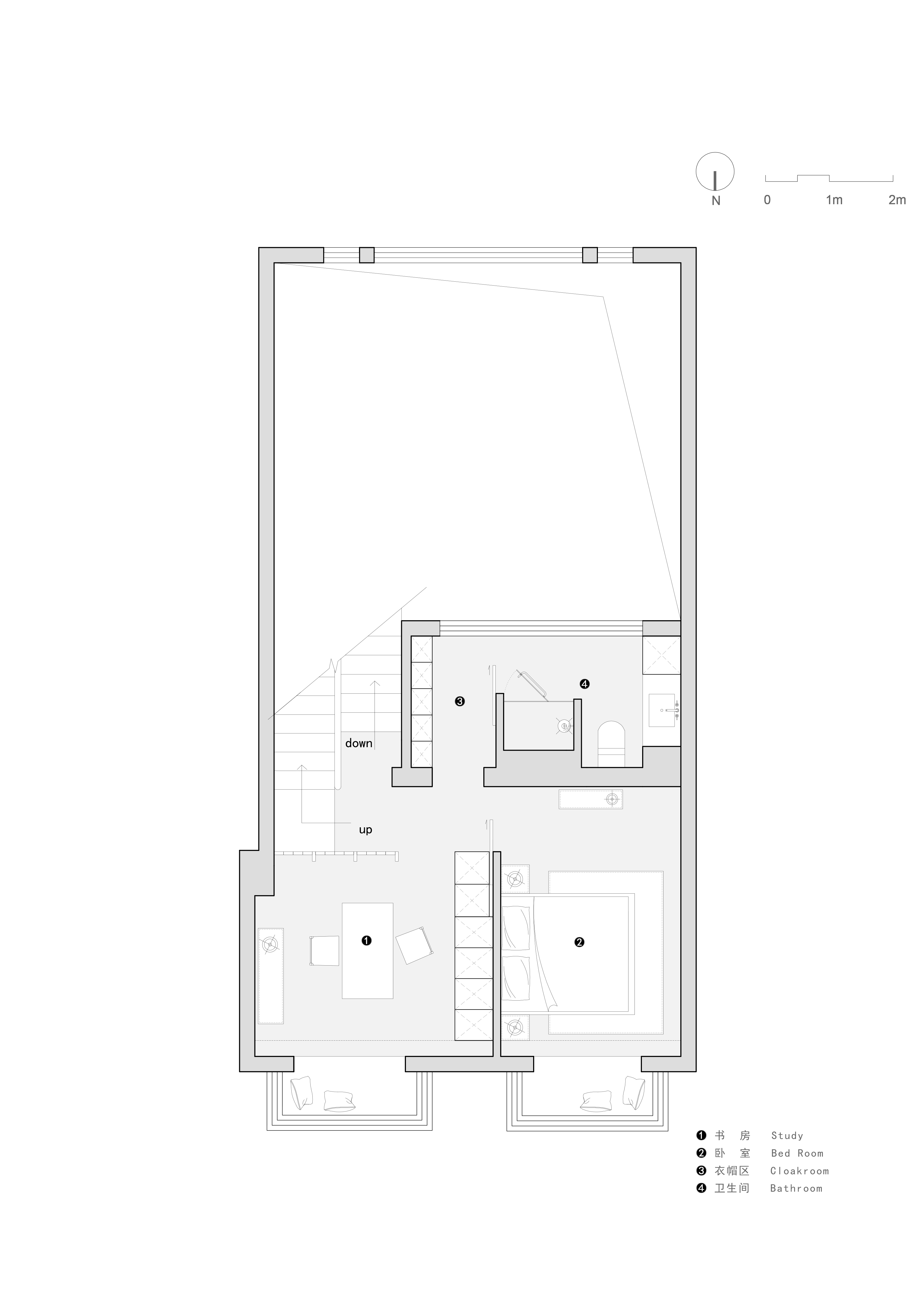
空间布局:空间布局结合了业主的生活方式,我们利用错层的结构完成了和年代的回响对话,也是建筑师对这个家具收藏者的致敬。里面有许多和收藏家具同时代的设计元素。
-
设计选材:我们用了很多复古材料,例如染色橡木(模仿柚木)用来模拟年代属性。
-
用户体验:空间不仅是日常生活的场所,更是思想、文化与情感的汇聚点。在“Resonance”中,空间的每个部分都反映了居住者内心的某种反响或共鸣。从建筑的形式到每一件家具的摆放,从色彩的选择到材质的运用,这些都不单单是设计元素,而是居住者精神和情感的延伸。

