-
项目定位:OOPS!TAPATAPA位于北京市建国门中粮广场C座,是一家以西班牙菜为主的西餐厅。店名中的tapa是一种西班牙的简易而又精致的小吃,为此我们营造了一种轻松且精致热情的就餐环境。
-
空间意境:商场内部由各类餐饮构成,人工照明亮度大且不统一,导致场地入口处光环境混乱,为此我们在入口处打造特有的场域氛围:外墙由简约的深色拱形构成,在视觉上从混杂的环境中脱颖而出;内部绛红色的空间同外侧形成鲜明而强烈的对比,营造出“马德里街头拱形建筑结构下就餐的走廊”,吸引路人步入体验内部空间。
-
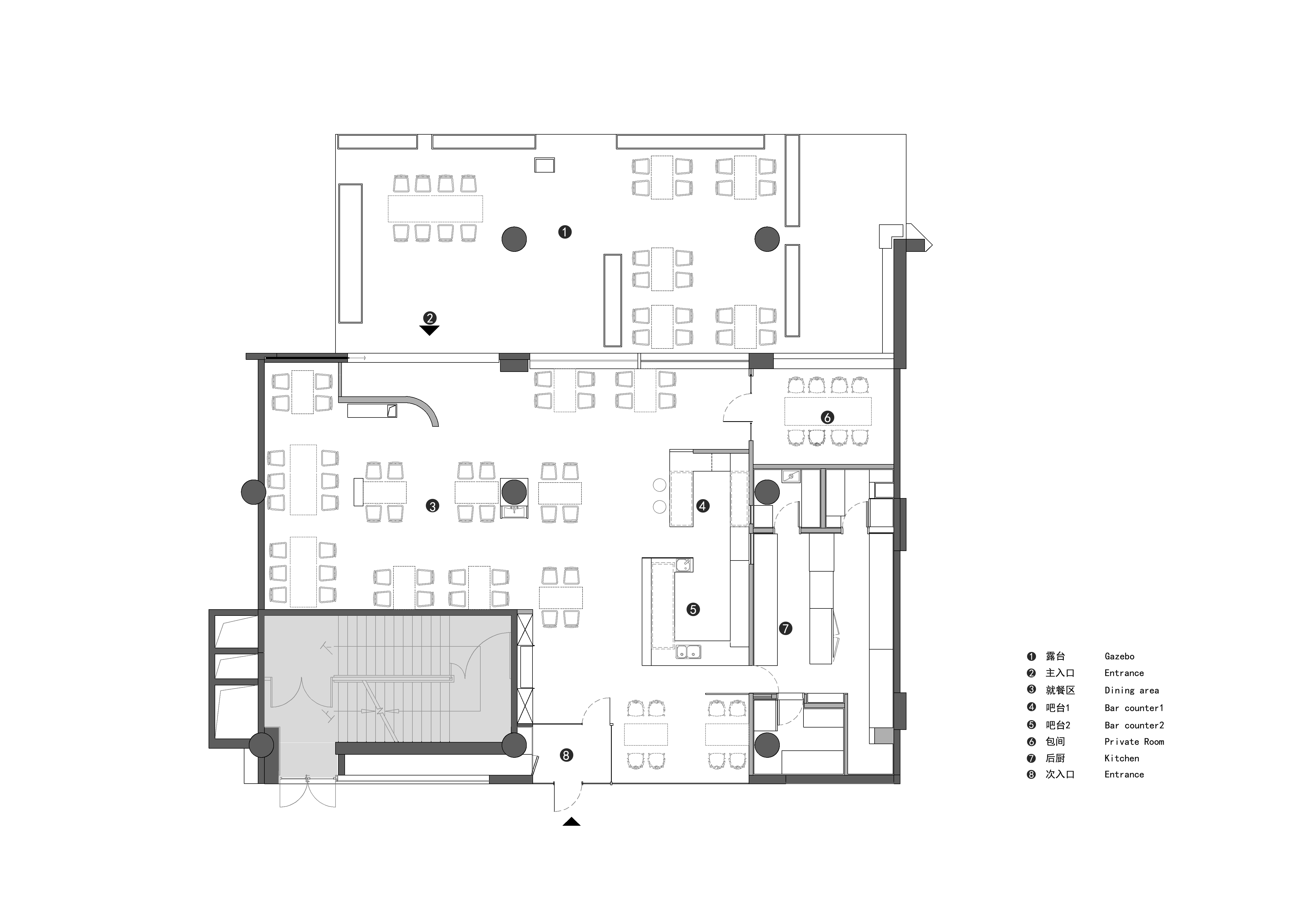
空间布局:室内空间相对方正,我们以场地内现有的结构柱为形态的发生点,由柱至顶形成多层的薄片拱形,对空间进行重组与划分。就餐空间采用较为灵活的设计,没有任何的固定卡座,纯粹通过桌椅的组合来营造微妙的就餐氛围。空间内的主要构筑元素为拱形的薄片,在场地内划分出不同的就餐区域,且每个角度都有自己的构筑组合方式。拱形结构利用了建筑的照明手法,在构筑物的底端增加了辅助照明,以强调出空间内的建筑序列感。
-
设计选材:整体材质部分选用了品牌Logo同绛红色水泥漆、乳胶漆、水磨石地坪,考虑耐久性与后期方便维护。
-
用户体验:oops餐厅,开业1年来已经评为“北京站美食热销榜第三名”。
0
0

认证 · 让您身份增值
277