拾光
396 - 项目类型:住宅公寓
- 项目地点:南京市
- 建筑面积:287.0000㎡
- 项目造价:110.0000万元
- 主案设计师: 周永兴
- 参与设计师:王佳情
- 竣工时间:2024.3
- 设计机构:南京兴瑞空间设计
-
项目定位:生活承载着时光的流逝,空间承载着生活的过去,光线承载着空间的生命力。空间的生命力体现了房屋主人的意志,也是未来多年屋主对于美好生活的期待与憧憬。房主因工作等原因,比较随性,喜欢复古和质朴的事物,也可以接受新的创新思路与之结合。
-
空间意境:整体空间还原生态质感,使用藤编,木质,棉麻等接近自然纹理质感的家具,传达出质朴中显贵气的原生态质感。简洁质朴的设计元素,没有华丽的装饰和过多的细节,从简单中寻求美感和平衡。装饰物表面纹理颜色和质感看似未经加工,营造岁月感。
-
空间布局:空间布局自然随性,打破传统的空间理念,在满足日常生活需求的基础上,突出非对称的空间感。
-
设计选材:一楼空间墙面直接用底层粉刷石膏作为面层,利用材质原本的颜色和肌理感来呈现,体现经济性的同时凸显风格。
-
用户体验:空间整体的风格和功能分布均按用户需求来开展,最终落地也达到用户需求。入住后的体验也验证了我们的一些设计建议,整个空间的互通、通透性和采光获得了用户的肯定,也更有利于生活的便利性。同时大空间也有利于孩子的室内活动。
客厅色彩以大地色,高级灰,米色,棕色,营造纯净质朴的氛围感。充满肌理感的墙面更是凸显一种朴素美。
电视背景墙用隐藏式投影幕布代替电视,使背景墙更为整体干净。圆弧壁炉造型弱化直角阳角的尖锐的同时,也增加了空间储物和美观。透过弧形门洞看到洗手台盆,色调与空间统一。
装饰壁炉的氛围使得空间更加柔和温暖。
橙色的家具与火焰搭配绿植,给家居生活增添热情与生机。沙发背景灯带增加照明的同时也丰富背景造型,增强灯光氛围。
沙发与地毯颜色相搭配,橙色与米色的搭配,和谐统一。
用木饰面装饰承重柱,弱化承重柱在空间的阻隔,使得柱子作为一种装饰在空间出现。灯光的穿插增加了空间的层次感和氛围感。
用拱形和弧形增强视觉通透性,让空间有柔和优雅的美感。墙面装饰画的氛围与空间整体感觉相呼应。
整体空间还原生态质感,使用藤编,木质,棉麻等接近自然纹理质感的家具,传达出质朴中显贵气的原生态质感。
空间布局自然随性,打破传统的空间理念,在满足日常生活需求的基础上,突出非对称的空间感。
餐厨空间同样灵活贯通,没有严格的界限,可根据屋主的生活需求与情绪调整位置。餐厅空间增了操作台和储物柜,使功能更加多样化。
整体宁静的色调下也不乏色彩的相互碰撞。
充足的自然光线足够温暖空间,营造宁静的氛围。
通透的空间感以最大程度引入光线。
开放式厨房的设计体现业主自由意志,灵活多变,满足空间使用要求。中导台不固定位置,也可作为吧台使用。柜门的造型采用一体式凸起拉手作为装饰,呼应整体风格。预留的吊装轨道移门槽,满足业主多样化需求。
站在开放式厨房空间,一层空间尽收眼底。木质楼梯增加空间温馨感。饰物表面纹理颜色和质感看似未经加工,营造岁月感。
简洁质朴的设计元素,没有华丽的装饰和过多的细节,从简单中寻求美感和平衡。
三层隔层设置储物空间,从而更有效地利用一二层空间。对过道的扩宽使得过道更为通透明亮。
走廊空间通过局部抬高的方式增加空间层次感,呼应顶面贯通灯带,同时形成休闲空间。墙面顶面大面积留白,增加空间感的同时也区分一二层氛围营造。
整个主卧空间平衡和谐,没有过多装饰,从而使身心放松。通过楼梯一体柜可进入三层主卧衣帽间,增加空间利用率。
卫生间满足业主对浴缸和淋雨共有需求。整个空间宁静和谐,木纹色搭配高级灰。
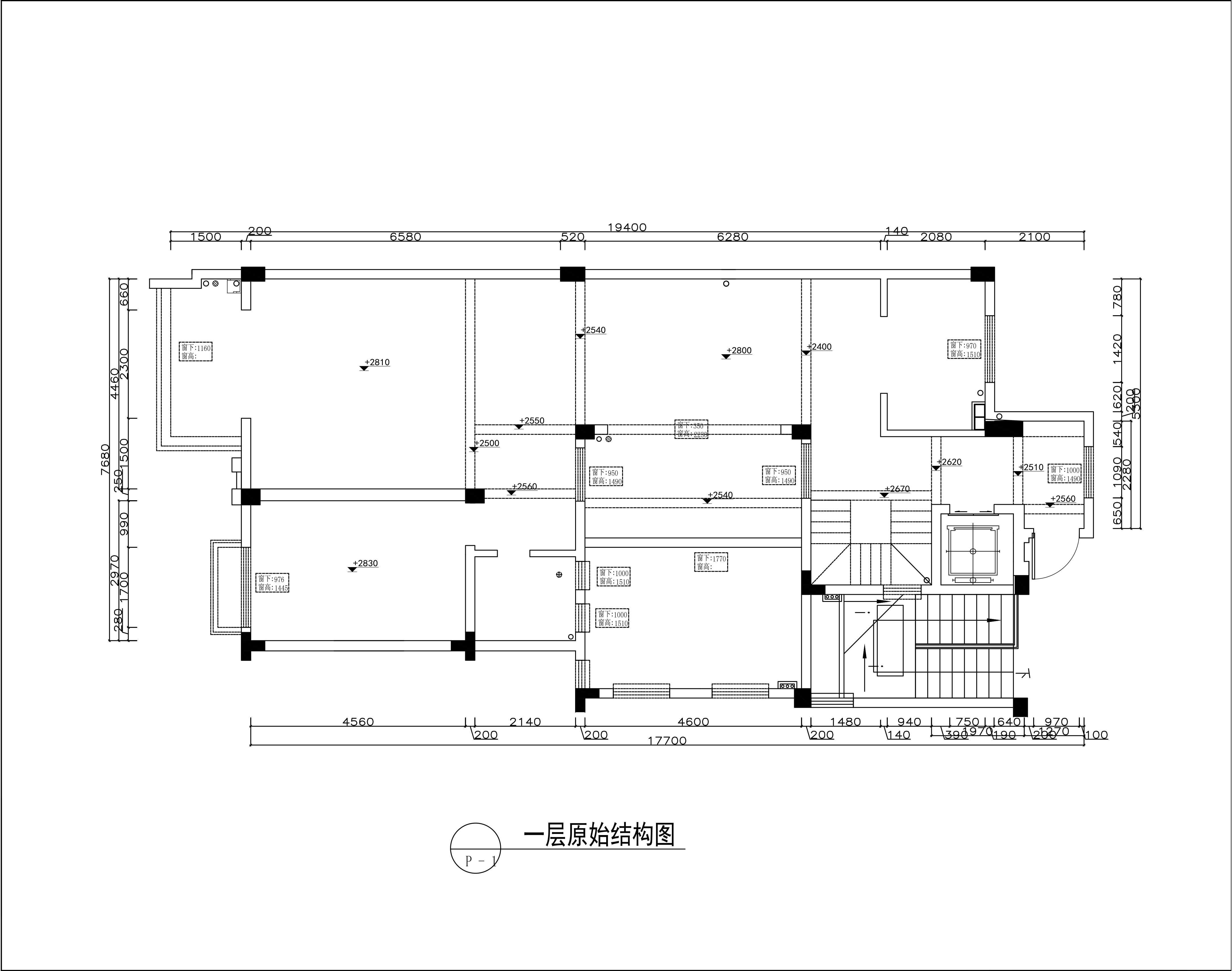
此图为一层原始结构图,原结构各空间互相区分,联系较少,空间通透性和采光不够。
拆掉多余墙体,整合空间。客餐厅,厨房过道既互相区分又互相联系,更为开放的空间使得视觉通透性和采光更强。
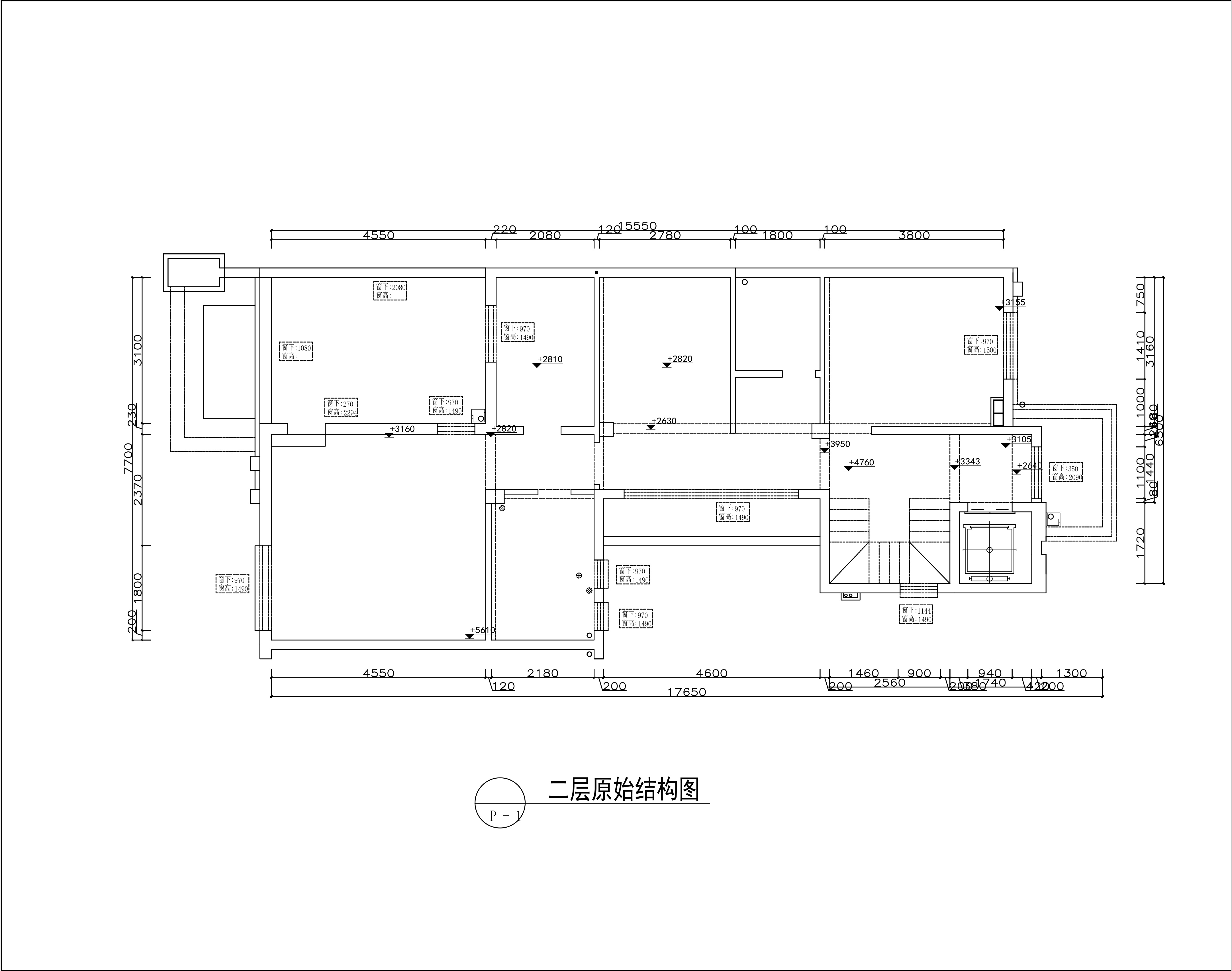
此图为二层原始结构图,原结构各区域区分开,过道较为狭长。
房间空间相对独立,保证隐私性。扩宽过道,增加过道区域休闲区,同时弱化的过道的狭长,视觉上更加通透,过道空间更加明亮。通往露台过道恢复常规尺寸,增加儿童房空间尺寸,主卧和楼梯区域增加隔层,分别用于衣帽间和储物间。主卧衣帽间通过楼梯柜上去,合计利用每个空间。
0
0

认证 · 让您身份增值