多样人生



- 项目类型:别墅
- 项目地点:上海市
- 建筑面积:300.0000㎡
- 项目造价:180.0000万元
- 主案设计师: 周永兴
- 参与设计师:王佳情
- 竣工时间:2022-01-06
- 设计机构:南京兴瑞空间设计有限公司
-
项目定位:不同楼层不同风格,满足业主对不同风格的需求
-
空间意境:复古与现代的碰撞
-
空间布局:可分割可融合的空间布局
-
设计选材:经济与效果的平衡。大面采用环保油漆,地下室局部采用木塑防水环保材料。
-
用户体验:满足生活需求却不失格调
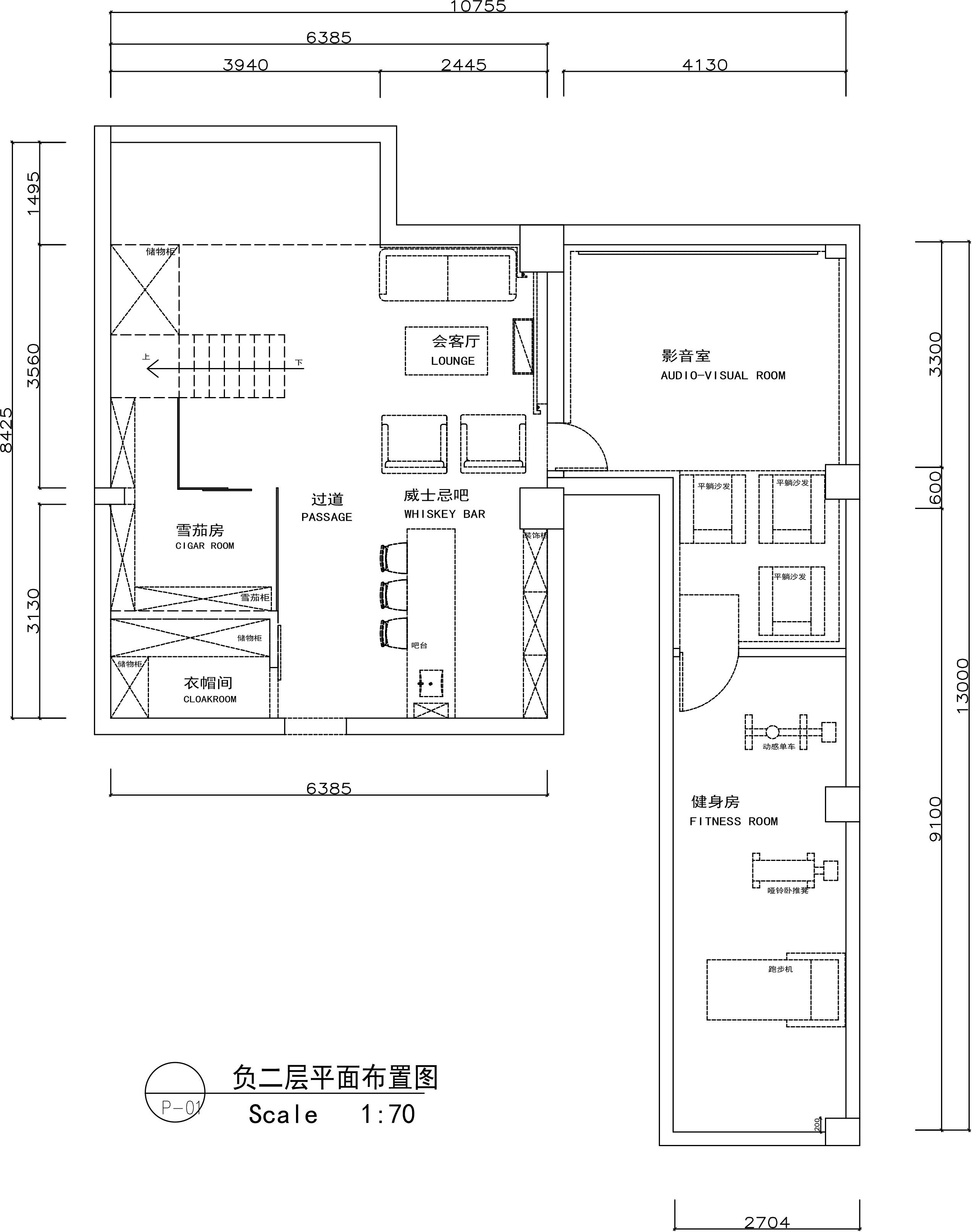
丰富多彩的人生是大部分人所向往的,不限定于一种职业,不固定于一种性格,不止步于一项成就,丰富的经历铸造多样的人生。这也许就是我对于我这个项目业主的理解。从而推进了一个风格多样的设计案例。 业主作为一名民航飞行员,每天奔波于世界各地,对于所达之处的风土人情也是接触颇多,遍考虑把自己喜欢的文化融入自己的别墅之内。通过一遍一遍的沟通,最终决定让每一层都拥有一种风格。 业主喜欢威士忌,喜欢雪茄,自己也开了家威士忌行政酒廊,便想着把威士忌吧的感觉直接搬到家里来,那么负二层便成为我们选择的楼层。同时负二层还要满足影音室,健身房,雪茄房,储物间,会客厅的功能。负一层要满足设备间,棋牌室兼餐厅的功能。
步入负二楼入户门,左手边我们安排为入户衣帽间,因为业主的职业,考虑到进家第一件事情就是行李有地方放,同时不用搬到楼上放置。外套等衣物以及未来孩子出行所需的推车等物品都可以放置在这。 进门右手边则是雪茄威士忌吧的位置,因为负二楼有挑高空间,所以有隔层的区域便成为我们考虑的地方。整体风格为美式风格,同时结合现代元素,让复古和现代做一个融合。保加利亚灰的石材透露出深咖色的色调,与红橡色的木色交相呼应,形成业主所喜欢的一种沉稳的威士忌吧氛围。同时石材的质感和吧台直线条与带有美式装饰线条木饰面形成对比,酒柜也用现代方式体现复古拱形酒窖形式。空间的射灯与灯带搭配增加空间氛围,增加业主在威士忌吧体验感。
挑高区域为会客区,地面的铺装把会客区和过道做了区分,选用美式地板砖,与美式皮沙发和茶几搭配。挑高的背景墙主要利用红橡色木饰面搭配灰色石材,穿插车刻镜子,增加质感的同时也增加空间感。石材背景上考虑鹿头和壁炉做装饰,马鹿的应用既象征人生的多种可能,也呼应了复古的氛围。吊顶的木饰面与墙地面相呼应,营造整体美式氛围。背景墙后面有影音室和健身房空间,考虑不破坏背景墙的完整性,应用隐形门设计。
雪茄房则取代了雪茄柜和红酒柜,增加了储存空间,也丰富了空间的功能性。雪茄房区域与吧台对望,既满足业主方便放取雪茄,同时也可以利用楼梯下方区域,与隔层下方连成一个整体,大面积玻璃封闭,既可以有展示作用,也可以起到很好的保温性。楼梯下方另一边则作为储物空间,用美式的柜门遮蔽,与左边的雪茄房区域形成非对称感。 负二层楼梯为三向楼梯,采用对称式手法,满足一个楼梯既可以上负一层,也可以上采光井平台,同时也可以下负二层。舍去现浇过道平台去往采光井平台,增加挑高空间面积,也使空间更加通透。楼梯采用保加利亚灰石材,与楼上楼梯颜色形成区别,突出地下空间特有风格,搭配无框玻璃,与背景的美式木饰面形成对比,增加视觉冲击感。
通过隐形门便进入影音室,影音室通过与会客厅相似的木纹色调来做整体色调,地台的设计增加视觉高度的同时也可以尽可能增加观看排数,从而做到前排不挡后排视线。整个空间也通过墙面的吸音板与地面的地毯起到吸音的功能。
穿过影音室,来到健身房。健身房作为一种更加阳光,健康的空间,色调更加亲近自然,原木色的地面与墙面装饰,带给人一种舒适的感觉。墙面的镜子起到增加空间感的同时,也可以给业主带来时刻看到自己锻炼成果的功能。
负一楼作为一个地下空间隔层,那么空间的层高是相对首限制的,所以考虑作为棋牌室兼大餐厅,也就是家里来客人就餐的情况下作为大餐厅满足就餐。整体的空间风格为民国风格,通过家具和门的样式来营造氛围,同时也和负二楼美式空间营造出整体的色调。因为项目每层面积相对不大,所以无框玻璃扶手的应用则是增加空间视觉开阔性,减少阻隔,增加负一和负二的相关性,同时穿插现代元素,增加时尚感,也与一楼的现代风格相呼应。
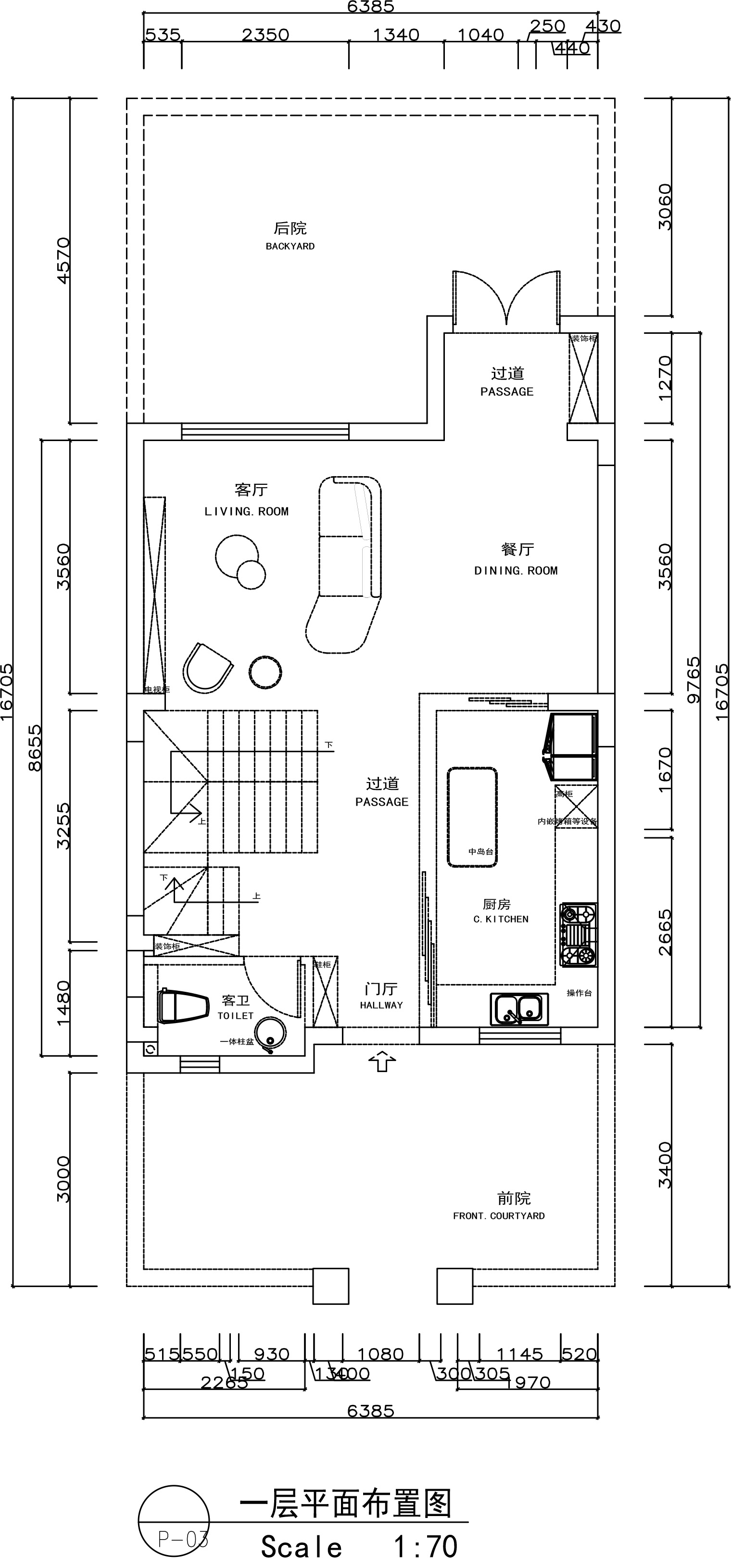
一层作为业主日常生活的重要楼层,同样体现业主对空间的需求。一层空间分为客厅,餐厅,厨房和卫生间。客厅作为一层休闲会客区域,格调的营造必不可少。黑白石材的对比,金属皮革玻璃的穿插,木材和布艺的平衡,无不体现空间的精致感,低调而不失内涵。
餐厅与客厅共同安排在南边的位置,形成一个南向双开间的休闲就餐空间。应用爵士白石材搭配木饰面,呼应电视背景配色,通过背景造型的区别丰富空间表现力
厨房空间打破原有封闭的姿态,形成一个开放式的形式。但考虑到纯开放式厨房存在油烟问题,所以我们配备了双向的L 型移门,做到可开放可封闭的厨房空间。打开移门则是一个开放式西厨空间,岛台放置于厨房中间,既满足三两人就餐,也可以作为中西餐操作台。厨房白色的台面以及吊柜搭配木色柜门及木饰面,形成色彩对比,暗色调突出台面线条感,与顶面线性灯相呼应。
负一层以上楼梯全部采用云朵拉灰石材,暖灰色石材搭配无框玻璃,形成一道连通楼上下的主线。错位的楼梯设计初步考虑到负一层使用空间的规整性以及空间的最大利用,同时有意增加空间的贯通,使地下空间得到更多的通风和采光。同时也增加空间视觉贯通,负二层可以看到一层,一层可以看到负二层,增强不同楼层的家庭成员联系。同时不同风格空间之间的相互碰撞,相互成就,使得每一种风格在各自的对比下尤为明显。
整体空间风格为现代风格,主要通过明暗对比,冷暖对比考虑空间色调,搭配金属石材等轻奢元素,增加空间质感,营造高品质生活空间。黑白灰作为主色调,搭配暖色软装,冷酷又不失温馨。灯光采用无主灯设计,灯带与线性灯的应用增加空间的照明氛围的同时也增加了空间的简约感。
二层空间分为父母房,小孩房,书房和卫生间。作为相对私密的居住空间,每个空间则相互独立。整体以原木色和白色为主,主要营造空间的温馨与舒适感。
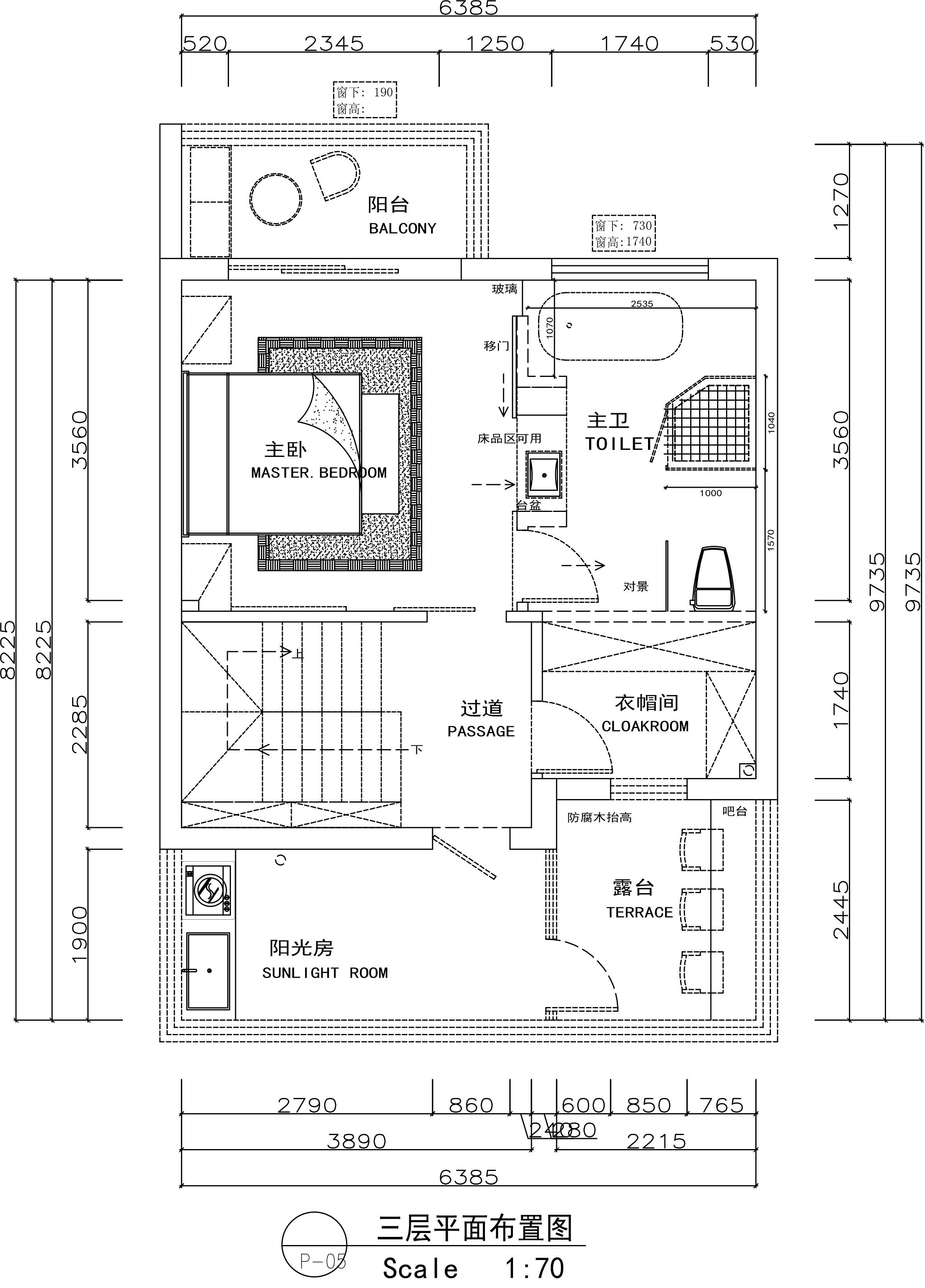
三层空间为主卧空间,搭配南阳台和北露台。主卧空间分为床品区,卫生间和衣帽间。空间整体为现代极简风格,简约的直线条穿插整个空间。木饰面与白色乳胶漆的搭配增加空间层次感,卫生间台盆双面可用,无论在床品区还是卫生间内部都可使用,通过同木色移门可对台盆区域空档进行覆盖,避免房主在睡觉时床品区与卫生间互通。同时台盆区域木制移门背后配备了嵌入式镜子,移门关上的同时,在卫生间使用台盆也可以有镜子能用。吊顶则采用人字型方式,搭配灯带的无主灯设计,简约的同时也增加空间体量感。
整个房屋还配备了南北院子,南院子整体为原生院子,自然造型的水池和花卉区域,搭配休闲座椅平台,营造出自然的庭院生活气息。
负二层平面图
负一层平面图
一层平面图
二层平面图
三层平面图

