舒享空间


- 项目类型:住宅公寓
- 项目地点:南京市
- 建筑面积:270.0000㎡
- 项目造价:100.0000万元
- 主案设计师: 周永兴
- 参与设计师:王佳情
- 竣工时间:2024.4
- 设计机构:南京兴瑞空间设计
-
项目定位:坚持以人为中心,扩大空间感,增加人在空间的活动范围,增大人在空间中的视觉范围,提升人在空间中的舒适感。
-
空间意境:整体感十足的现代风格,局部曲线与直线的对比,柔美与刚硬的对比。空间的尺寸感衬托简洁大方的设计风格,柔和的色调增加空间舒适感。
-
空间布局:空间既相互独立,又相互联系。突出大空间的尺度感和视觉感,以及不同区域墙面造型和颜色的延伸感。楼梯既为空间功能服务,也因造型设计为空间美学服务。
-
设计选材:选材环保,木材均为ENF级环保材料。墙面采用微水泥,既环保又耐用。
-
用户体验:动线以楼梯为中心,向四周发散。以人的实际生活体验为本,业主对于楼梯的造型和四周的布局及使用比较满意,对整个空间的视觉通过感和色彩搭配比较满意。以为客人到家里做客交流打下坚实基础。
坚持以人为中心,扩大空间,增加人在空间的活动范围,增大人在空间中的视觉范围,提升人在空间中的舒适感。
客厅以白色,原木色为主,营造纯净简洁的氛围感。
棕色的家具与整体统一,给空间增加舒适感觉。
转角的弧形线条增加空间的柔和感,在直线映衬下更为生动,同时在儿童活动空间中更为安全。敞开空间增强视觉通透性,舒放心灵。
西厨不仅是一个烹饪空间,也是一个休闲空间,作为这样一个舒适大空间来说,我们也根据业主需求把西厨作为一个非常重要交流空间来设计。
中岛台面采用白色岩板,立面搭配原木色饰面。高柜实现储物的同时,也实用玻璃门板装饰,使空间更为精致。
楼梯作为整个空间的中心位置,不仅需要强化功能体验,还需要重视美感呈现。照明方面使用感应式踏步灯带,增加灯光氛围。
楼梯运用钢结构制作,可更加灵活塑造楼梯造型,下方悬空,有悬浮感,搭配超白玻璃扶手,增加通透性。利用楼梯下方开敞空间设计曲线壁炉造型,增加设计感的同时也让空间更有温度,使人与人在空间的交互更加生动。
楼梯运用传统u型,以人使用楼梯的舒适感为主
白色的岩板踏步,与空间整体色调相统一。
儿童区域作为半开放空间与会客厅及西厨相邻,在大人休闲的同时也可以清楚的观察孩子的动向。儿童空间可作为孩子玩耍,看书,学习,弹琴来使用,是一个灵活多边的空间。圆柱体柱子和储物柜的几何造型搭配,增加儿童空间的趣味性。
通过楼梯进入书房区域,整体色调与会客厅呼应统一。
书房为半开放空间,相对隐私的同时,增加空间的互通,给人带来更好情绪价值。
卫生间与书房相邻,采用隐形门的形式进入,从外部看不影响整体美观。一体台盆的设计搭配灯光,更具质感。入墙式龙头增加高级感的同时,也方便台面清洗。
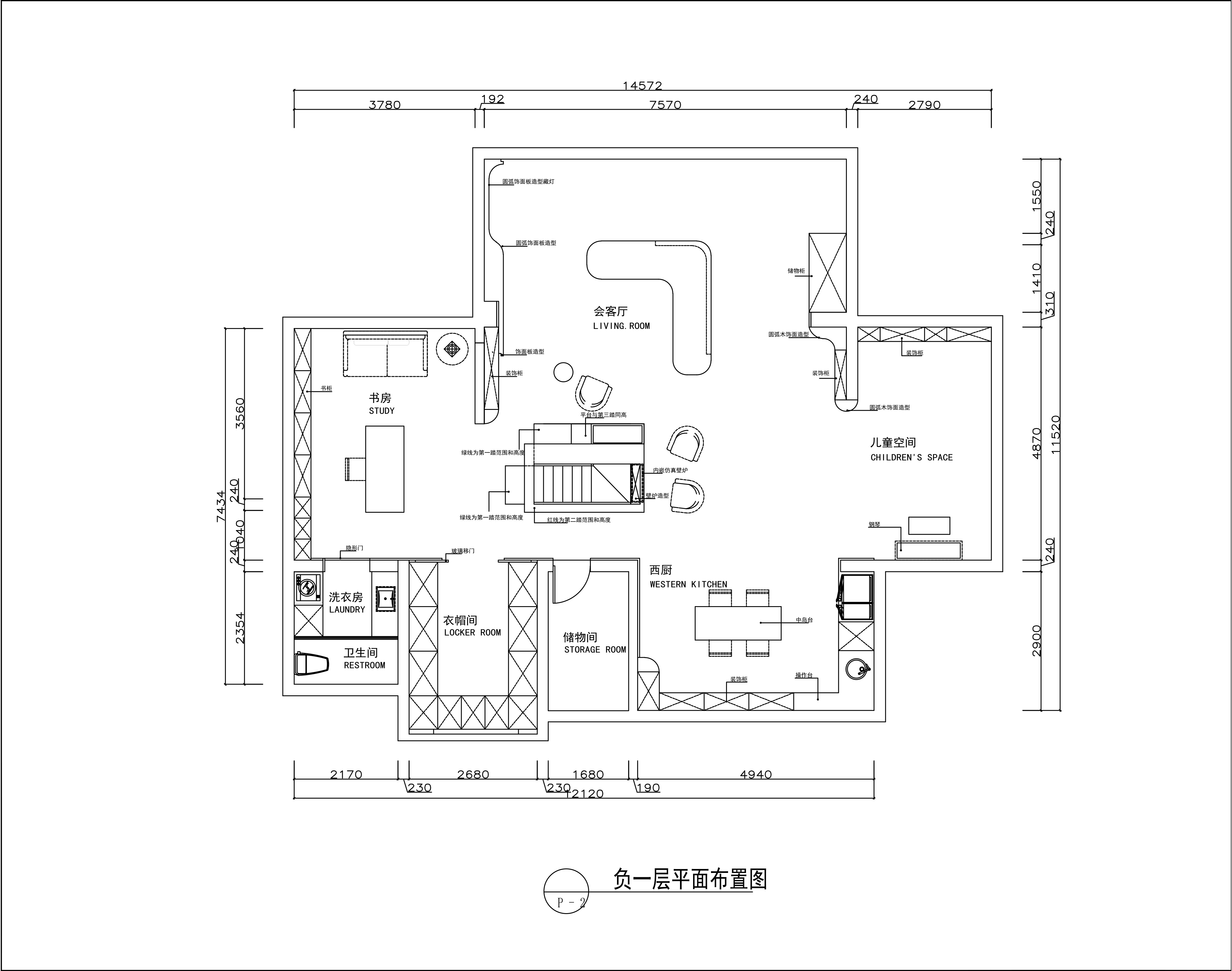
负一楼原始空间隔墙较多,空间比较分散,空间通透性和交互性较弱。
打掉不需要的墙体,不同空间交互相通,增加视觉通透性。功能分区既独立存在,又相互联系。
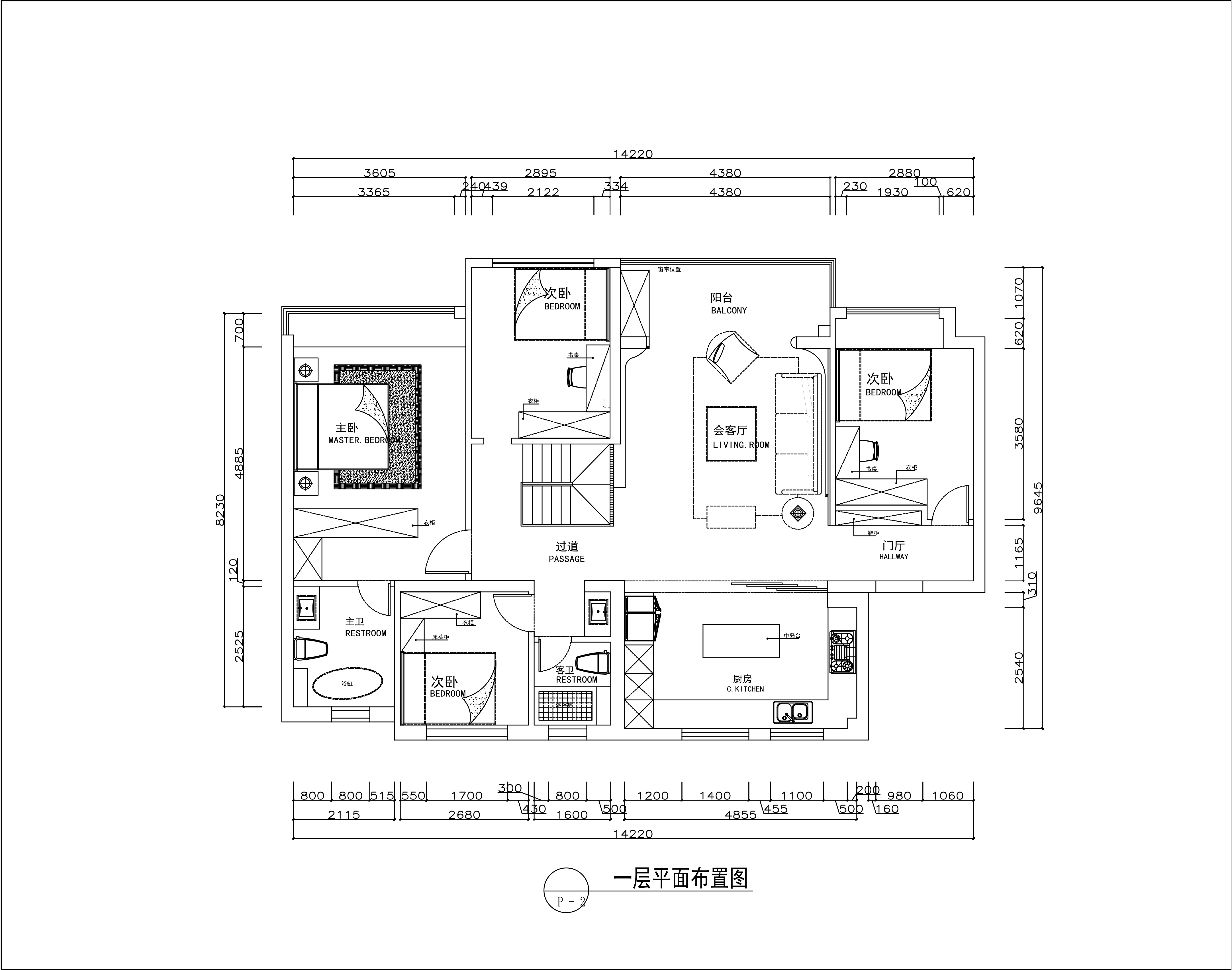
一楼原始结构分割明确,客餐厅互通。
因为一楼空间有房间数量需求,所以原始结构均保留,每个空间较为独立,功能完善,满足需求。客餐厅视觉通透感较强。

