执物者



作品说明
- 项目类型:住宅公寓
- 项目地点:宁波市
- 建筑面积:100.0000㎡
- 项目造价:70.0000万元
- 参与设计师:周晴峰
- 竣工时间:2024.04
- 设计机构:宁波山与空间设计有限公司
-
项目定位:一个项目的设计呈现是需要客人与设计师共同深度交流的策划结果。我们将人文高于常规设定。通过设计手段,诠释客人对生活的态度,对家的向往。
-
空间意境:打破传统风格缺少的多元化,接收客人原有的家具带来的不确定因素,将这一切打散,揉合。整个空间不定义固定风格,它可以是混搭的,即便进去的你我,也可能是很不错的软装。
-
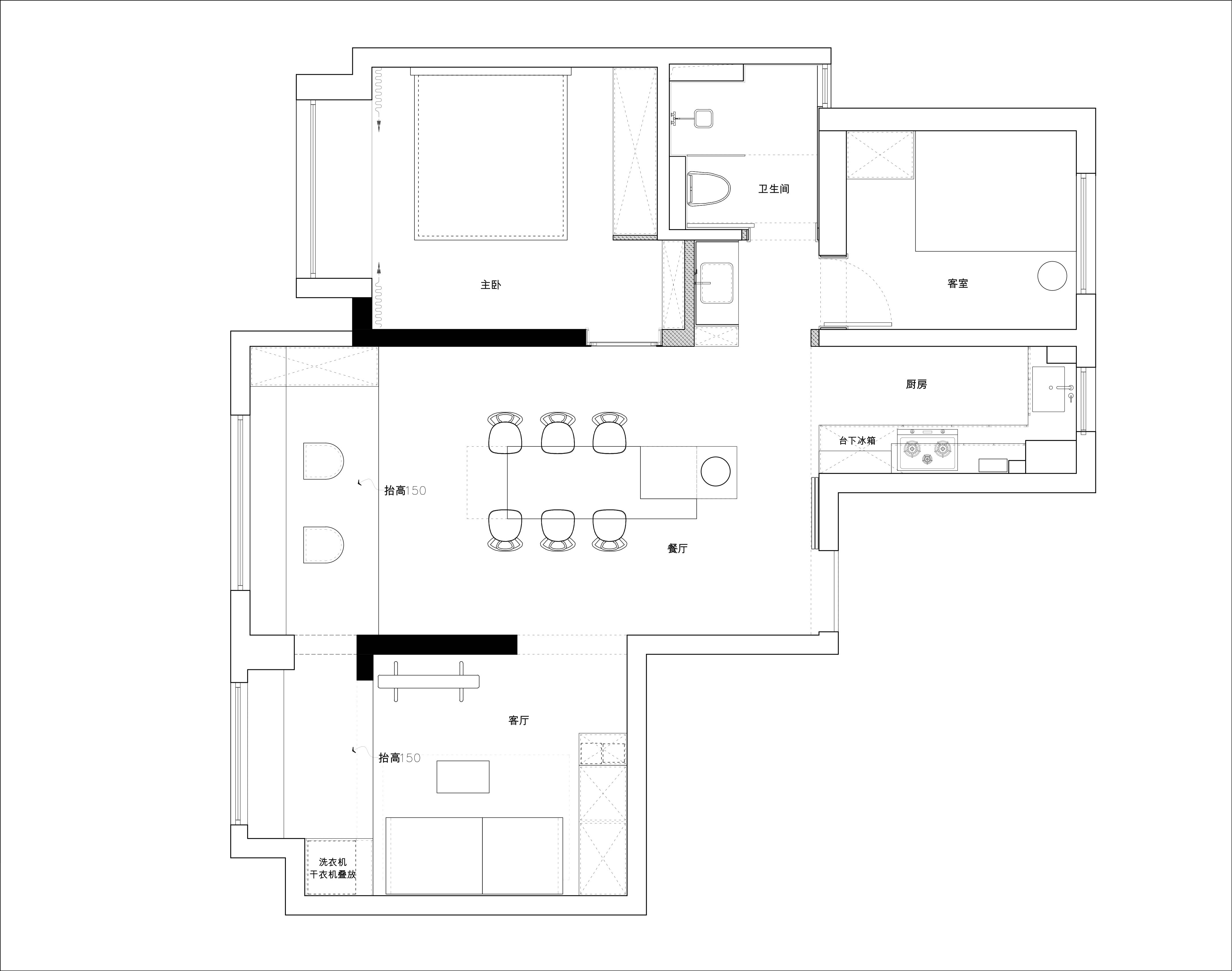
空间布局:原空间本没有阳台,通过部分抬高的做法,丰富了空间布局的同时,串联两个独立空间的互动感。用黑色木饰面,让增加的空间有自己独有风格,感受房子里的盒子带来的魅力。
-
设计选材:墙面选用了微沃艺术涂料,打破了传统涂料的应用界限,原料不是市面上常规的碳酸钙,而是硬度和耐抗性高千倍的石英,真正实现一体化的空间应用。
-
用户体验:在满足空间需求之上,打破固向装修风格的思维,感受色彩、材质等融合带来的新鲜感。从老物件与新物件的结合,从家出发,爱上生活。

