-
项目定位:打造园林艺术的然风格,把园林风光引入室内,相映成彰。
-
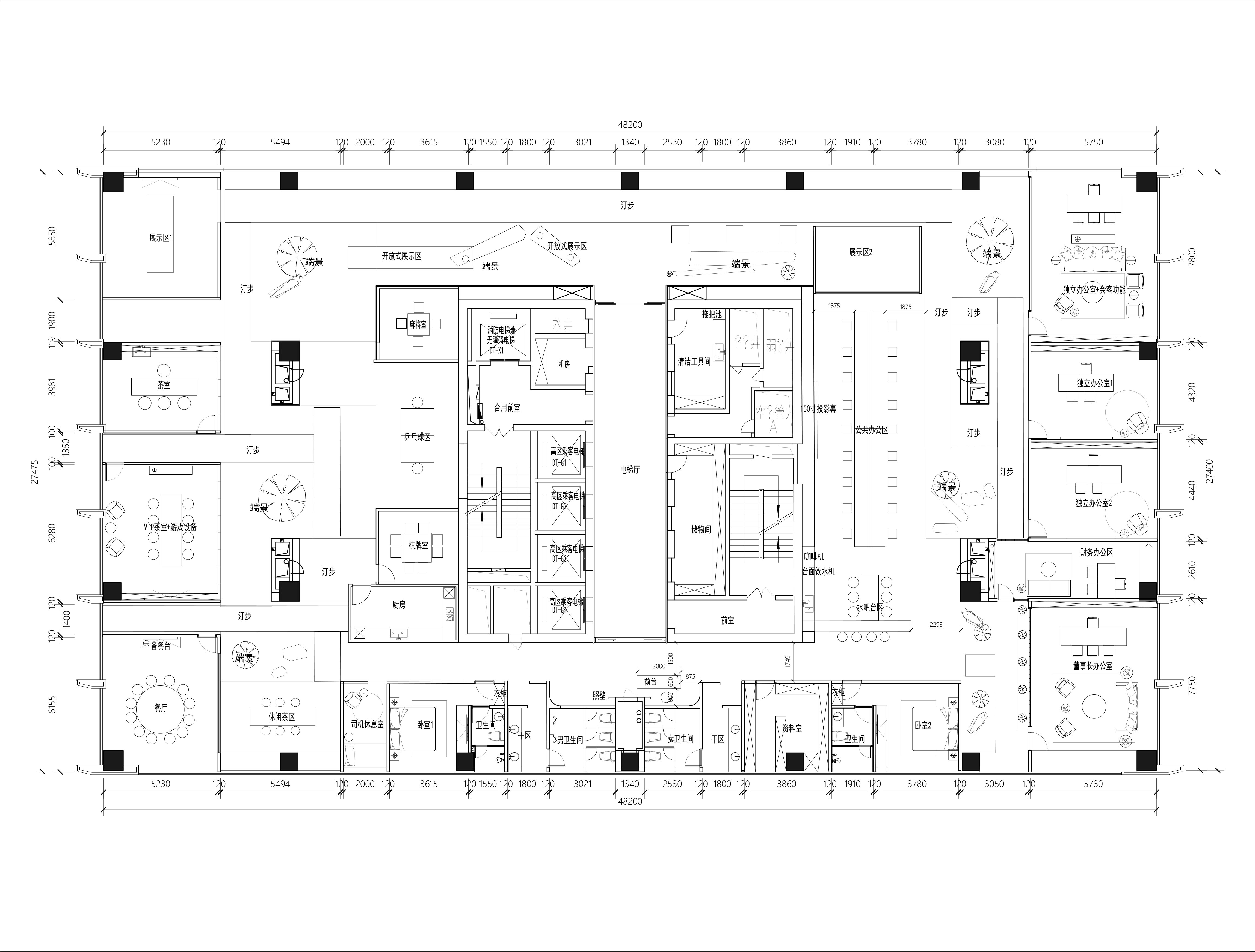
空间意境:园林是自然的艺术,向来也是内心世界的一种精神投射。振铎路东北,凭借场地的景观优势,整层的尺度为“园林”的置入提供了可能。
-
空间布局:由入口开始,立面形态、表皮与氛围的营造,建构了不同情境的序厅。由原木截面所构成的局部“景观”,其平滑的触感与粗粝的原始表皮,形成有机的反差,呈现自然的另一种形态与风貌。
-
设计选材:全屋的材料使用老石板,木地板,大理石(西班牙米黄),瓷砖,艺术漆,玻璃砖,通电雾化玻璃,木饰面,最为特别的就是老石板,以原始的自然形态呈现,与自然并存。
-
用户体验:非常不错,感觉在办公室办公和坐在园林里一样。心情和身心健康都得到了满足。

