齐长城清川上



作品说明
- 项目类型:酒店
- 项目地点:淄博市
- 建筑面积:2501.0000㎡
- 项目造价:128.0000万元
- 参与设计师:陈辉
- 竣工时间:2023年2月
- 设计机构:十上(福州)空间设计有限公司
-
项目定位:齐长城清川上立于海拔800米崖壁上,如空中方舟,也似夜航灯塔。繁复的城市生活训练出我们娴熟的水平视角,在平面中迁移,出发与抵达。而置身荒野山峰,一种攀爬的本能带来层层递进的垂直世界观,从天空到地心。历史堆叠于此,五亿年前的奥陶纪岩层中凝结出古代海洋生物的美丽化石,千年崖柏的根系依旧遒劲,牢牢吸附着岩壁生长,还有齐长城清川上露出新生的表情,带着崖壁的高度与洞穴的深度。
-
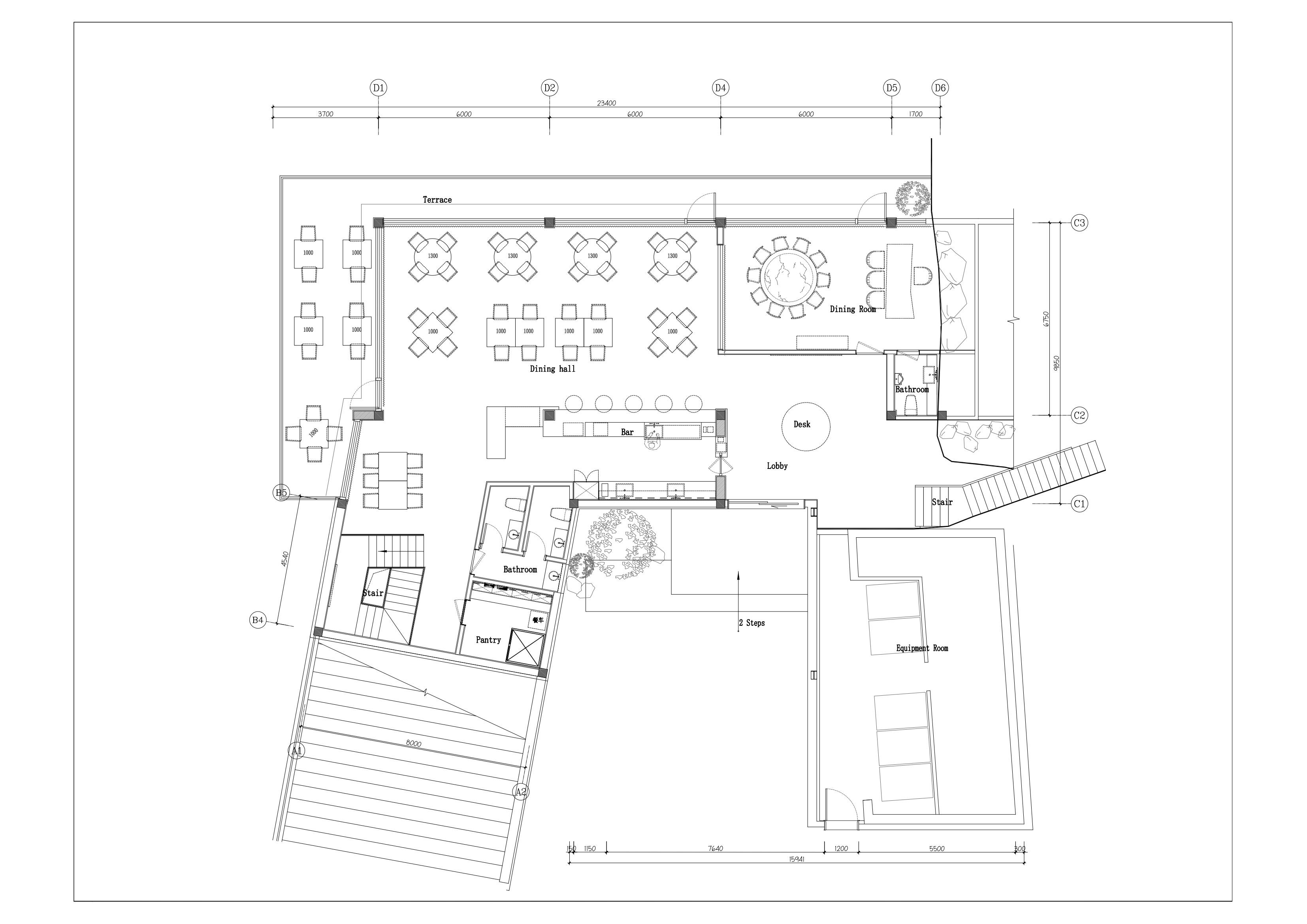
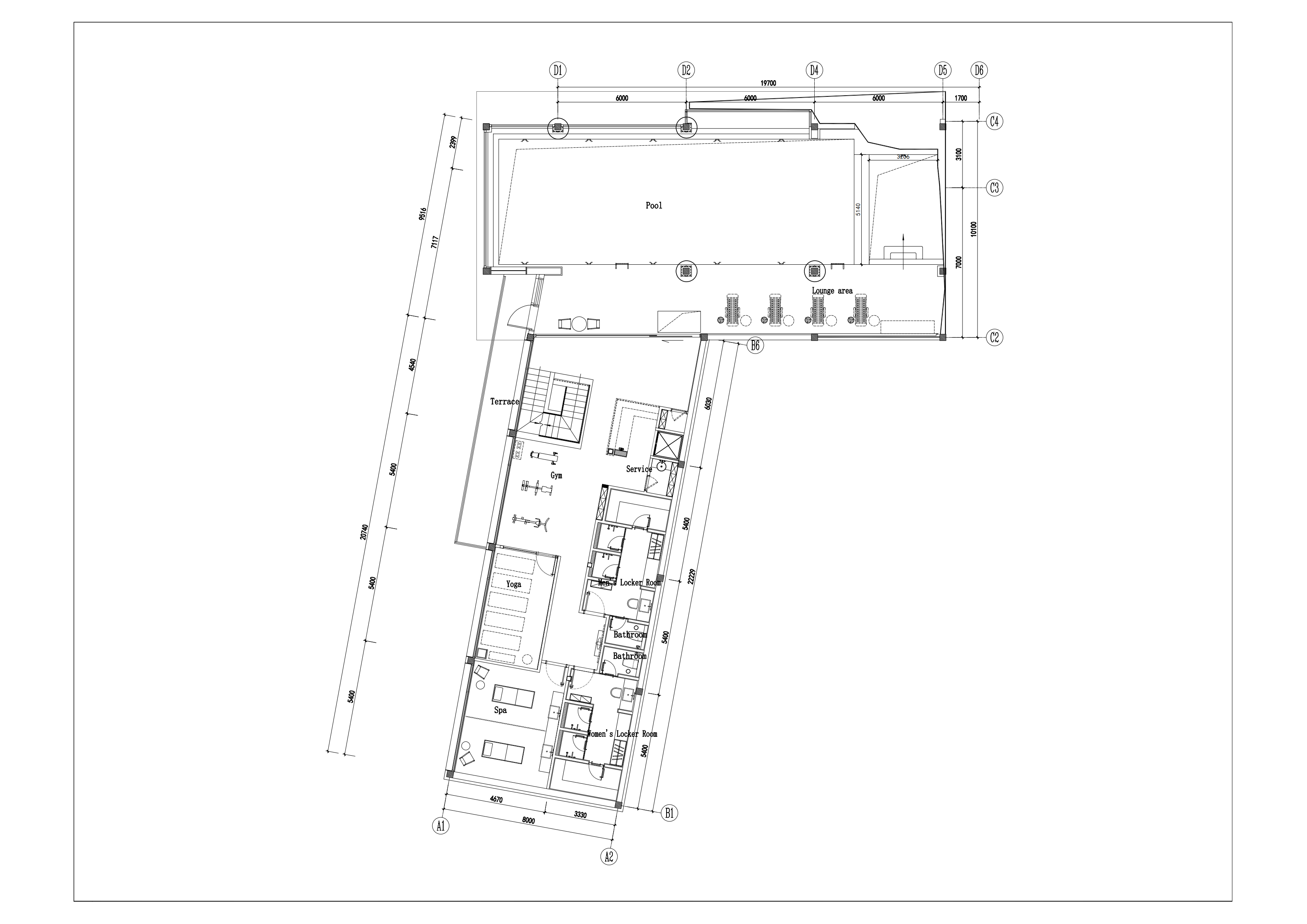
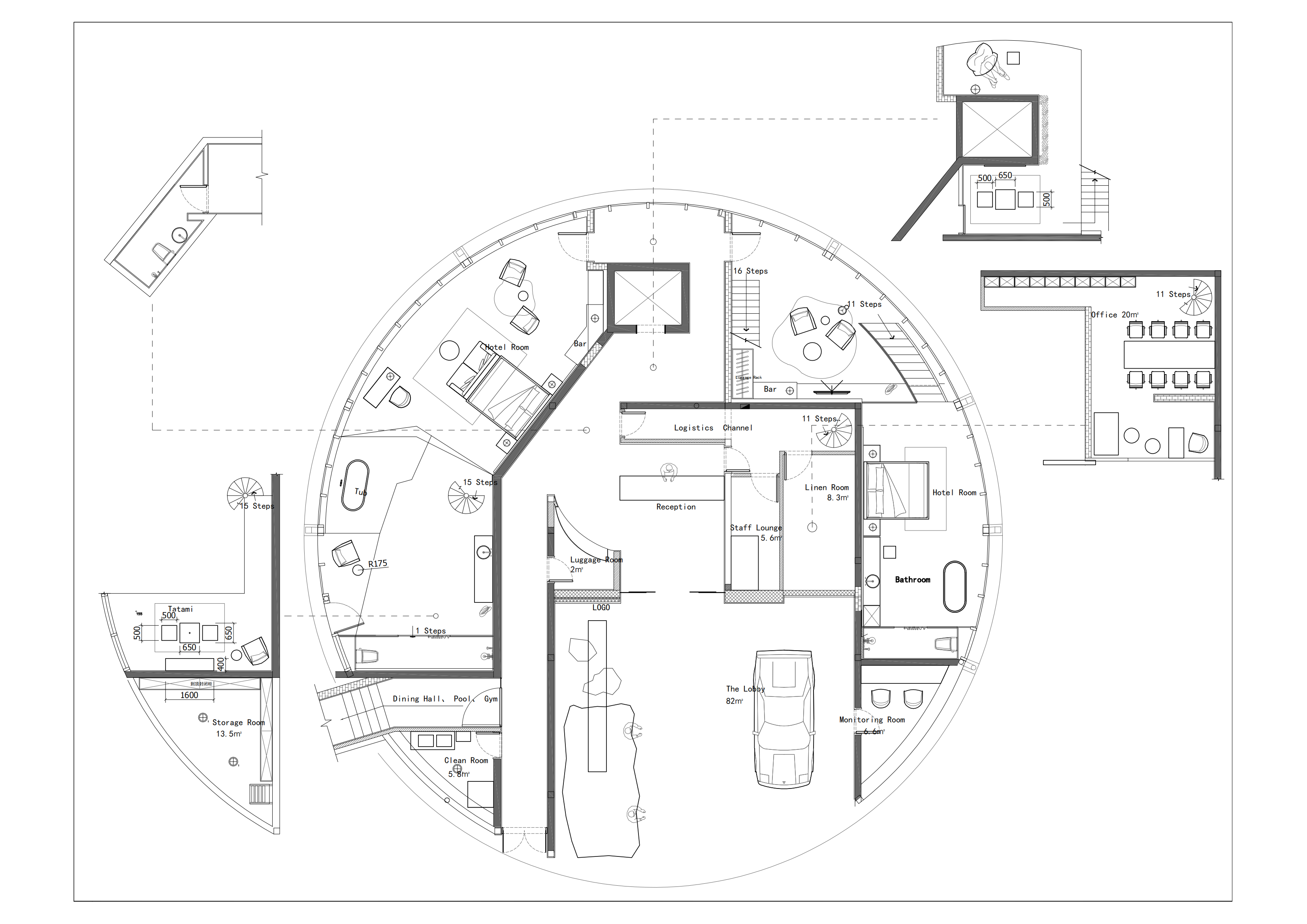
空间意境:崖壁酒店生长于海拔800米崖壁之中,是地质造山运动的一部分,也是崖壁岩体的有机延伸。整个空间设计攀附天然崖壁而建,环状半围合的建筑立面以崖壁灯塔式建筑形态作为与外界的接口,连接着古老的山岳文明与通往未来的生活方式。从外观上看,齐长城清川上宛如从一面巨大的岩石中爆裂开来,金属与玻璃勾勒出清晰的骨架,简明、克制,令人信赖。裸露的岩层与建筑之间相互支撑,完成了一次美妙的连结,顶部则设计为标准的停机坪,不断与天空呼应。
-
空间布局:齐长城清川上由洞穴酒店、崖壁酒店、高空酒店、矿坑酒店、森林木屋和穆野崖壁餐厅共同组成,通过对山林地层的垂直探索,纵贯时间连接空间,调动全新视角构建多维居住度假体验。远方即大地,我们以此为原点,深入大地之心,凝望远古,感知未来。
-
设计选材:设计作品上我们选择环保的新型材料与悬崖之上天然岩石相结合打造出。
-
用户体验:回到多年未归的家乡,听说淄博开了一家质量过硬的野奢酒店,好奇之余便体验了两晚,一切都超出了预期。 选取了粗犷自然嵌入山体装饰的两个崖壁房型,松果一整面墙都是山体极具野性,浮玉洗手间的地面是天然的岩石,视觉很有冲击力,中古家具装潢富有质感和设计感,备品/迷你吧/欢迎礼/夜床礼/退房伴手礼贴心齐全,房费包含了种类丰富的套餐,食材新鲜摆盘精致可圈可点。 视野开阔,景观大气,可以俯瞰大半个潭溪山景区,如果夏天或者冬天来,应该景色会更吸引人。 最令我意外的是贴心热情的服务,先顾客之所想,考虑得十分周到,有好客山东宾至如归的温馨,意外之余非常自豪,家乡终于有了一家有诚意有亮点的优质度假酒店,可以有底气和省外的朋友推荐了。

