-
项目定位:当抽象的几何形体被灌入意向的思考,落地生根,成为所谓空间,我们将展陈属性展开,抽丝剥茧,捋出纤毫的脉搏,注入场域,唤醒空间的灵魂。
商业展厅作为品牌面向消费者最直观的对外形象,以解决消费需求为根本的内在逻辑。项目是位于温州滨江CBD的木作展厅,设计源于对当下商业环境的全新思考,以精致而简约的艺术形式,表达品牌的商业品味与产品定向。 -
空间意境:极简的艺术表达形式并不意味着随意发挥,力量与柔美的平衡考究才是设计的初衷。以大面积纯白艺术漆铺陈外立面,立体的几何形状内嵌形成主要入口,以力感十足的气势表达“简约”的理解与定位,足以引起消费者的驻足。
随着狭窄但高挑的金属廊道入内,摒绝了外界熙攘穿梭的车辆,达成情绪转变的目的,原本正对瓯江路的入口被优化至侧面,减少行人对自动门的干扰。
我们始终认为,木作与中式的传统审美不可分割,于是在极具现代化的极简线条中,置入些微的中国元素,例如前台处的圆形木柱、门边高处形似老式木刨的榫卯结构,以及场景中随处可见的中式摆件收藏……这些元素零散地分布在空间中,达成当下审美与传统意象的和解,重塑空间的时间维度。 -
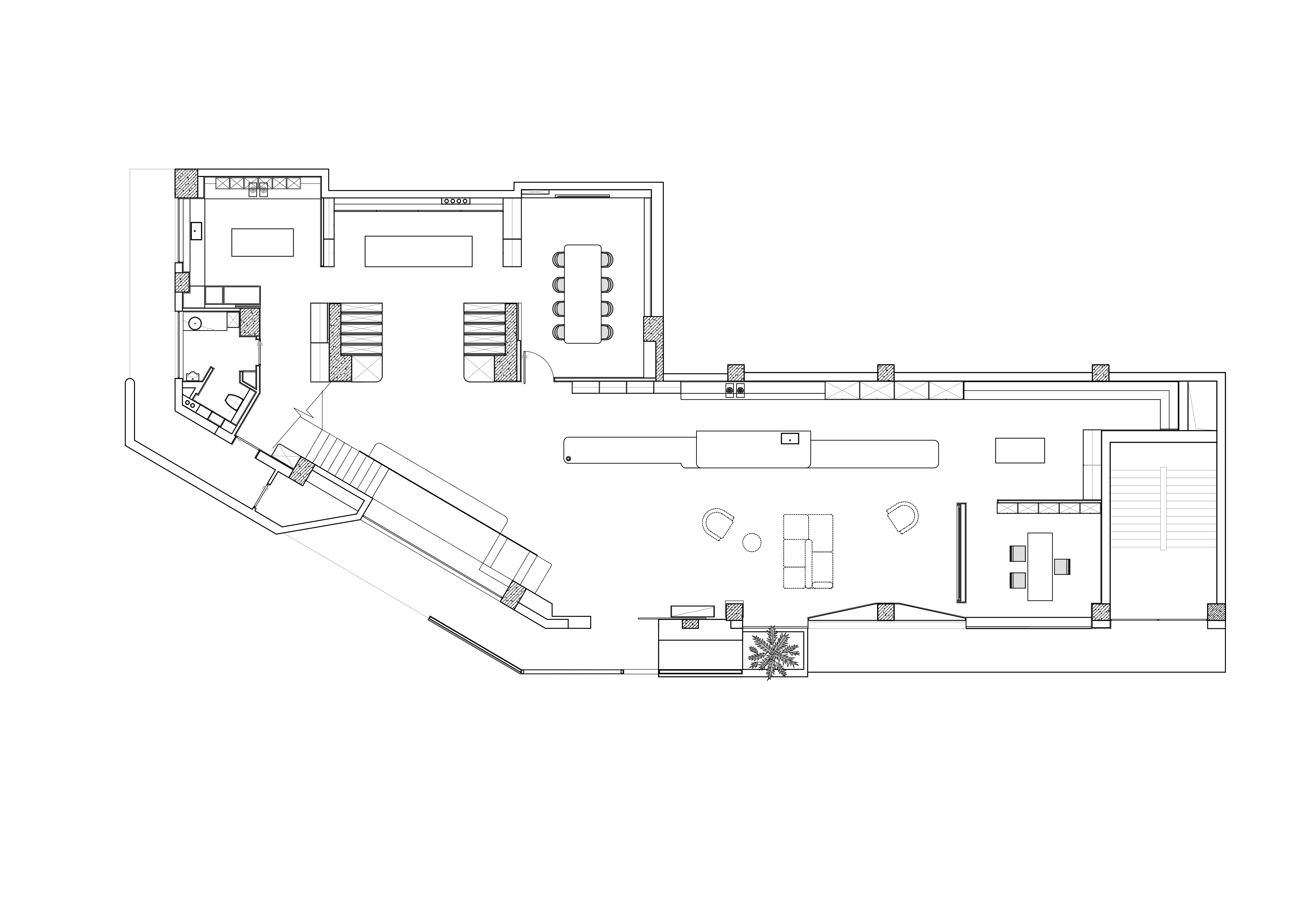
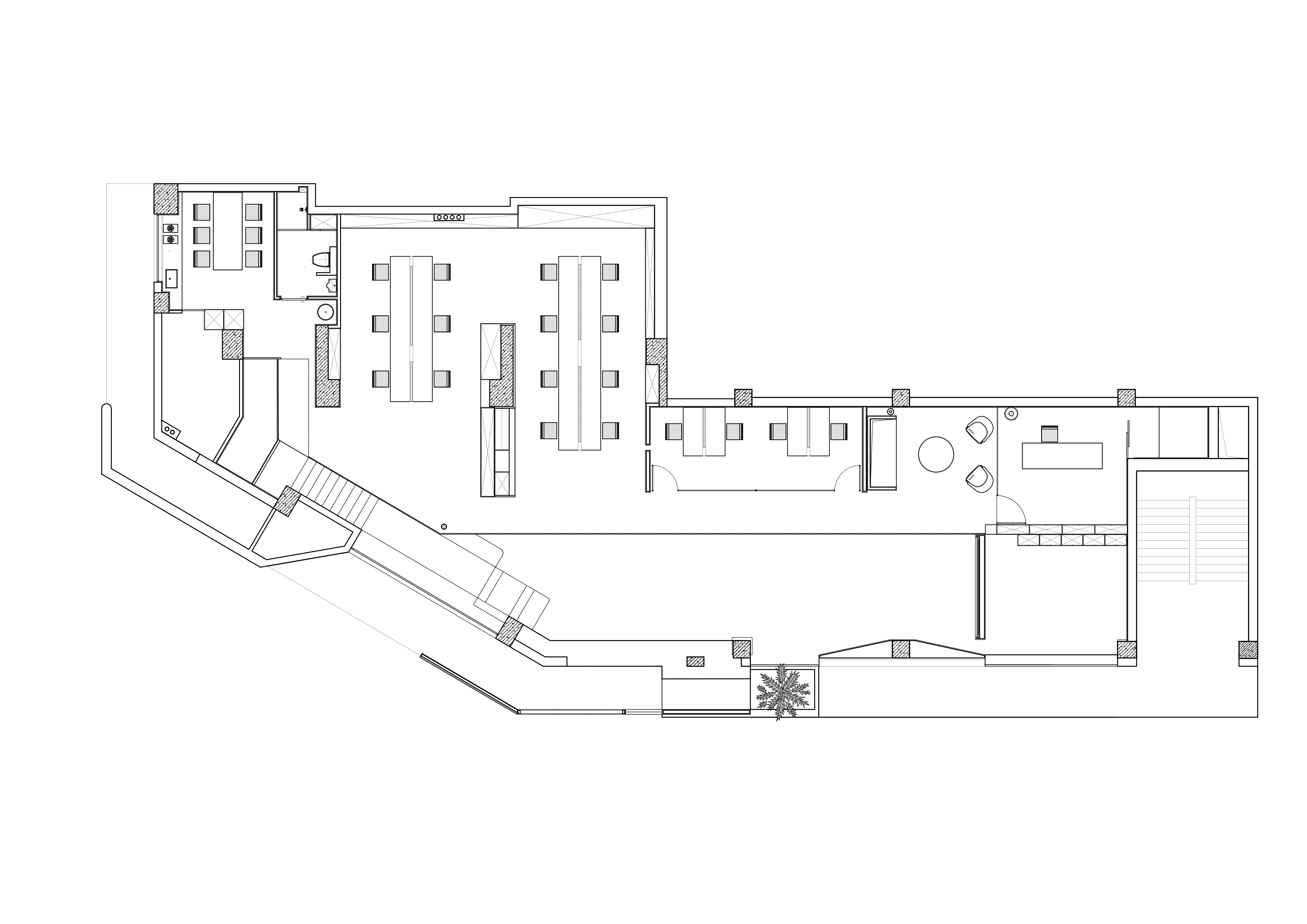
空间布局:设计三向动线,以满足不同目的的到访。入门右侧用于满足初次到店的体验需求,左侧则为二次到店的选样与汇报区域,通过楼梯上行,则为设计师的办公场所。
不同于传统展厅将各功能区域拆分的呈现形式,而是将展陈融合,产品化身为可被感知的精神元素,溶解于条理清晰的场景构造中,在被使用时方得外显,并不做过多的“推销式”铺垫。
中心挑空区域在日常语境下被用于待客交流的场所,但同时其中的家具产品都是可移动的,便于日后筹备多人次到场的活动。中心贯穿两层的巨大LED屏幕在作为日常的补充展示之外,也可被投入多功能定位的使用立场,满足多维场景搭建的需求。
岛台作为西厨功能展示以外,兼任前台功能,一体岩板拉长空间纵深,引起目光向内延展透视。剥离出产品的内核,反向推导出存在的可行性,以美学的目光向消费者叙述产品在空间中的差异化本质。
去除传统商业展厅遍布品牌标志的意识模式,转而投入可被身体感知的产品艺术,以细小入微的角度切入,链接起人与空间乃至品牌的交互。
我们希望空间是简约的,同时也是东方内敛的。通过“内向化”展陈处理,将产品隐藏在柜门之中,墙体之内,只在需要被选择的时候呈现给特定的消费者,不影响日常的体验感受。
同时,我们所认为的现代式展陈空间,应该不仅仅具备产品展示与达成交易这种单一传统的功能,其同样应该将外向情感内收,从而带动人与场景的沉浸式互动。所以我们重视空间不同场景的相互连贯与交互,意于打造促进沟通但同时保有相对独立的场所,在空间的所有边角设置圆弧造型,带来柔和的意象,也为带小朋友的访客提供安全的场地。 -
设计选材:
通往二层的楼梯经过落地窗辗转向上,拾级而上的过程赏心悦目,但为保证行走的安全性,我们不得不在一侧设置扶手隔断,这种行为势必会对窗外的景观带来遮挡。
多方权衡后我们选择在钢板扶手下方打开空隙,让自然光得以进入,方便观察板材在自然光线下的色彩效果,而这一做法同时带来了令人意外的惊喜,白色的楼梯扶手恰好遮住了灰色的水泥马路,从室内向外观之,唯有绿色的植被参差生长,仿佛置身于植被茂密的丛林,而非繁华喧闹的现代化都市,反而为空间带来了更为舒适僻静的体验效果。 -
用户体验:聿,书写之,以木为笔;
简,简言之,凭木作答。
聿简汲取中式的传统美学意境融于当下先锋的设计理念;尊崇材质的自然之美,同时又钻研于匠作工艺的极致运用,于细节的处理中表达内敛克制的艺术形象。
0
1

认证 · 让您身份增值
443