半岛铁盒



- 项目类型:住宅公寓
- 项目地点:成都市
- 建筑面积:171.0000㎡
- 项目造价:75.0000万元
- 主案设计师: 张霞
- 竣工时间:2024.9.17
- 设计机构:成都宏福樘设计
-
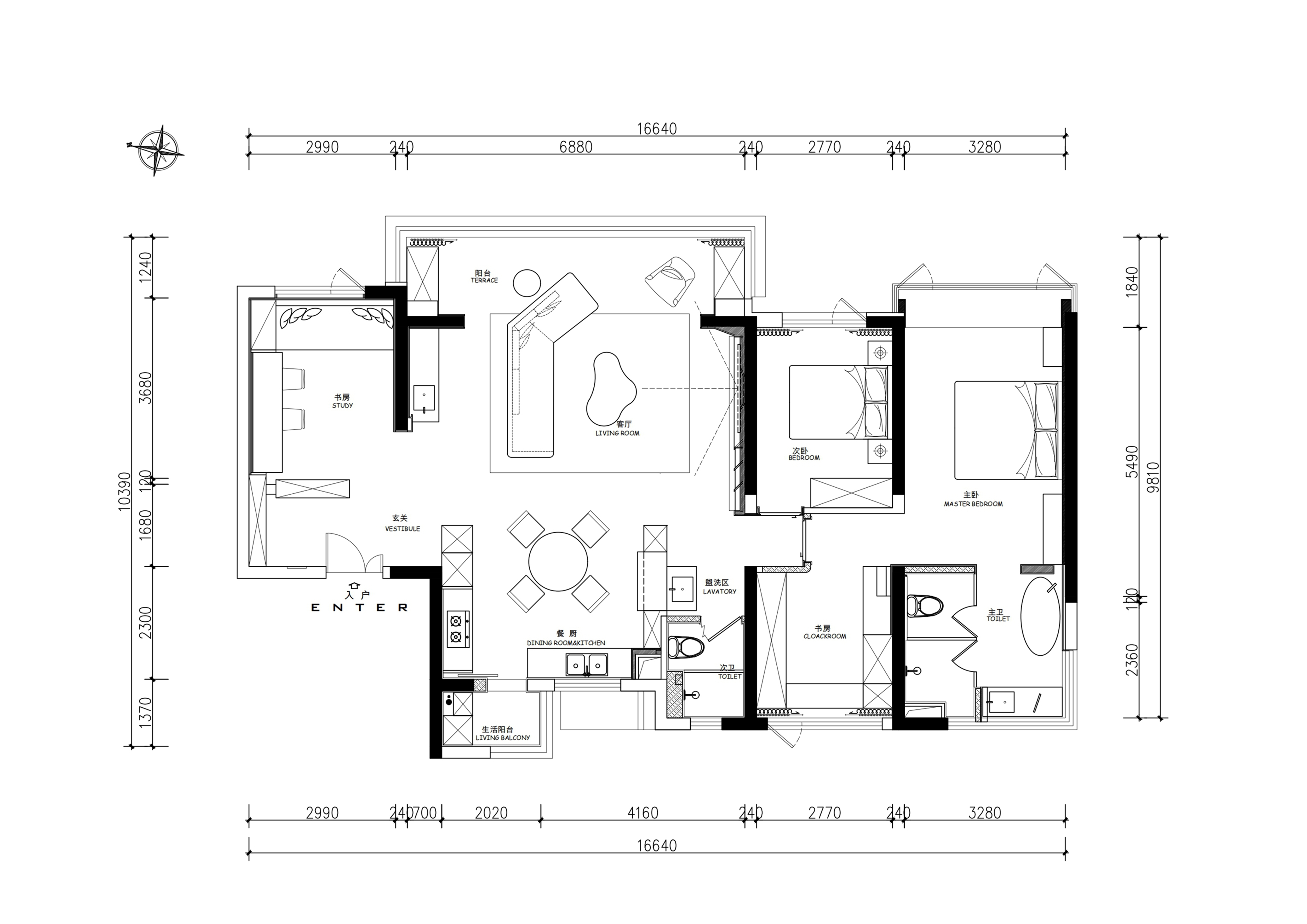
项目定位:屋主是一对85后原始户型套四房间多但是功能空间有限,他们理想中的居住空间是一个电竞房、一个舒适的主卧套房,房子尽可能开放采光好。两卧室改一主卧套房满足动线、视野及配套舒适度。此外封闭厨房变开放,借部分过道空间扩成餐厨一体的开放式大厨房,让空间比例更加实用合理及全屋极佳采光通透性。
-
空间意境:原始面积空间虽大是个套四房,但每个房间使用面积都相对局促感觉狭小逼仄略显压抑。综合客户提出的电竞房(书房)、带衣帽间的舒适套房以及二人上班较忙备餐较少等诸多需求我们对房屋平面布局进行调整改造:
1、拆掉入户隔墙,柜体替代隔墙上下透光,使玄关满足收纳储物、阻隔进门视线的同时又能保证入户有部分自然采光引入;
2、客厅相邻封闭房间改开放式电竞书房+榻榻米,游戏之后不用多走一步路就可以转身在榻榻米上小憩,等正式睡觉时再回主卧(直戳熬夜党心趴)
3、封闭厨房改开放,借过道空间让餐厨面积扩大,面积有限餐桌选择圆形给四周留足够活动空间,参考国外进口电器做法局部外突与柜体体块呼应
4、客卫洗手台外置,柜体+钢架确保稳定性,全石材上墙与客厅混搭包豪斯风格形成呼应;
5、两间房改为主卧套房,带软膜天花顶的秀场级独立衣帽间,金属不锈钢幽灵门,洞石瓷砖做装饰穿插使主卧南北通透保持绝佳采光,卫生间满足独立浴缸、淋浴、盥洗三项功能。 -
空间布局:风格整体以实用包豪斯主义的简约理性为基调,融入带有装饰主义的大胆奇幻孟菲斯配色元素。用几何造型构建空间框架,线条简洁利落,借孟菲斯鲜明色彩、怪诞有趣的图案点缀,让跳跃的色块家具、极具视觉冲击的单品为秩序中注入活力,于极简中融入幻想。
从空间变得更有通透性着手,利用储物、玄关、收纳、功能,把入户房间作为开放式书房,打开第一层视野,通过墙板的延伸,让书房有质感和好打理的同时,又不孤立西厨的设置。扩大厨房使用面积,把餐厨融为一体,利用原有的梁位,同时从纬度的尺寸,巧妙的设置,让厨房和餐厅又有明显的划分。
原厨房顶部梁柱较多,通过构建“柱体交错”以及穿插未封顶柜体&双开门冰箱内置等细节设计,刻意做出“隐”和“突”的结构立体感。涂刷“洞石”肌理感的艺术漆,打造出看似简单实则精致的内建筑感。
客厅餐边柜选择不锈钢金属拉丝板+不锈钢钢板台面,不漏台面极简设计+45度海棠角内嵌不锈钢台面细节满满+墙面金属钢板可自由组合调整序列,满足屋主灵活多变的陈列创意需求。
-
设计选材:客餐厅厨房在同一个空间内,整个空间以气质鲸鱼灰为主色调,不同面设置不同柜体饰面,如以斜切面为主的不锈钢拉丝电视墙极具金属感,正列式排版,让视觉在序列和律动中交错,突出极强轮廓感。
通过艺术涂料、深色地砖、镜面、墙板分色的处理手法,又让客厅西厨区,空间变得更加开阔、通透、有趣。在高柜区和洗漱台中置钢架,进一步一材两用,解决设备和洗漱区不美观的问题又增加了空间尺度。
同时蒋地面材质延伸至就寝区,巧妙的解决了干湿分区,功能分区的刻意化,僵硬化。
设计选材本案主要采用了洞石瓷砖、洞石肌理艺术漆、岩板、不锈钢金属镜面不锈钢等材质;整体提倡简约,设计元素、色彩、材料简洁,强调功能性设计,线条简约流畅。以实用包豪斯主义的简约理性为基调,融入带有装饰主义的大胆奇幻孟菲斯配色元素。用几何造型构建空间框架,线条简洁利落,借孟菲斯鲜明色彩、怪诞有趣的图案点缀,让跳跃的色块家具、极具视觉冲击的单品为秩序中注入活力,于极简中融入幻想。 -
用户体验:客户从一开始犹豫是否接受设计师这个改动非常大的方案,到过程中一步步看到还原和效果图一样,再越来越信任设计师是一个过程。基本是产品型号敲定设计师做一些推荐客户去了解和比较一下渠道价格合适就定了,过程很顺畅。到完工去工地的次数不超过一双手,平时工作很忙基本就是执行经理和设计师跑了现场给反馈视频照片,客户参与最多的就是家具选购,非常省心。
屋主是一对85后原始户型套四房间多但是功能空间有限,他们理想中的居住空间是一个电竞房、一个舒适的主卧套房,房子尽可能开放采光好。
两卧室改一主卧套房满足动线、视野及配套舒适度。此外封闭厨房变开放,借部分过道空间扩成餐厨一体的开放式大厨房,让空间比例更加实用合理及全屋极佳采光通透性。
风格整体以实用包豪斯主义的简约理性为基调,融入带有装饰主义的大胆奇幻孟菲斯配色元素。
用几何造型构建空间框架,线条简洁利落,借孟菲斯鲜明色彩、怪诞有趣的图案点缀,让跳跃的色块家具、极具视觉冲击的单品为秩序中注入活力,于极简中融入幻想。
从空间变得更有通透性着手,利用储物、玄关、收纳、功能,把入户房间作为开放式书房,打开第一层视野,通过墙板的延伸,让书房有质感和好打理的同时,又不孤立西厨的设置。
扩大厨房使用面积,把餐厨融为一体,利用原有的梁位,同时从纬度的尺寸,巧妙的设置,让厨房和餐厅又有明显的划分。
客餐厅厨房在同一个空间内,整个空间以气质鲸鱼灰为主色调。
不同面设置不同柜体饰面,如以斜切面为主的不锈钢拉丝电视墙极具金属感,正列式排版,让视觉在序列和律动中交错,突出极强轮廓感。
通过艺术涂料、深色地砖、镜面、墙板分色的处理手法,又让客厅西厨区,空间变得更加开阔、通透、有趣。
在高柜区和洗漱台中置钢架,进一步一材两用,解决设备和洗漱区不美观的问题又增加了空间尺度。
主卧衣帽间
主卧刻意做出“隐”和“突”的结构立体感。涂刷“洞石”肌理感的艺术漆,打造出看似简单实则精致的内建筑感。
两间房改为主卧套房,带软膜天花顶的秀场级独立衣帽间,金属不锈钢幽灵门。
洞石瓷砖做装饰穿插使主卧南北通透保持绝佳采光。
卫生间满足独立浴缸、淋浴、盥洗三项功能。
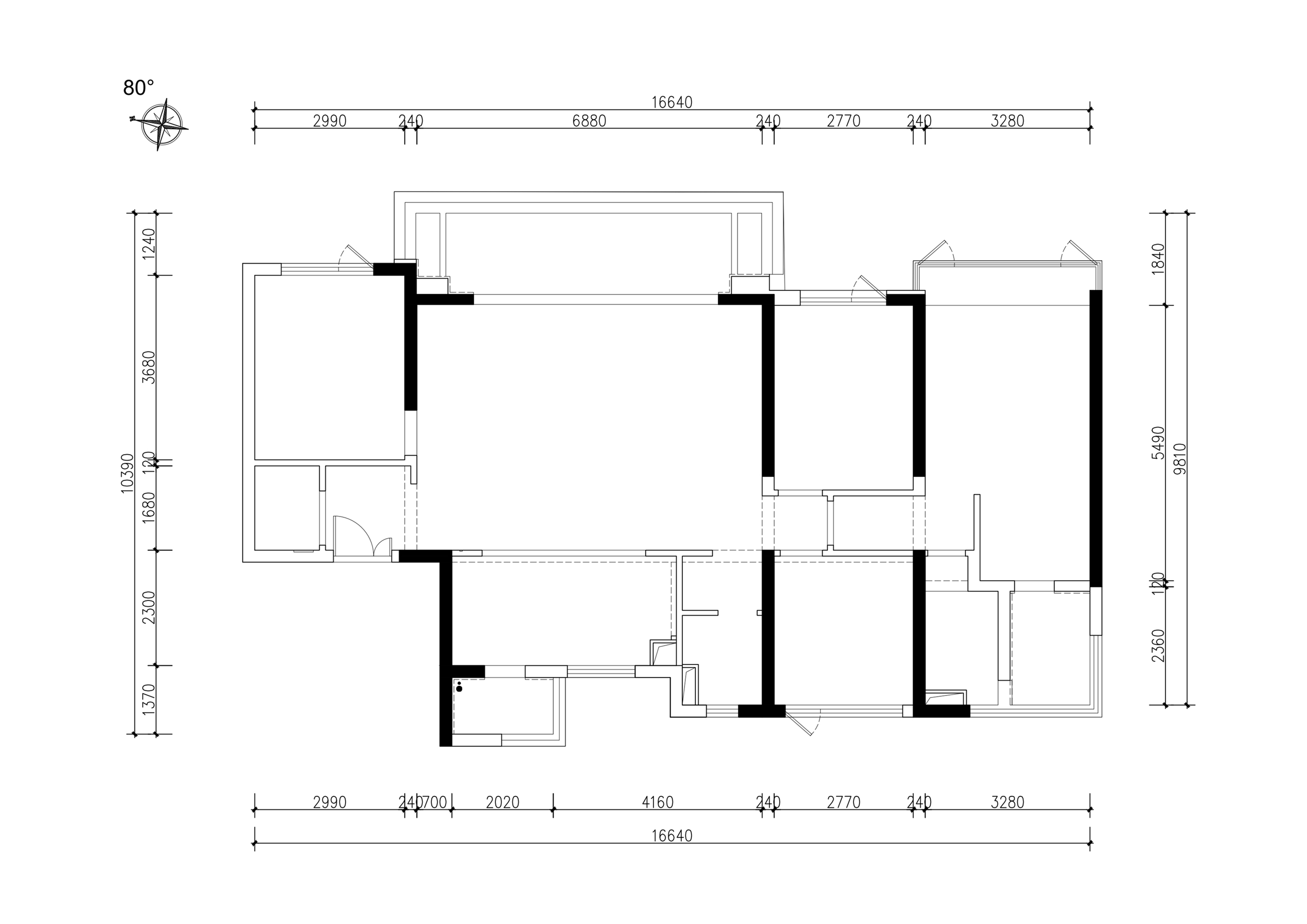
原始户型
改造平面 1、拆掉入户隔墙,柜体替代隔墙上下透光,使玄关满足收纳储物、阻隔进门视线的同时又能保证入户有部分自然采光引入; 2、客厅相邻封闭房间改开放式电竞书房+榻榻米,游戏之后不用多走一步路就可以转身在榻榻米上小憩,等正式睡觉时再回主卧(直戳熬夜党心趴) 3、封闭厨房改开放,借过道空间让餐厨面积扩大,面积有限餐桌选择圆形给四周留足够活动空间,参考国外进口电器做法局部外突与柜体体块呼应 4、客卫洗手台外置,柜体+钢架确保稳定性,全石材上墙与客厅混搭包豪斯风格形成呼应; 5、两间房改为主卧套房,带软膜天花顶的秀场级独立衣帽间,金属不锈钢幽灵门,洞石瓷砖做装饰穿插使主卧南北通透保持绝佳采光,卫生间满足独立浴缸、淋浴、盥洗三项功能。

