尔雅



- 项目类型:住宅公寓
- 项目地点:成都市
- 建筑面积:220.0000㎡
- 项目造价:120.0000万元
- 主案设计师: 张霞
- 竣工时间:2021-12-30
- 设计机构:成都宏福樘设计
-
项目定位:该案是为四口之家打造,夫妻二人和两个女儿,主题围绕着家人和陪伴延展。一楼规划为开放的多功能公区,2楼为私密空间,将两间卧室拆分为三间。创造出一个既符合屋主生活习惯和审美偏好,又充满趣味和包容性的居住空间。
-
空间意境:结构:该案多处运用互相呼应的材质让不同体块的厨房柜体变得不再呆板,并带来准确的秩序。同时以垂直对称、纵深弧线形的设计手法成属于这间居所的独特语言。
尤其是餐厅部分设计,空间前后形成多种虚实关系,利用凸显与隐后的设计手法将餐厅展示柜以悬空的视觉方式呈现,给人以轻盈之感。 -
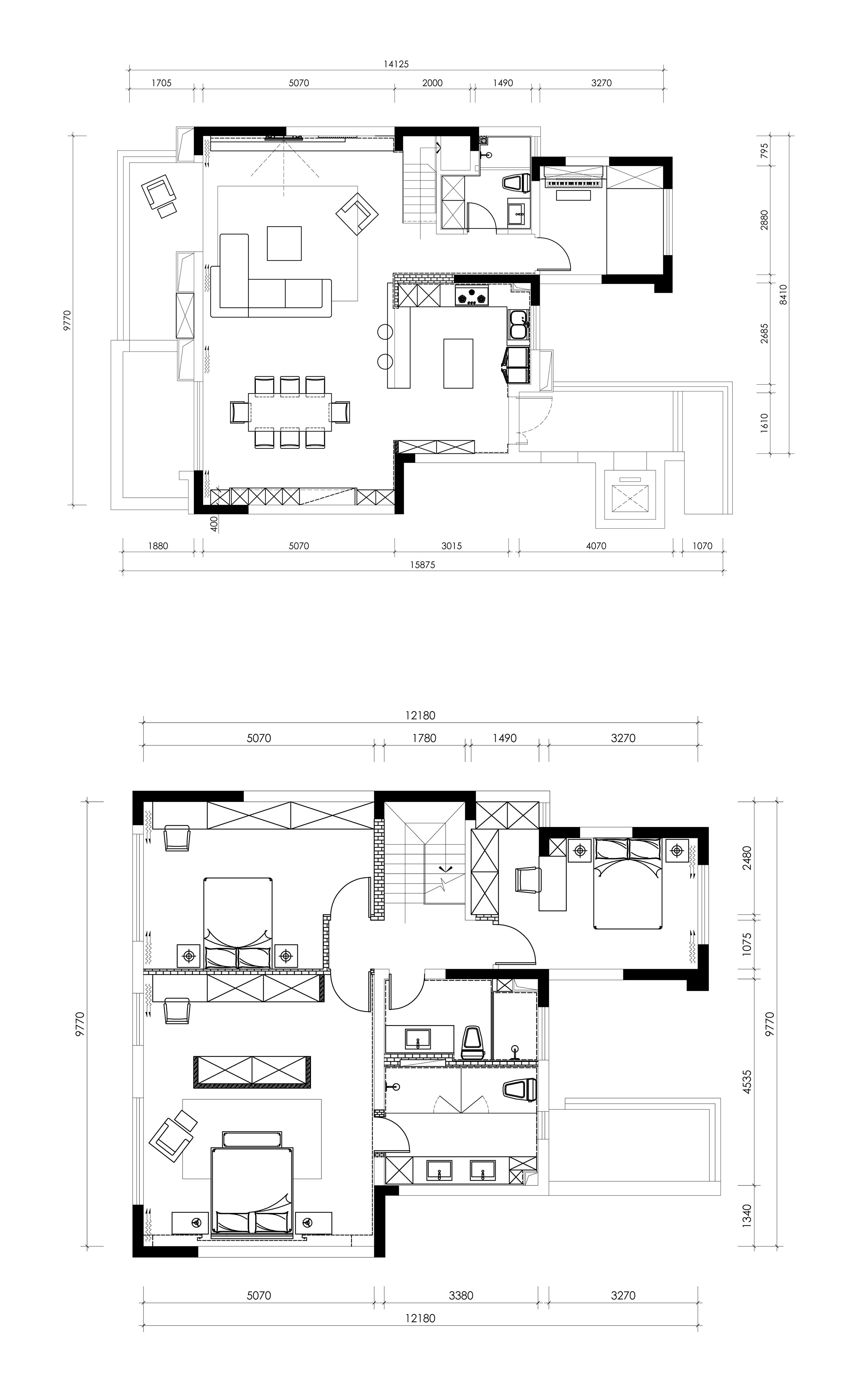
空间布局:一楼
❶ 扩充厨房空间,打造开放式厨房
❷ 生活阳台一分为二,部分纳入客厅,迎光入室。部分独立设备区,满足功能需求
➌ 楼梯间视野较窄,反向改造楼梯方向,扩大梯间视野的同时扩大公卫空间
二楼
❶ 重新划分面积,将原始主卧面积整理为主卧+儿童房A空间
❷ 因功能需求,满足三区分离即可,原始主卫一分为二,满足主卫及次卫两卫功能使用
➌ 原始次卧套房(卫生间+卧室),合二为一为儿童房B空间,满足起居+学习功能 -
设计选材:软装:以极简形态、低饱和色彩、现代解构元素构成视觉主体。由不同形状的极简单体组成(banlan沙发、茶几,coconordic fred沙发椅、togo单人沙发)分出区域与高度层次。
材质:重视触感与质感,利用更经久耐用的岩板、皮革、大理石来替代浮华的装饰,形成连续的、有机的空间系统。同时注重体现多元化又独立的单品挑选,将生活品质向上发展。木饰材质贯穿玄关与餐厅空间,作为视觉延伸,形成整体的框架结构。
色彩:以暖白、沙茶、雾霾灰为空间主色调,融入抹茶绿、暗夜黑做局部点缀,去掉过于用力会产生的繁杂效果,打造出更符合屋主的空间感染力。
质感:无论是选择家具或是衣物,统一都会选择更精简、经典的款式遵循LESS IS MORE的原则青睐简洁、质感的材质和开放、独立的功能。故全屋均选择Bonaldo 、Flos 、coconordic、togo等品牌经典原单,营造出更具沉浸式的舒适享受。 -
用户体验:屋主入住后经常更新小红书,还一度产出了播放量破百万,点赞2.3w沉浸式宅家视频。
当女儿与妻子围坐在一起后,团圆的快乐时光便开始了,这样的生活环境,让一家人都愈发爱上在家中度过的时间。
环顾四周,活动空间由不同形状的极简单体组成
banlan沙发、茶几,coconordic fred沙发椅、togo单人沙发分出区域与高度层次。重视触感与质感,利用更经久耐用的岩板、皮革、大理石来替代浮华的装饰,形成连续的、有机的空间系统。
探索日常,为居住者打开公共空间视野,解析并融合玄关、厨房、餐厅、客厅、阳台的功能属性来优化居住者的日常需求。
抬高120mm形成地台,阳光被牵引入内。光线在百叶过滤后与空间形成一种动态且安静的交流,墙面与地面之上的光影被加强、模糊以及扩展,逐渐弱化了空间的重量。 虽然外面依然是城市风景,但浸润的阳光足以超越肌肤,驻足心间,让居住者能够真切地感受到四季的变迁。
木饰材质贯穿玄关与餐厅空间,作为视觉延伸,形成整体的框架结构。宽阔但体态轻盈的Bonaldo Amond餐桌、趣味横生的Flos Arrangements餐灯、可塑性极强的table chair,注重体现多元化又独立的风格,将生活品质向上发展。
空间前后形成多种虚实关系,利用凸显与隐后的设计手法将餐厅展示柜以悬空的视觉方式呈现,给人以轻盈之感。开放后的厨房与餐厅动线,让平日的生活互动变得更生动。
空间中互相呼应的材质让不同体块的厨房柜体变得不再呆板,并带来准确的秩序。当它们贯穿于使用之中时,便会充分展现出设计师给予它们的生活形态。这样多功能的居住空间也为居住者提供一个适宜的私人聚会、休闲场所。
在形成秩序的同时,也赋予空间绝对的广阔性。
现代与生活经过融合思考,艺术也囊括进入其中,空间中垂直的对称、纵深的弧线,形成属于这间居所的独特语言。
女儿们的琴房位于楼梯一侧较私密的房间,在学习之余弹奏钢琴可以为她们创造更优雅的音乐世界,接受更多西方古典文化的熏陶。
一曲悠扬的曲子有时总能安抚青春期带来的烦躁与不安,让心境变得怡然自得。
楼梯在反向改造过后,扩大梯间视野,面向公共空间。延伸厨房墙砖材质至走廊墙体,去掉过于用力会产生的繁杂效果,打造出更符合屋主的空间感染力。
楼梯空间玩转几何美感,在设计上更呈现开放性,通透的玻璃为其引入一部分室内的自然光线,
与不同动态的光源共同创造丰富的光影效果。
空间形体被塑造为一个看似简单的单体盒子,实际则融入了布艺、皮革、石膏、玻璃、亚克力等多种材质作为表象下的基础,表现出更具沉浸式的舒适享受。
加入更丰富多元的空间体验以及游走其间的趣味性,通过细致把控墙体的重量,将电视墙体进行悬空。并利用足够的厚度将另一面设计为储物展示空间,提升卧室内部的互动及功能性。
夫妻二人无论是选择家具或是衣物,统一都会选择更精简、经典的款式。
对于家的功能思考,开放性与独立思考也同样重要,所以为其在6000mm长的落地窗带来的丰沛光线下,加入一处灵活办公区域。
如何通过设计让居住者的日常生活毫不费力,是一个非常值得深思和考虑的重要问题。原始主卫有足够的空间使用,但我们根据对屋主的了解,只提取最重要的生活需求。在进行干湿三分离后,直接将其一分为二,改造为从另一侧进入的次卫空间,方便孩子们使用。
儿童房A:注重感官上的多样性,定制波浪形状墙画,塑造一片宁静的淡粉色绿洲,空间被赋予悦动与俏皮的情韵。从外引入的阳光在墙面产生戏剧性的变化效果,转变为动态下的流动美学,制造出快乐浪漫的趣味。
儿童房B:粉色依然作为另一间儿童房的基础色,柔性气质得以蔓延。取消卧室原本附带的卫生间,扩大面积,满足起居与学习功能,渐变的浪漫墙画,气氛轻盈通透,创造出超脱现实之外的梦幻与臆想。
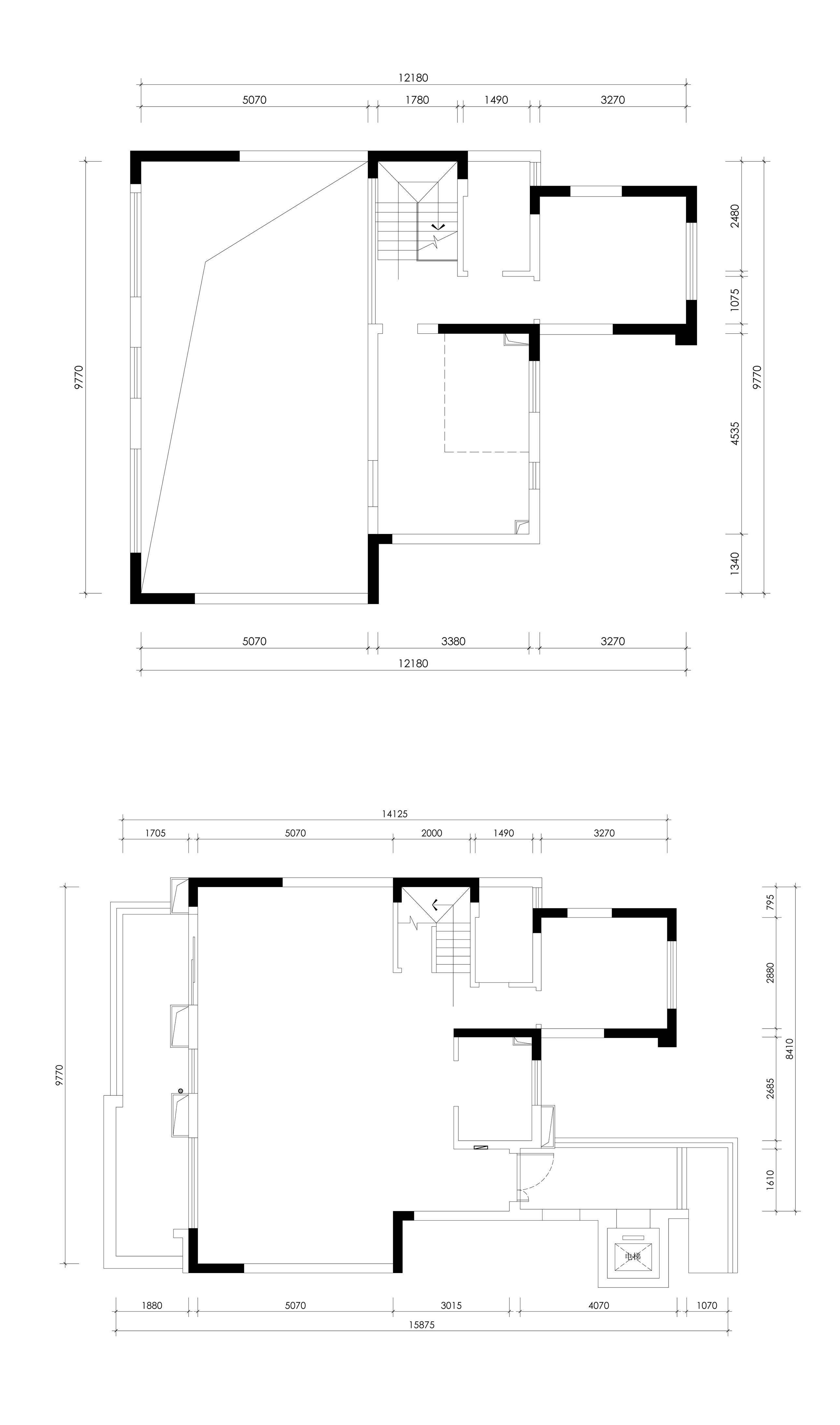
平面布局
原始结构

