元系


- 项目类型:住宅公寓
- 项目地点:成都市
- 建筑面积:145.0000㎡
- 项目造价:65.0000万元
- 主案设计师: 张霞
- 参与设计师:元系
- 竣工时间:2022-03-03
- 设计机构:成都宏福樘设计
-
项目定位:该案是为一个四口之家打造的居所,因为喜欢热闹所以父母、妹妹都在同一小区同一栋楼购置的房子。因为家人在楼上楼下所以不必单独预留房间,将套四改套三。公共空间以玄关、厨房、餐厅,卧室以三间次卧为主要改造对象,对其面积重新拆分进行组合,最后呈现出通透、开朗的区域关系。两间儿童房也获得更大的使用空间,配以更完善的功能需求。
-
空间意境:我们习惯于认为实体对象都是有边界的,所以很多时候会被四方的棱角所困住。这次,我们为全空间贯穿曲线元素,将原本凌冽的墙体消融于内。然后利用干净的线条、色彩、材质、结构之间的联结,赋予空间张力的变化,在现代极简与柔美之间找到一个最佳平衡点。物质世界与精神世界进行调和,创造出能够呼应日常的空间场景,一处自由、互动性极强的“亲子陪伴空间”。
-
空间布局:❶ 厨房位置墙体直接阻挡玄关采光,又因距离有限,无法设计产生深邃幽静的端景效果,让原本大户型入户舒适感变差。
❷ 入门左侧,一共有3间次卧,家里共两个小孩,无三胎打算。又因为家人都在楼上楼下,所以不必单独再为他们单独预留小憩客房,需要重新规划空间格局。 -
设计选材:尤其是玄关部分设计,由外至内,利用解构手法将原本阻挡视线的厚重墙体,改变为具有视觉穿透力的结构框架。以功能造景,既是玄关、也是西厨。通过对近、中、远关系之间的层层递进,将入门之人的内心迅速牵入其中,使其视线能够在空间中穿行、游走,并早以为其规划好不同的功能区域合理的、便捷的行动路径。
-
用户体验:客户为典型以小家庭为单位的结构,但是大家庭都在一个小区,既保证了彼此生活习惯的独立性,又能确保日常的陪护和父母养老问题。他们特别感谢设计师能够以前瞻的眼光让他们的生活充满艺术和个性氛围,完全围绕着他们儿女双全父母二人的生活展开。
喜欢热闹的大家庭,索性把家都搬到了一起,所以在同一小区同一栋楼,楼上楼下还住着父母及妹妹。日常的节奏就是,就算工作累了一天,也不用长距离来回奔波,便可以去父母家蹭饭,去妹妹家唠嗑。而最重要的是自己的两个孩子,能够不用像现在大多数家庭一样,回家就关门闭户,互不打扰,失去了这个年纪本有的无边无际的自由。
由外至内,利用解构手法将原本阻挡视线的厚重墙体,改变为具有视觉穿透力的结构框架。以功能造景,既是玄关、也是西厨。 通过对近、中、远关系之间的层层递进,将入门之人的内心迅速牵入其中,使其视线能够在空间中穿行、游走,并早以为其规划好不同的功能区域合理的、便捷的行动路径。
大面积落地窗户,引入更多的自然光线,以艺术漆、木材强化肌理。横、竖曲线蔓延,塑造空间的立体视觉,在静态与动态之间连续性不断增强。
从阴角处开始,曲线环绕整个客餐厅顶面,形成无限扩展的自然穹顶。消除界限,停驻于有形亦无形的空间内,以感知对话,为它注入意义和感觉,引导家人更好地享受生活。
几何造型与弧形的张力结合,以及不规则的间隔,为空间注入视觉流动感。与木头材质包裹后的墙体形成对立,平面由此变得鲜活有层次,让视线不由自主聚焦。
原本主卧的门洞改造为与墙面一体的隐形门,提升空间的整体效果,也让孩子在此空间玩耍时增添乐趣。
从侧面可以看到墙面是由叠构的组成方法呈现,100mm的厚度并不影响空间的正常面积使用。绛红独立于空间不受任何色彩的约束,点缀出恰到好处的活力热情,犹如跳跃在人身体中的心脏。
一天中不同的时间,光线会发生不同的变化,用材质延续的手法,将温柔的竖百叶包裹住黑框窗户。在感知中,与四季的交替更迭和每日时间流逝联结,为空间赋予温度与节奏。营造出愉悦的开放感,带来简单、放松的居住体验。
修正格局,解构原本沉重的遮光墙体,将厨房区域移至玻璃门后。外部则改造为西厨部分,配置冰箱、daogrs直饮机与烤箱、零食推拉柜,以及储存日常物品的空间。
多元化互动性极强的生活场景,一切整洁有序,通透明亮的气质,轻松、惬意的氛围肆意流动,空间如获新生。
延续外部木头材质铺贴地板及包裹床头墙体,加入立体层次。悬浮床头柜嵌入衣柜设计一体化体块,呈现更轻盈灵活的陈设方式。丰富空间整体内容,塑造自然、舒适的素雅气质,提升睡眠幸福感。
选择一帘两用的日月帘,除了阻隔高温外,还兼顾实用与美观一体。立面包裹克制感较强的雅黑不锈钢,制造一处与自然相连接的框景,呈现出安静又细腻的沉淀之美。
因有足够宽阔的面积使用,所以选择定制双盆台面,方便两人使用需求,全方位提升生活质量。墙体则选择富有肌理纹路的方砖,错缝的铺贴方式,让空间显得更加自然、氤氲。
儿童房A:运用同系列不同色度的粉色串联融合,并搭配几何构图来强调整体视觉。床头背景墙,利用与叠构关系达成与外部空间的呼应和统一,将平面转化为立面。最后点睛为其加入两颗小圆壁灯,为6岁的女儿烘托出精致梦幻的少女时代宣言。
扩大空间使用后的女儿房,配有独立的功能书房。因即将开启小学生活,之后的学习任务也会逐渐增强,利用光影、色彩、肌理之间产生的互动关系,为其营造柔和专注的学习氛围。
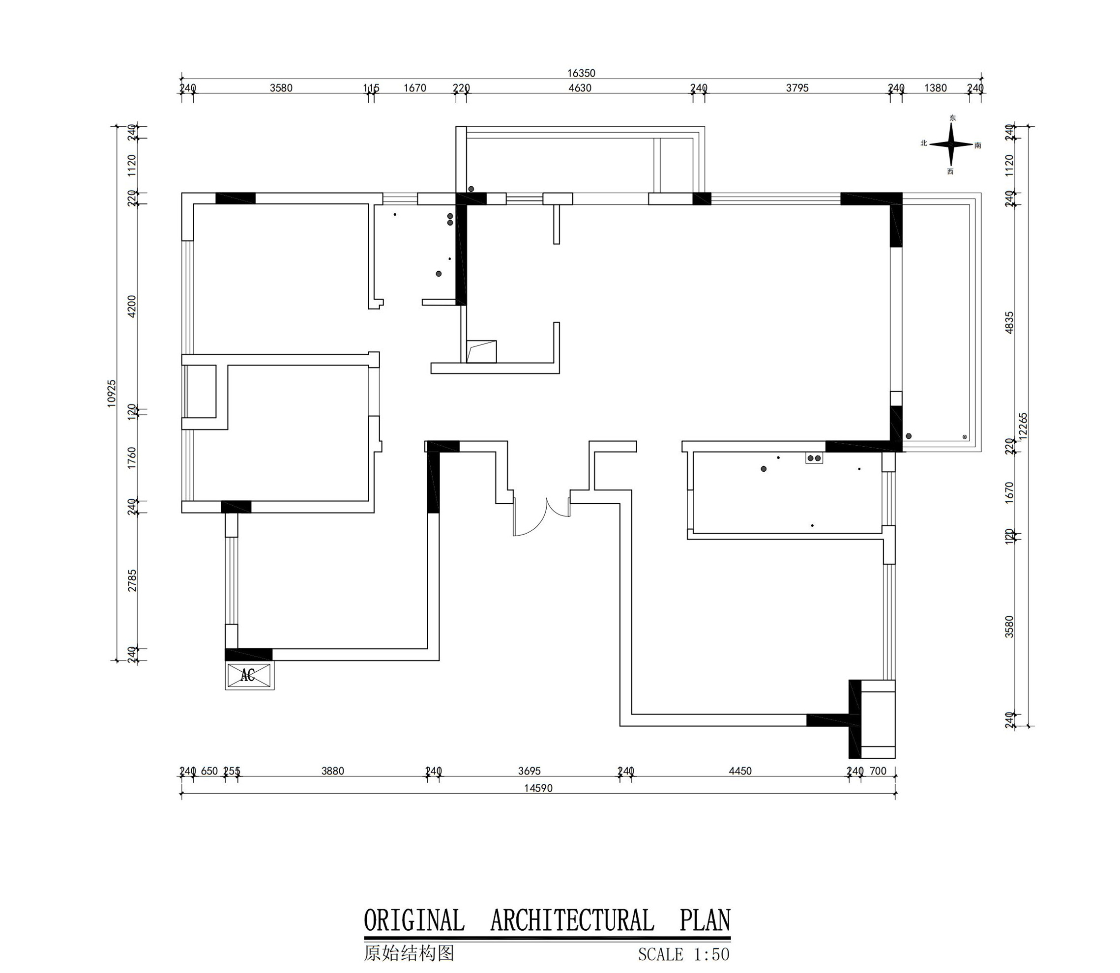
原始结构
平面布局

