凡音伴心
183
作品说明
- 项目类型:商业
- 项目地点:无锡市
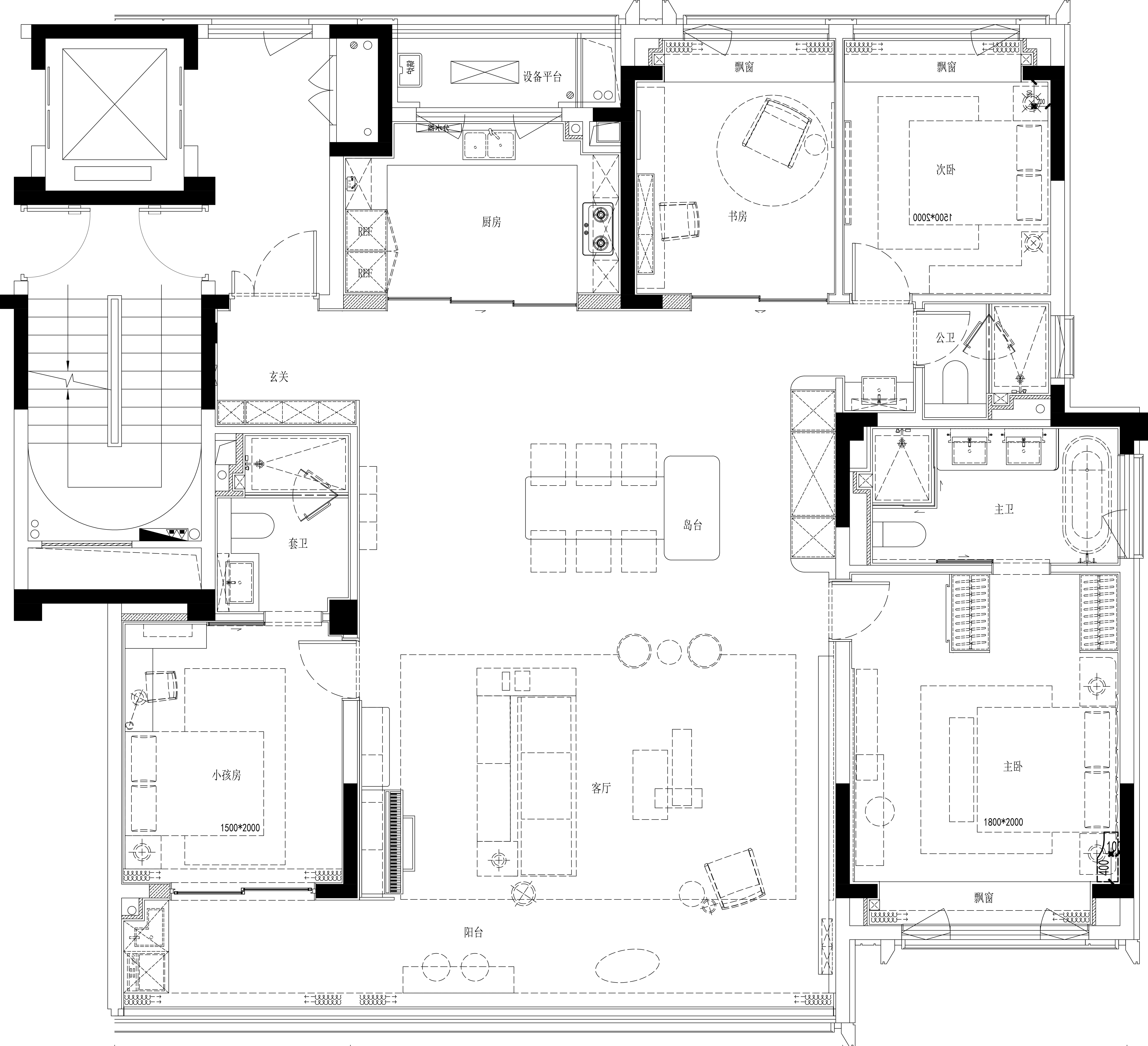
- 建筑面积:184.0000㎡
- 项目造价:58.0000万元
- 参与设计师:齐妙、魏永琪
- 竣工时间:2024年6月
- 设计机构:JHMY金鹤美扬
-
项目定位:本案以“音乐”为主题,将摩登气质贯穿于整个大平层的软装设计中,融合优雅与动感,构筑多元化的艺术生活空间。
-
空间意境:客厅与餐厅相连,通过弧线型家具、流线吊灯与高光材质营造音乐般的流畅感。地毯上的抽象纹样如旋律般起伏,墙面点缀金属乐器装饰,赋予空间动人节奏与层次美感。整体色调以低饱和灰调为主,点缀金属与木质元素,彰显时尚与温暖并存的氛围。老人房以摄影为主题,采用沉稳的暖灰调,搭配复古相框墙与摄影灯饰品,展现岁月的艺术沉淀。家具设计注重舒适性,同时通过细腻软装细节提升空间质感,满足长辈需求的同时融入摄影的文化气息。女孩房则以绘画为灵感,运用柔和的粉色与白色为主调,墙面悬挂艺术画作,搭配画架、调色盘等饰品,激发孩子的创作灵感,营造童趣与艺术共融的空间。主人房则以摩登感为设计主线,金属框架床、丝绒软饰与几何线条墙饰勾勒出现代都市精英的独特气质,同时采用光影装饰打造奢雅氛围,展现主人对品质生活的追求。整套设计将音乐、艺术与摩登气质完美结合,创造出一个充满艺术魅力的家居空间。
-
空间布局:在书房的空间里,将休闲与工作功能结合。
-
设计选材:我们用做家具的剩余材质 做成了一副钟表拆解艺术挂画
-
用户体验:参观完样板间的嘉宾普遍反应可以感受出摩登的气息,空间动线合理,细节凸显品质
0
0

认证 · 让您身份增值