雅颂家学
179
作品说明
- 项目类型:商业
- 项目地点:无锡市
- 建筑面积:320.0000㎡
- 项目造价:230.0000万元
- 参与设计师:齐妙、彭红玉
- 竣工时间:2024年8月
- 设计机构:JHMY金鹤美扬
-
项目定位:本案以“传承”为主题,展现三代同堂的家族文化与生活方式,整体设计采用现代雅奢风格,将优雅与温暖融入每个细节,满足家族多元需求的同时,彰显居住者的文化品位与现代审美。
-
空间意境:高端人居的三世同堂与这座城市共探索与成长,空间中流淌着沉稳优雅的基调,精致而丰富的材质,色彩美学的韵律将不同空间赋予幽享氛围主张.源自东方的文墨气息是国人的精神传达,使空间呈现出力量与安全感,而家学,是江苏特有的智慧传承,它散发出的魅力,在设计与空间之间取得平衡。
-
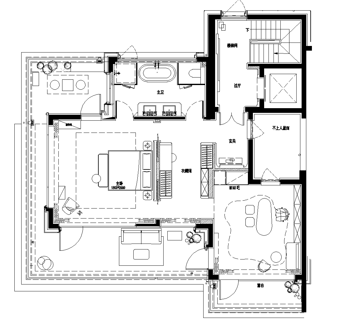
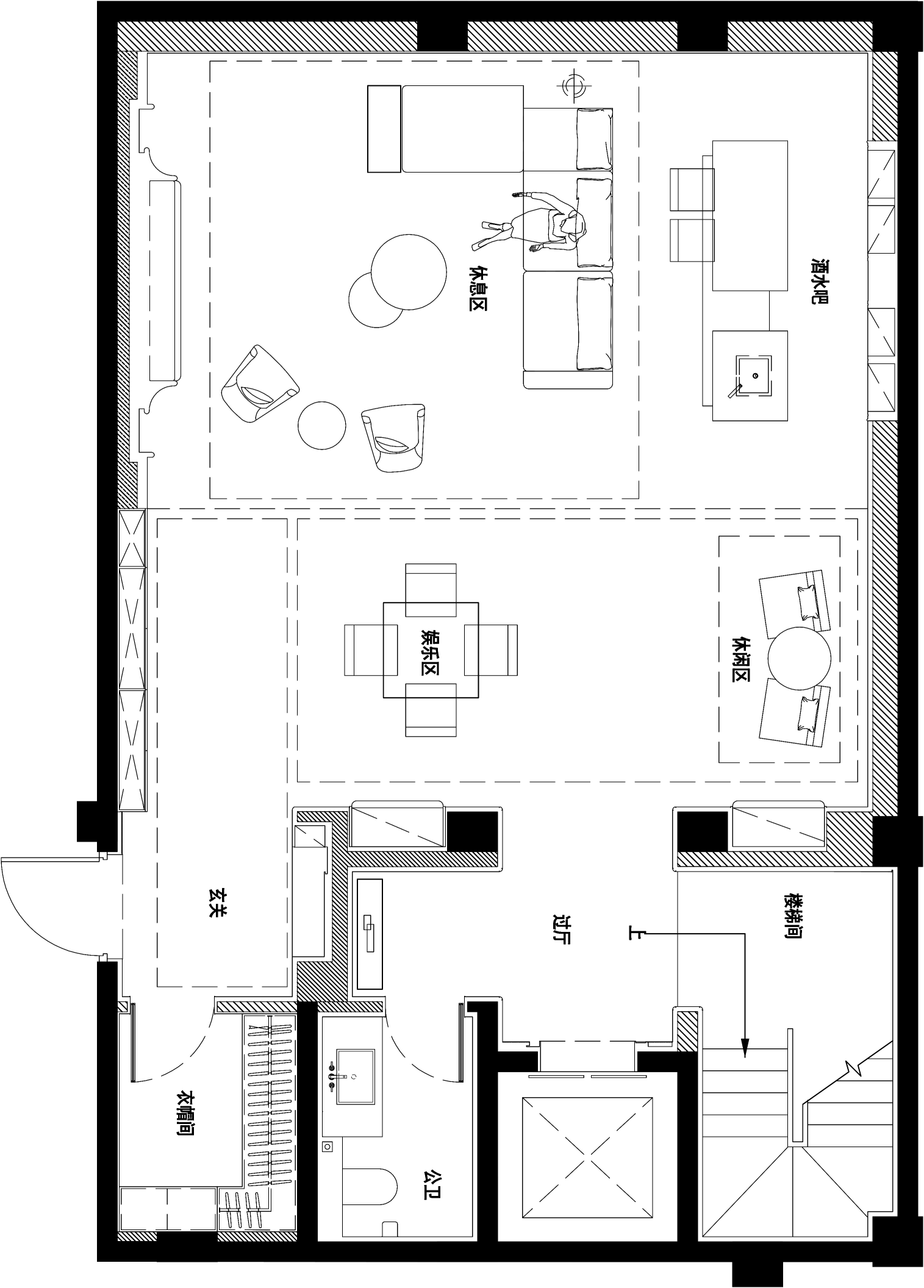
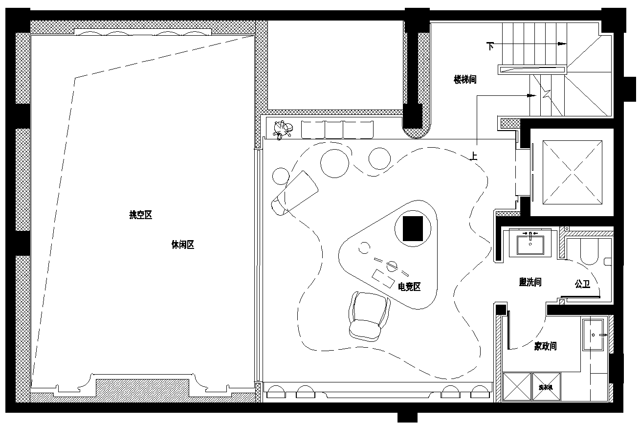
空间布局:在3层书房的空间里,将休闲与工作功能结合。
-
设计选材:1楼玄关柜使用回收回来的瓷片与胡桃木结合,打造成别具特色的玄关柜
-
用户体验:当嘉宾参观完合院后,普遍认为能切身感受到合院想要传达的“传承”的精神,在尊重中方文化的基调之上,也有西方的复古气息。居住人物分布合理,动线流畅。色彩与主题分明,通过品质与细节体现出对人物性格爱好的刻画。
0
0

认证 · 让您身份增值