VME品牌展厅设计
307
作品说明
- 项目类型:展示
- 项目地点:广州市
- 建筑面积:1500.0000㎡
- 项目造价:1000.0000万元
- 参与设计师:赖柏全
- 竣工时间:2022年6月
- 设计机构:广州乔一装饰设计有限公司
-
项目定位:喬一空间设计的VME展厅项目定位是“以自然为本,探索空间与自然的相互关系”。喬一空间应邀创作VME舞魅品牌全新概念展馆,创造出契合品牌精神的空间,实现设计的探索与突破。 项目所在地位于广州市番禺区莲花山风景区附近,因地制宜,莲花山地势环境融合了自然岩洞与周边绿化的结合,形成了天然与人工结合的独特景观。
-
空间意境:在空间场景的创新点上,设计结合地理优势,从景观造景、建筑美学、自然肌理,细节质感多维度融合,以岩石作为承载文化的载体,创造出与自然共生的,具有解构美学的,可不断生长的人文自然艺术融合体。践行探索品牌革新的新商业布局和创新愿景,成为设计的破题关键。
-
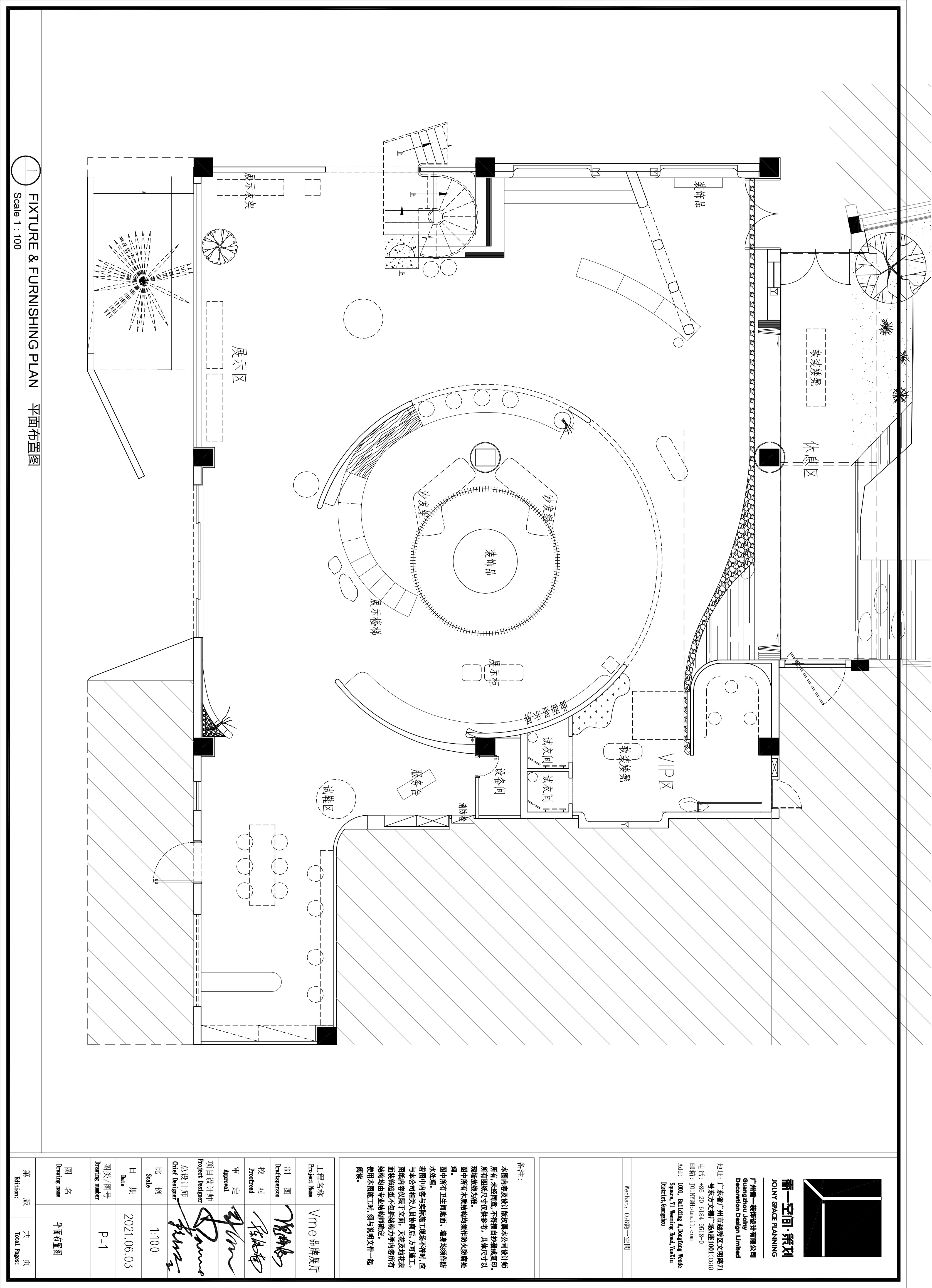
空间布局:在内容布局的创新点上,设计师以女性特有的“自然曲线”作为平面布局的切入点,将曲线设计融入空间设计,空间由一系列弧形墙体展开,延伸出不同的空间区域。
-
设计选材:1、空间设计中融合了地域条件和自然环境,保留自然景观的山体融入设计;
2、大面积采用微水泥应用于墙面、地面、台面等多种表面,展现其独特的质感和自然感,同时也是一种环保和经济高效的设计选择;
3、展厅设计强调自然与建筑的合一,通过使用自然色调和特性的材料,以及巧妙的光线运用,营造出仿佛置身于自然岩洞中的感觉。
4、参观者进入展厅内部便会被整体统一柔和色调的肌理材质运用和岩石产生自然的碰撞吸引,自然光的运用及绿植的意境营造,使人仿佛置身于自然岩洞中,弧形的高低起伏的曲线使空间具备更多的探索性,通过不同的区域穿行得到不同的体验。 -
用户体验:喬一空间的VME展厅通过其独特的设计理念和对品牌精神的深入理解,成功地为VME品牌带来了革新的面貌,提升了品牌的形象和市场竞争力。展厅设计强调自然与建筑的合一,使人们可以通过空间体验生活和自然之美,传达了追寻自然、感知自然的情感和价值观念。
展厅强调空间氛围的体验而非点对点的纯视觉画面。柔和的光影下,绿意盎然的自然之美才是生活的开始。在设计空间中传达人追寻自然、感知自然的情感和价值观念。
光束从顶部的圆形天窗倾泻,地面呈现出光影的变化,有着光之教堂般的永恒与神圣。经过窗户过滤的光,以“光”为指引,让空间延续,强调了空间的连续性。
光,神圣而崇高。阳光缓缓倾泻,融入山石与绿植中,成为大厅的焦点,精神上行的感受洗礼,在此倾坐片刻,享受被自然包裹的惬意,宁静渗透思绪。
整个空间结合流畅的曲线和圆弧造型,意在营造与自然共融共生,自由轻盈的美学意境。随处可见的拱形、弧形元素,遍布在目光所及之处,增添了些许艺术感和趣味性。
流畅延伸提升空间的视觉高度,弧线拱起的阶梯造型,具有方向的指向性。
持续生长,可变换的陈列组合。
“清风徐来,日光微澜,映着微红的余晖,我们坐在山间里畅意自在。”在展厅的休闲区域望向室外廊道,岩石的质感映随着天空洒下柔和的光,不同的介质链接着内外同一个世界。
透过玻璃窗,窗外的岩石与空间的结构相互交错,给予人无限的遐想。通过自然弧线分布的动线,围绕一圈回到了起点,穿梭于结构之间,在此没有时间开端和终点的界限,观者仅见时光的片刻停留。
建筑的立面的解放让室内外空间相互渗透与融合,自然色调和特性的材料选择更充分的表达出场域特征,让人在瞬变万变的时空之中,体验生活与自然之美。
设计师以女性特有的“自然曲线”作为平面布局的切入点,将曲线设计融入空间设计,空间由一系列弧形墙体展开,延伸出不同的空间区域。开放而模糊的边界,结合自然的岩石,营造出与自然界之抽象回响。
0
0

认证 · 让您身份增值