佛山欧大师低碳艺术馆



- 项目类型:展示
- 项目地点:佛山市
- 建筑面积:530.0000㎡
- 项目造价:60.0000万元
- 参与设计师:林蕴丹、周锦柠、吴华喜、胡小英
- 竣工时间:2023-03-15
- 设计机构:广州乔一装饰设计有限公司
-
项目定位:欧大师低碳艺术馆位于佛山市居然之家,以探索平行世界中不同环境的差异为主题,致力于向人们传递低碳、节能的生活方式。馆内集美学理念和功能设计于一体,以多元化视觉体验来强调绿色生态生活方式。让用户感悟社会与自然的息息相关,激发人们对低碳世界的使命责任感。
-
空间意境:本案旨在创造和设计一个由门窗构成的平行世界,空间作为载体,将每个门窗构造的世界展示。将环保、自然、低碳门窗的理念融入空间和来访者的体验过程中。模拟平行世界中的自然环境场景,邀请您站在面向未来环保新建筑的入口,推开窗,见未来。
-
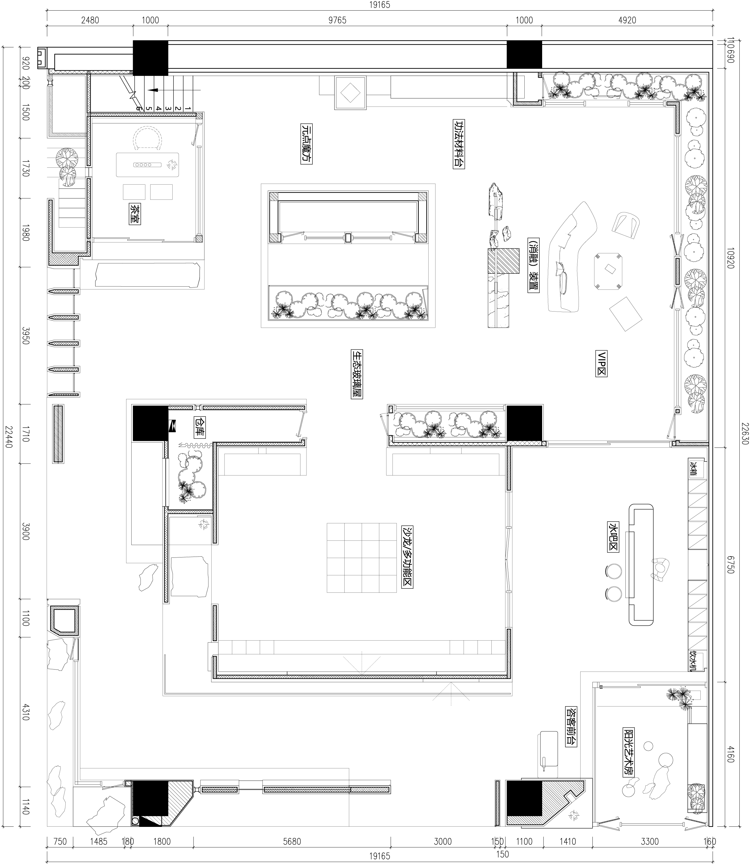
空间布局:在低碳艺术馆中,我们在平面布局中设计了两条参观动线,分别在场景中用设计语言模拟自然情景融入了产品,巧妙设计两条路径的可视区域,互为平行世界,又可开启交互。
-
设计选材:在设计选材上,充分结合欧大师隔热门窗的品牌理念,整体以大地色的艺术涂料和自然质感的材质来呈现,以不同维度展现欧大师隔热门窗的使命、愿景、与价值观,将环保、自然的理念融入空间和来访者的体验过程中,以大自然之名,彼此守护。
-
用户体验:品牌展厅不仅是产品的展示,而是给予观者一定的空间,使观者在进入其间后,充分感受、体验、探索,从而形成与品牌之间的互动与情感连接。针对品牌属性,设计师规避传统展厅的陈词滥调,以“建筑”的概念展开空间叙述。通过模拟“自然丛林”的场景,淡化商业感,营造更加轻松的空间栖息地,引导着来访者逐步深入品牌体验,产生共鸣。
入口:欧大师低碳艺术馆位于佛山市居然之家,以探索平行世界中不同环境的差异为主题,致力于向人们传递低碳、节能的生活方式。馆内集美学理念和功能设计于一体,以多元化视觉体验来强调绿色生态生活方式。让用户感悟社会与自然的息息相关,激发人们对低碳世界的使命责任感。
长廊:平行世界,以长廊形式体现,两边墙面对称的方格造型,模拟一窗一世界。
寓意在平行世界的时空里,存在着不同的自然法则,方格布局整齐利落,展现出浓厚的秩序感。
行走在中间,仿佛游走在多维世界里,方格内植于品牌文化,宣告着品牌强烈的社会责任和践行低碳理念的使命决心。
外立面:窗外之境
外立面结合了色彩、质地和形式、一个由柔和的沙漠色调组成的分层画布,从中体会品牌理念的可感知形态。
窗内不同的布景具有丰富的创造力,让来往的行人充满窥探的欲望,让顾客不由自主地走进艺术馆内。
休闲沙龙区:以模拟冰川世界来展现,中间摆放模拟冰块的方形坐凳,将冰川场景更加生动化,顶部菱形设计寓意星空,与冰川对应,顶与墙的通过几何形状交错对称,展现出满满的艺术感,统一的色调让空间拥有殿堂级的视觉感。
品牌展厅不仅是产品的展示,而是给予观者一定的空间,使观者在进入其间后,充分感受、体验、探索,从而形成与品牌之间的互动与情感连接。针对品牌属性,设计师规避传统展厅的陈词滥调,以“建筑”的概念展开空间叙述。
尽管中间用落地推拉门隔开,两个独立空间却连为一体。突出了设计师的巧妙构思。
冰河的末端是一片无垠的大海,以垂直画面的形式呈现,磅礴气势,与沙龙区刚好成直线相连关系。
从沙龙区可观热浪沙漠景致,引人窥探前往。在注重体验的当下,空间与空间的界限已逐渐模糊。符合商业需求,深入品牌基因,强调自然场景与产品的融合共鸣,使设计为品牌赋能。
热浪沙漠以模拟沙漠场景来让人与自然进行空间对话,以强调平行世界中沙漠气候的恶劣,在当今自然环境越来越恶劣的情况下,保护环境,发展绿色新能源,碳达峰、碳中和这些不再只是口号,而是深切地关系着每一个人的自身利益与生活品质。
消融的世界展示区设置在VIP区域,设计师将其模拟成气候变暖,冰川消失,海平面上升的场景来呼吁人们敬畏自然,爱护地球,两个超大的产品结构模型讲述门窗为建筑节能所赋予的能量。
生态阳光房:空间是显性的品牌叙述,阳光房作为橱窗形式展示,与展厅门面形成内外链接的空间体块,亦是来访者与品牌建立深链接的核心区域之一。舍弃同质化阳光房的设计模式,而是通过模拟“自然丛林”的场景,淡化商业感,营造更加轻松的空间栖息地,引导着来访者逐步深入品牌体验,产生共鸣。
引光入境;微妙的细节强调空间质感,凝聚成极致的空间体验。光的凝练,材质之间形成的碰撞对比,由远及近,由浅到深,呼吸之间,流淌着自然永恒之美。
本案旨在创造和设计一个由门窗构成的平行世界,空间作为载体,将每个门窗构造的世界展示。将环保、自然、低碳门窗的理念融入空间和来访者的体验过程中。邀请您站在面向未来环保新建筑的入口,推开窗,见未来。

