新加坡宽窄巷子川菜餐厅
288 - 项目类型:餐饮
- 项目地点:新加坡
- 建筑面积:580.0000㎡
- 项目造价:75.0000万元
- 参与设计师:林蕴丹、周锦柠、吴华喜、胡小英
- 竣工时间:2023-01-15
- 设计机构:广州乔一装饰设计有限公司
-
项目定位:在宽窄巷子餐厅的创作中,喬一空间从经营者角度思考设计的商业价值,从年轻消费者视角感受空间的愉悦度,解读川菜蕴含的文化密码,运用创新灵感与交叉思维,以“青砖、芙蓉花和竹子”为空间造境的核心,提取地域元素,结合水雾、艺术、LED、音韵与视觉互动设计塑造出立体的画境,打造兼具艺术感官、互动交流、自然体验的多元空间,为食客带来一场超越现实的高科技沉浸式感官盛宴。
-
空间意境:新加坡宽窄巷子餐厅在环境风格上的创新点主要表现在创造独特的室内外场景。它通过营造仿佛置身于成都宽窄巷子的感觉,为顾客打造出一种身临其境的情境感受。同时,利用现代照明技术和音效设计,营造出独特的氛围和体验,使顾客能够感受到独特的文化氛围和情感共鸣。
-
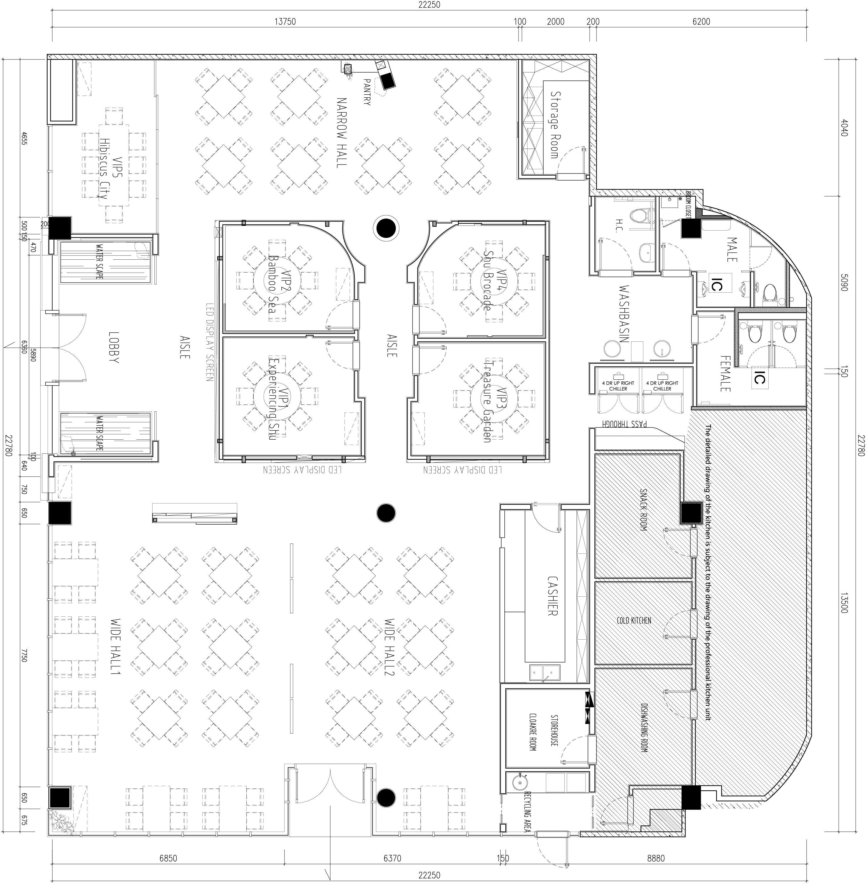
空间布局:新加坡宽窄巷子餐厅在空间布局上的创新点主要体现在灵活利用有限的空间,打造多样化的用餐区域。它在布局上注重分隔和组合,通过使用屏风、隔断、包间等设计元素,创造出私密性和互动性兼具的用餐空间。同时,合理安排各个区域的功能和流线,使顾客能够便利地进行用餐和交流。
-
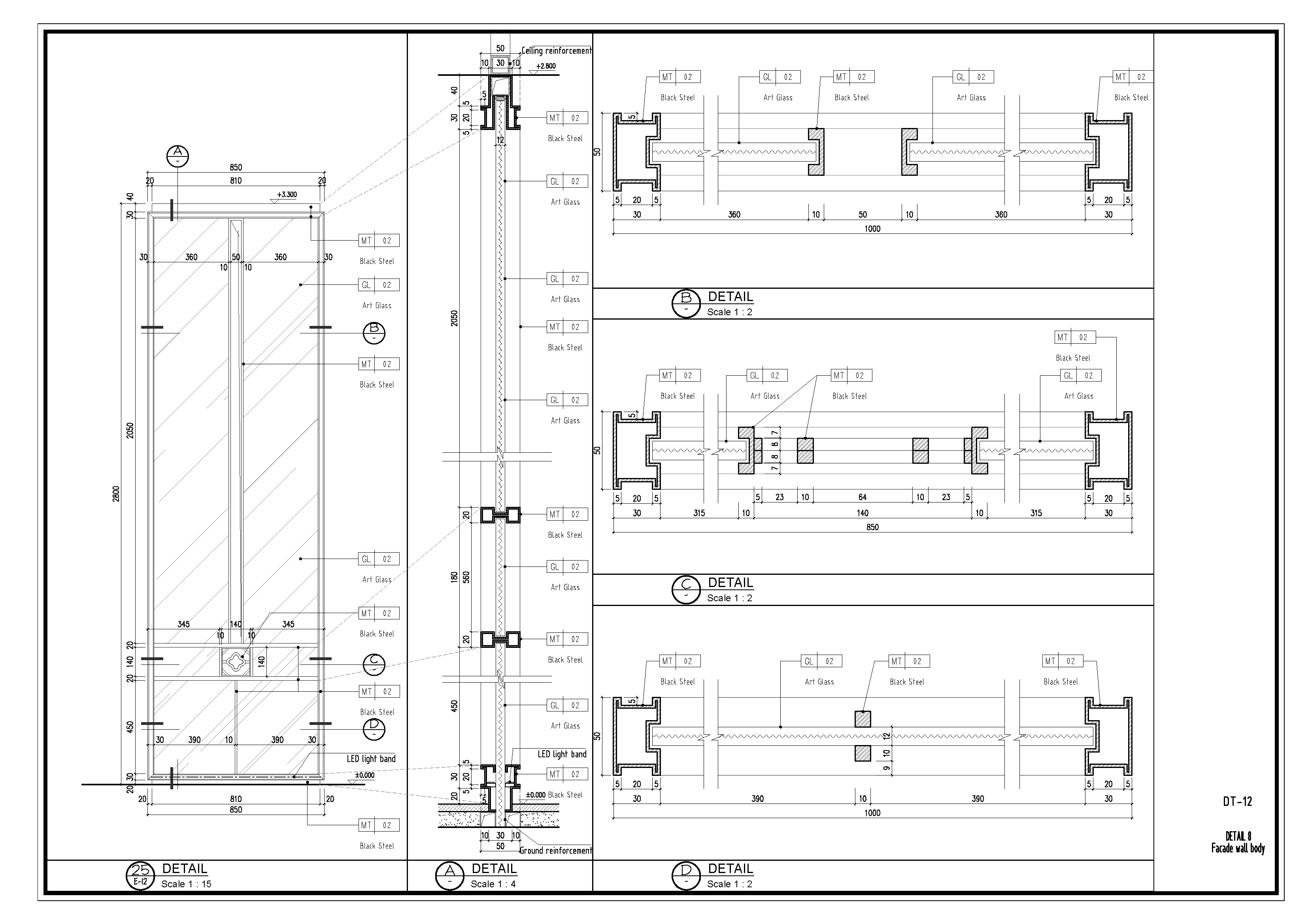
设计选材:新加坡宽窄巷子餐厅在选材上的创新点主要表现在低碳与经济性方面。它倡导环保理念,选用可再生材料和节能材料,如不锈钢,树脂玻璃等材料等,使整个设计更加环保和可持续。
-
用户体验:新加坡宽窄巷子餐厅在投入使用后的效果和用户评价方面,注重提升用户体验。它通过人性化的设计,如舒适的座椅、合理的空间布局和良好的服务体验等,为顾客提供舒适愉悦的用餐环境。整体布局精致,层次分明,光影交错,展现出建筑艺术和东方哲学。每个细节都经过精心设计,每片光影都诉说着独特故事,令人陶醉。这里蕴藏东方智慧与美学,带来无限的艺术与思考空间。通过这些措施,新加坡宽窄巷子餐厅致力于为顾客创造独特而美好的用餐体验,成为当地网红打卡地。
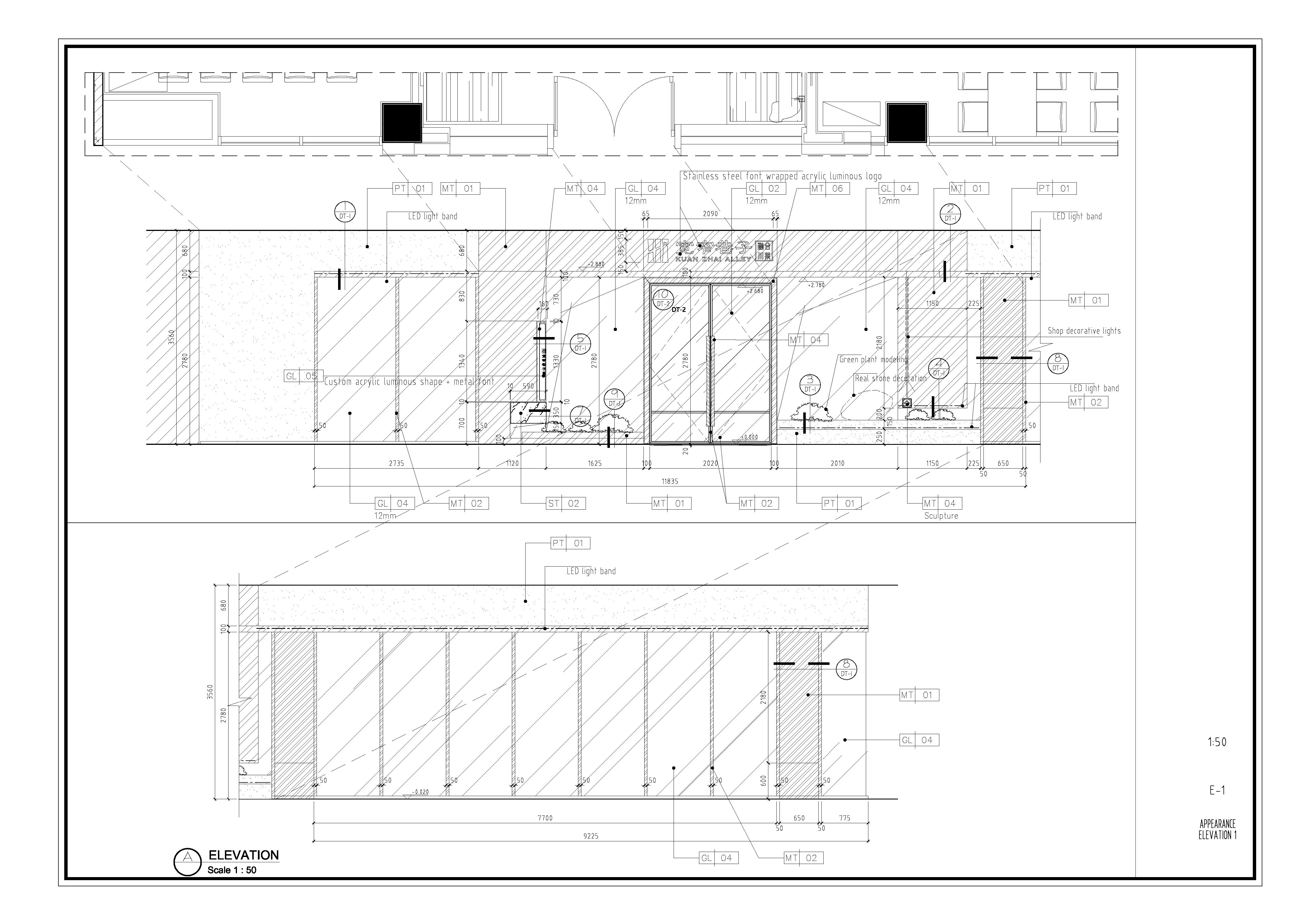
入口:仪式感是东方文化的精神内核,入口的设计提取中式园林中“山、水、人、境”等意境动态,使自然与人文交汇。
走廊:对称性和空间的规律性,是有助于生活最佳体验的建筑元素。走廊以层层递进的手法设计,整齐排列的布局使人仿佛在府邸中漫步,营造出浓厚的氛围。
宽厅:以花入境,步步生景,浮光掠影中,使自然与人文交汇。
宽厅:天花顶采用中轴对称的设计特点,使艺术品成为空间的视觉焦点,水纹玻璃材料质感和流动光影于细微处铺设人文氛围,食客来赴一场生活与艺术之约,令这段旅程的每一个转折都充满惊喜。
酒区:酒区以渐变玻璃的材质及色彩结合灯光来凸显氛围,定制的独具特色的吊灯,细节之处充分融合地域文化。为酒区带来独特的视觉和感官体验,让人们在品味美酒的同时也感受到地域文化的魅力。
窄厅:在东方意境的手法下,金属感成为其中的点睛之笔。为空间增添了层次感和丰富性,宁静庄重的美与古典气息相得益彰,艺术张力潜藏其中。石材的自然纹理与环境相互呼应,打造了立体的画境空间。
就餐区:整体布局精致,层次分明,光影交错,展现出建筑艺术和东方哲学。每个细节都经过精心设计,每片光影都诉说着独特故事,令人陶醉。这里蕴藏东方智慧与美学,带来无限的艺术与思考空间。
对称性和空间的规律性,是有助于生活最佳体验的建筑元素。走廊以层层递进的手法设计,整齐排列的布局使人仿佛在府邸中漫步,营造出浓厚的氛围。
锦里(蜀锦)VIP包房:红色具有生命、热情和能量。中国红与蜀锦屏风相呼应,给在外的华人一种归属感,将中国文化发扬光大,该空间的存在拉近了人们的距离。
宝园(熊猫)VIP包房:憨憨的国宝熊猫是大家的最爱。定制PET金属膜材料,意向勾勒出空间中能猫的身体,视线无限延伸,引发探索的兴致。
平面结合了宽窄巷子的四合院的布局特点,各空间由纵横交错的宽窄巷子形成,一纵一横,一步一景。
设计将当属于巴蜀文化的独特地域文化呈现在设计语言中,强调富有东方艺术气息的高雅质感,简练的设计语言强调中西结合的东方文化,是此空间表达的设计核心。
空间从武侠电影场景中获得灵感,以低反差、饱和度低的色彩,呈现东方特征。中西方融合的形式,在空间的纵横交错中,呈现川菜的江湖。
0
0

认证 · 让您身份增值