《精简》


作品说明
- 项目类型:住宅公寓
- 项目地点:桂林市
- 建筑面积:92.0000㎡
- 项目造价:30.0000万元
- 主案设计师: 陈诗密
- 竣工时间:2024.3
-
项目定位:本案聚焦于打造极简生活空间,旨在为居住者提供一个远离喧嚣、回归本真的宁静之所。整体遵循“少即是多”原则,以简洁线条、纯粹色彩与实用布局,呈现极简美学。
-
空间意境:客厅采用开放式布局,去除多余隔断,搭配浅灰色布艺沙发、冰绿圆几,地面通铺木质地板,温润质感与冷调家具中和,营造开阔放松氛围。
卧室延续极简风,无床头板设计,床品选素色棉麻材质,触感舒适。
收纳系统是关键,利用墙面定制隐藏式衣柜,柜门无把手,与墙面齐平,卫生间用镜柜、壁龛增加储物,台盆区仅保留必要洗漱用品,维持整洁。
照明上,以隐藏式灯带提供基础光,搭配射灯作重点照明,光影层次丰富。冰绿色圆几点缀,带来生机,让居住者于极简中享受高品质生活,感受内心宁静。 -
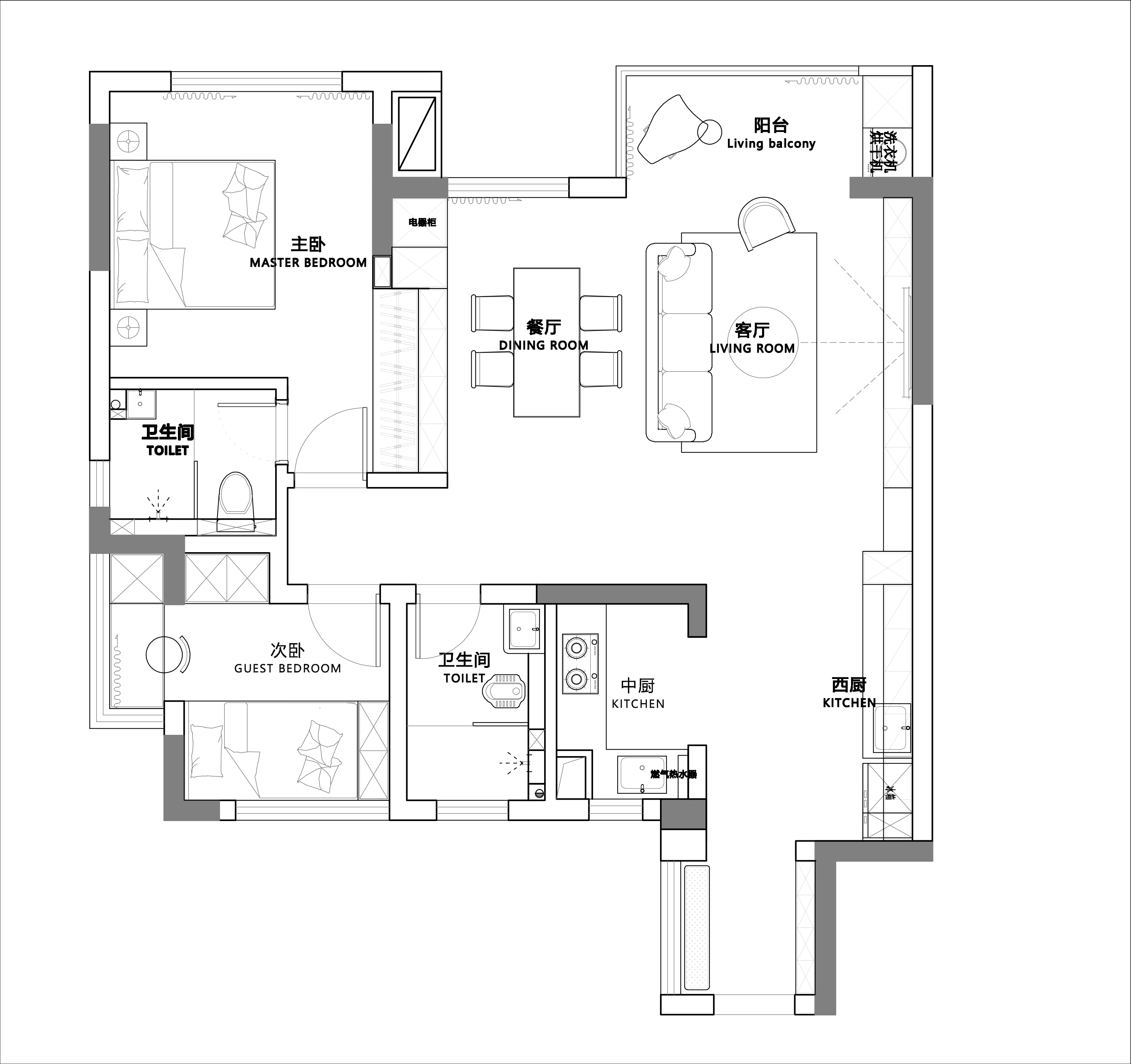
空间布局:三房改两房,竖向客厅改成大横厅,为业主女儿提供更多的活动空间,小户型也同时拥有中厨和西厨。
-
设计选材:地面选用可再生资源木地板全房通铺,木地板的保温隔热性能优越,冬天能减少室内热量散失,降低取暖能耗;夏天阻挡热气传入,减轻制冷负担,长期有效降低居住能耗成本。
-
用户体验:业主反馈简约的空间,让他们的生活比以前更加精简。

